Найти в Дзене
4living

Из однушки – двушка с гардеробной в спальне

Однокомнатная квартира площадью 58 кв. м подверглась кардинальной перепланировке. В итоге в ней появилась просторная гостевая зона и изолированное личное пространство.  

Сведения о квартире: однокомнатная квартира площадью 51,5 кв. м.

Владелица квартиры: молодая девушка.

Пожелания клиентки: переделка однокомнатной квартиры в двухкомнатную, гардеробная, оформление — современный стиль. 

-2

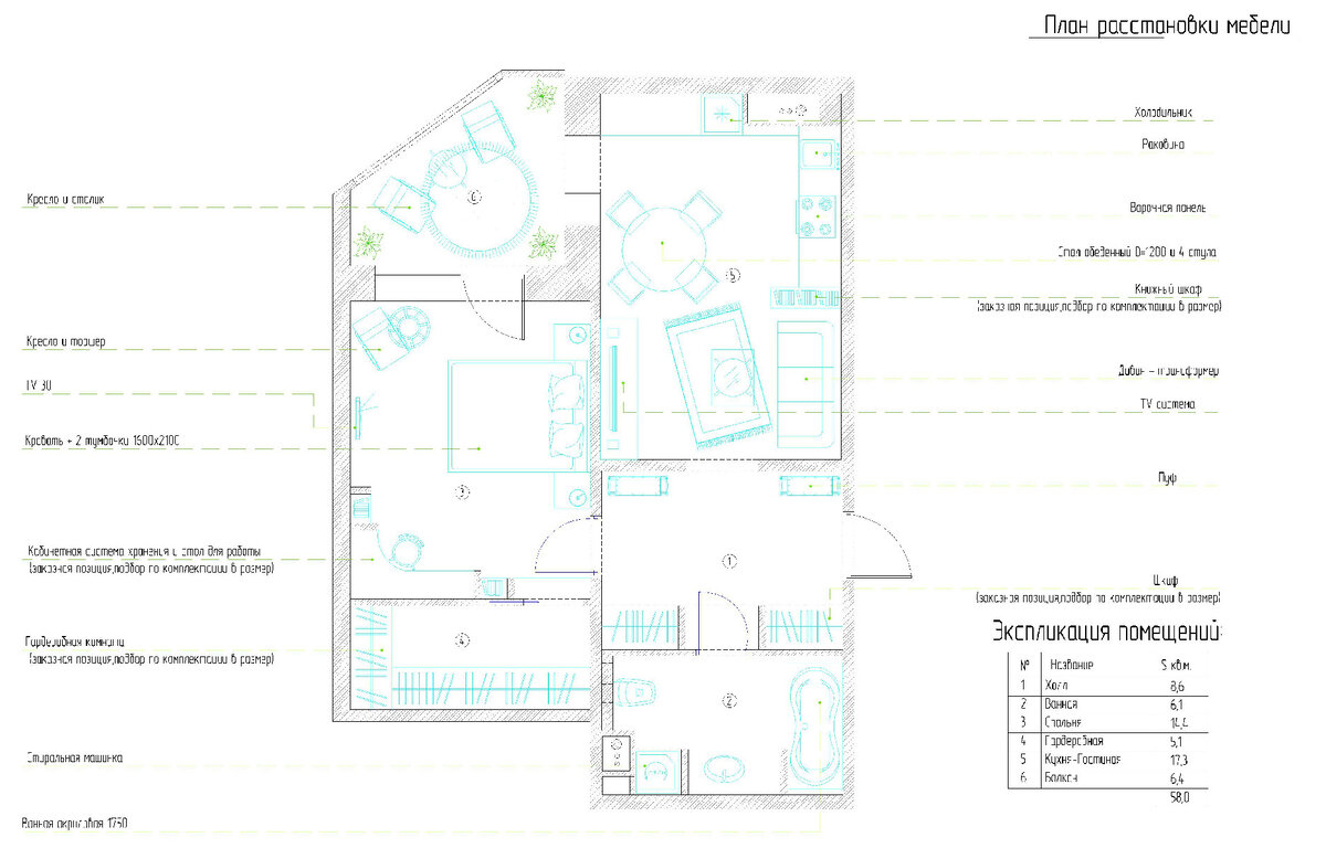
План после переделки однокомнатной квартиры в двухкомнатную.

Главная задача, которую поставила перед дизайнерами хозяйка квартиры, — переделка однокомнатной квартиры в двухкомнатную. Владелице квартиры — молодой и активной девушке — нужна была современная просторная зона отдыха, где можно было бы принимать гостей, и спальня, изолированное личное пространство. В итоге на площади просторной кухни «прописалась» гостевая зона — диван и телевизор.

В спальне по требованию хозяйки дизайнер Елена Пегасова с одной стороны обустроила гардеробную комнату, с другой — своеобразную зону отдыха на лоджии. Балкон оформили в стиле зимнего сада, с висячим гамаком и морем живых цветов. Для рабочего стола нашлось место только в прихожей. В ванной комнате уместилась достаточно большая ванна, умывальник на большой столешнице и встроенная стиральная машинка.

Квартира решена в современном стиле. Растительные мотивы как нельзя лучше вписались в интерьер, внеся в него этническую нотку. 

-3

Своеобразные порталы отделяют рабочее место от зоны прихожей. Они же стали частью системы хранения, обустроенной вокруг открытого дверного проема.

-4

Дизайнер постаралась создать максимально открытое пространство. Благодаря открытым проемам все помещения плавно перетекают друг в друга.

-5

В районе рабочей зоны пол в кухне фрагментарно выложен темной плиткой, которая очерчивает обеденную зону.

-6

Чтобы кухня не вторгалась в зону отдыха, гостиную отделили сквозным книжным шкафом.

-7

Спальня восхитительно безоблачна и свежа. Пастельная цветовая гамма разбавлена сочной зеленью панно над кроватью.