Добавить в корзинуПозвонить
Найти в Дзене

Ошибки дизайнера: межкомнатные двери, что нужно продумать до начала ремонта

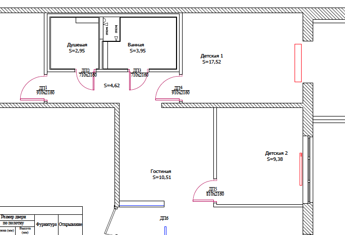
Межкомнатные двери - это та часть дизайн проекта, которой незаслуженно мало уделяется внимания как со стороны заказчика, так и со стороны дизайнера. И хоть они устанавливаются в самом конце ремонта, продумать некоторые вещи обязательно нужно еще на стадии обсуждения проекта. В нашем проекте вот такие белые классические двери. Схема открывания дверей в трехкомнатной квартире Вот, например, посмотрите на типичную схему открытия дверей от дизайнера и представьте, что вам в этой квартире жить, вас ничего не смущает? Обратите внимание куда открываются двери в детских комнатах. В коридор. Это категорически неверно! Почему? Отвечаем. Из практики. По нашему опыту, двери в детскую чаще всего открыты, так как детишки любят бегать туда-сюда. А это значит, что двери скорее всего будут постоянно открыты в коридор и они будут во-первых, представлять опасность для бегающей детворы в виде углов и ручек, а во-вторых, будут перекрывать и без того не сильно широкий проход. Важность 1. По нашей практик
Оглавление

Межкомнатные двери - это та часть дизайн проекта, которой незаслуженно мало уделяется внимания как со стороны заказчика, так и со стороны дизайнера. И хоть они устанавливаются в самом конце ремонта, продумать некоторые вещи обязательно нужно еще на стадии обсуждения проекта.

В нашем проекте вот такие белые классические двери.

Схема открывания дверей в трехкомнатной квартире

Вот, например, посмотрите на типичную схему открытия дверей от дизайнера и представьте, что вам в этой квартире жить, вас ничего не смущает?

-2

Обратите внимание куда открываются двери в детских комнатах. В коридор. Это категорически неверно! Почему? Отвечаем.

Из практики.

По нашему опыту, двери в детскую чаще всего открыты, так как детишки любят бегать туда-сюда.

А это значит, что двери скорее всего будут постоянно открыты в коридор и они будут во-первых, представлять опасность для бегающей детворы в виде углов и ручек, а во-вторых, будут перекрывать и без того не сильно широкий проход.

Важность 1.

По нашей практике лучше всего открывать двери непосредственно в помещение на стену. Иногда люди говорят, а вот мы хотим прямо у входа поставить шкаф/тумбу/стеллаж, но пространство перед дверью примерно метр на метр, поэтому лучше ничем не занимать его, все равно будет мешать проходу.

Важность 2.

Также важный момент, от схемы открытия дверей зависит расположение выключателей. Выключатели нужно располагать строго рядом с ручкой иначе придется обходить дверь, чтобы включить свет. А разводка делается в середине ремонта и переделать ее после наклеивания обоев уже не получится, обязательно продумайте это заранее.

Важность 3.

Если у вас будут разные напольные покрытия в разных помещения, то вам нужно будет делать стыки полов, которые потом перекрываются декоративным порожком. Стык должен располагаться строго под серединой дверного полотна. Поэтому очень важно перед укладкой напольных покрытий определится с открыванием дверей и сделать стык полов на расстоянии в половину толщины полотна от плоскости стены в которой устанавливается дверь.

К сожалению обо всех этих вещах напрочь забывают при составлении проекта и хорошо, если рабочие обратят ваше внимание на это во время ремонта. Но обычно этого не происходит.

Не забывайте про двери и вы избежите массу проблем при их монтаже. А выбрать именно ваши двери поможет лайфхак про выбор дверей.

Удачного ремонта :)

Ваш ADVA