Добавить в корзинуПозвонить
Найти в Дзене

Проект дома на 100 квадратных метров | Размерами 11х5м

Дом в два этажа, с навесом для автомобиля и крыльцом, а также небольшой сарай. Дом выглядит компактно, но в то же время он довольно вместительный. Гостиную комнату освещает большое количество окон, что благоприятно сказывается и на внешнем виде дома. Особенностью дома является его планировка 3 спальных комнаты, причем не маленькие, балкон на втором этаже. Гостиная на 2 этажа, очень красиво и современно. Тамбур будет отличным дополнением для холодных климатических зон. Внешний вид дома в 3D ДОМ НЕ ОЧЕНЬ ПРОСТОЙ В ИСПОЛНЕНИИ, НО ЗАМЕТНО ВЫДЕЛЯЕТСЯ ИЗ СЕРОЙ МАССЫ, ПРОСТЫХ КОРОБОК. И ЕСЛИ ПРАВИЛЬНО ПОДОЙТИ К ЕГО ИСПОЛНЕНИЮ, ТО МОЖНО СУЩЕСТВЕННО ЭКОНОМИТЬ ПРИ СТРОИТЕЛЬСТВЕ. Успехов вам!
Оглавление

Дом в два этажа, с навесом для автомобиля и крыльцом, а также небольшой сарай. Дом выглядит компактно, но в то же время он довольно вместительный. Гостиную комнату освещает большое количество окон, что благоприятно сказывается и на внешнем виде дома.

Особенностью дома является его планировка

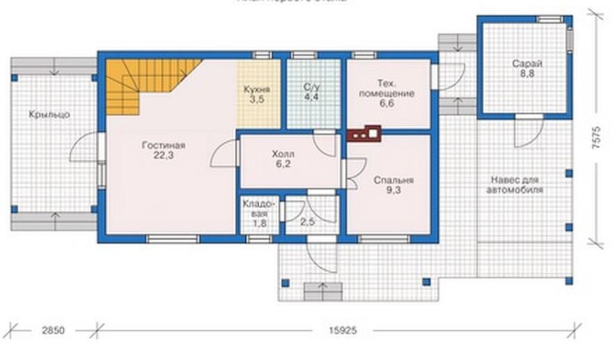
Планировка первого этажа
Планировка первого этажа
  • Гостиная 22.3кв
  • Кухня 3.5кв
  • Санузел 4.4кв
  • Техническое помещение 6.6кв
  • Холл 6.2кв
  • Спальня 9.3кв
  • Кладовая 1.8кв
  • Тамбур 2.5кв
  • Сарай 8.8кв
Планировка второго этажа
Планировка второго этажа
  • Балкон 10.1кв
  • Спальня 13.1кв
  • Спальня 13.8кв

3 спальных комнаты, причем не маленькие, балкон на втором этаже. Гостиная на 2 этажа, очень красиво и современно. Тамбур будет отличным дополнением для холодных климатических зон.

Внешний вид дома в 3D

Эскизы дома в 3D
Эскизы дома в 3D
Эскизы дома в 3D
Эскизы дома в 3D
Эскизы дома в 3D
Эскизы дома в 3D
Эскизы дома в 3D
Эскизы дома в 3D
ДОМ НЕ ОЧЕНЬ ПРОСТОЙ В ИСПОЛНЕНИИ, НО ЗАМЕТНО ВЫДЕЛЯЕТСЯ ИЗ СЕРОЙ МАССЫ, ПРОСТЫХ КОРОБОК. И ЕСЛИ ПРАВИЛЬНО ПОДОЙТИ К ЕГО ИСПОЛНЕНИЮ, ТО МОЖНО СУЩЕСТВЕННО ЭКОНОМИТЬ ПРИ СТРОИТЕЛЬСТВЕ.

Успехов вам!