Добавить в корзинуПозвонить
Найти в Дзене
Pro-дизайн

Квартира 38 кв.м. для семьи из четырёх человек. Вам стоит это увидеть.

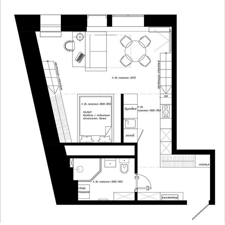
Главной целью дизайнера, в этой нестандартной трапецевидной квартире, было распланировать площадь так, чтобы разместить семью из 4-х человек. Рабочая зона, кухня, столовая и гостиная с раскладным диваном, спальное место для родителей и отдельные спальные места для разнополых детей - задачи проекта. Основной плюс квартиры - высота потолков 3 м., что позволило организовать детские спальные места на втором уровне. Лестницы ведущие на второй ярус являются стеллажами. Высоту потолка в зоне спальни и кухни сделали минимально допустимой, на сколько позволил рост взрослой части семьи, что предоставило возможность организовать достаточно просторные спальни на 2 ярусе. Дизайн квартиры лаконичный, простой и тёплый благодаря обилию натурального дерева в отделке. Довольно компактная расстановка легкой мебели и светлые стены не скрадывают пространство. Оригинальный рисунок на полу - это микс обычной напольной плитки разных оттенков серого, нарезанной треугольниками. Отказавшись от ванны, получ

Главной целью дизайнера, в этой нестандартной трапецевидной квартире, было распланировать площадь так, чтобы разместить семью из 4-х человек. Рабочая зона, кухня, столовая и гостиная с раскладным диваном, спальное место для родителей и отдельные спальные места для разнополых детей - задачи проекта.

-2
-3

Основной плюс квартиры - высота потолков 3 м., что позволило организовать детские спальные места на втором уровне.

-4
-5

Лестницы ведущие на второй ярус являются стеллажами.

-6
-7

Высоту потолка в зоне спальни и кухни сделали минимально допустимой, на сколько позволил рост взрослой части семьи, что предоставило возможность организовать достаточно просторные спальни на 2 ярусе.

-8
-9

Дизайн квартиры лаконичный, простой и тёплый благодаря обилию натурального дерева в отделке.

-10

Довольно компактная расстановка легкой мебели и светлые стены не скрадывают пространство.

-11
-12

Оригинальный рисунок на полу - это микс обычной напольной плитки разных оттенков серого, нарезанной треугольниками.

-13
-14

Отказавшись от ванны, получили очень функциональный и гармоничный санузел.

-15
-16
-17

Антресоли размещены по всему периметру прихожей, доступ к ним предоставлен оригинальной системой крепления обычной деревянной лестницы.

-18

Дизайнер - Никита Зуб.

На этом примере мы увидели, что даже на 38 кв.м. можно организовать полноценную уютную квартиру для семьи.

Присылайте свои вопросы и предложения на pycaka@yandex.ru