Найти в Дзене

Дом из профилированного бруса

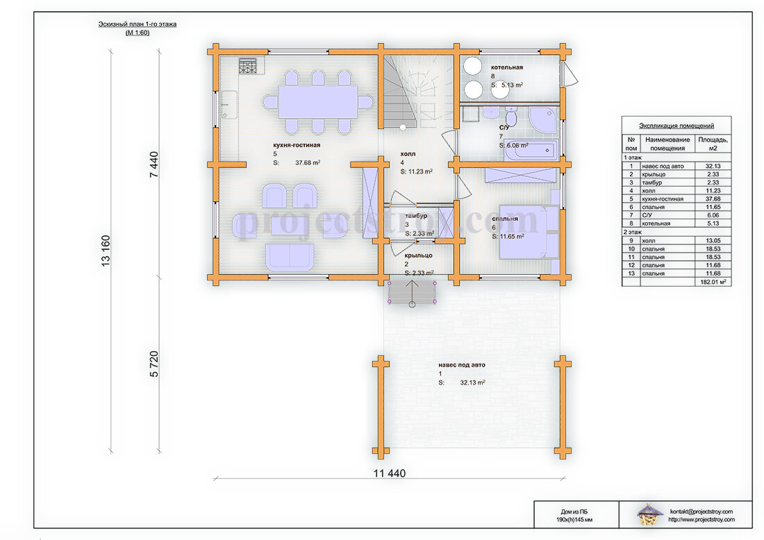
Проект дачного деревянного дома под круглогодичное проживание 11.4 х 13.2 м.
Поднятие у стен второго этажа 2.2 м - пять спален - совмещенная кухня-гостиная Экспликация дома:
- навес под авто;
- крыльцо;
- тамбур;
- холл с широкой лестницей;
- кухня-гостиная 38 кв. м;
- санузел;
- котельная;
- 5 спален.
Рекомендации по проекту архитектора: увеличение площади застройки и снижение отхода производства; санузел на втором этаже взамен спальни; возможно изменение материала стен на клееный брус

Проект дачного деревянного дома под круглогодичное проживание 11.4 х 13.2 м.
Поднятие у стен второго этажа 2.2 м - пять спален - совмещенная кухня-гостиная

Экспликация дома:
- навес под авто;
- крыльцо;
- тамбур;
- холл с широкой лестницей;
- кухня-гостиная 38 кв. м;
- санузел;
- котельная;
- 5 спален.

Рекомендации по проекту архитектора: увеличение площади застройки и снижение отхода производства; санузел на втором этаже взамен спальни; возможно изменение материала стен на клееный брус

-2
-3