Добавить в корзинуПозвонить
Найти в Дзене

Проект двухэтажного дома в стиле модерн ПА-186П

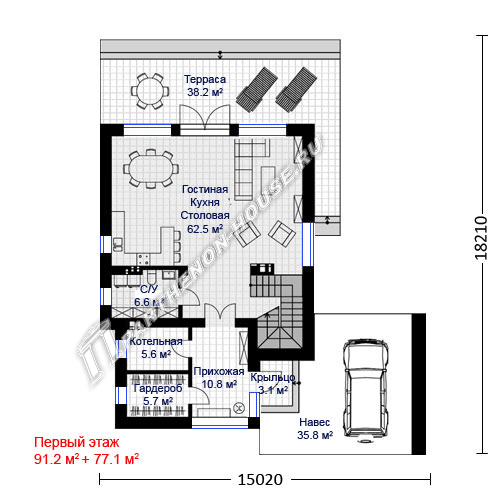
Планировки дома Проект двухэтажного дома в стиле модерн. Особенности планировочных решений: большие и просторные террасы на обоих этажах, три спальни на втором этаже, одна из них со своим приватным санузлом и гардеробом. На первом этаже особенно великолепно смотрится большое наполненное светом помещение для гостиной, кухни и столовой. Есть автономная котельная и пристроенный навес для парковки автомобиля.
Область строительства: климатические условия России с показателем градусо-сутки отопительного периода ГСОП до 5000°С сут.
Балкон: да.
Котельная: да.
Террасы: да.
Навес: да.
Камин: да.
Всего комнат: 3 + 1.
Санузлы: 3.
Кол-во жильцов: 4.
Площадь общая: 186,01 кв.м. + 147,43 кв.м.
Высота 1 этажа: 3,220 м.
Высота в мансарде: 3,000 м.
Габаритные размеры дома: 15,020 х 18,210 м. (с навесом)
Минимальные размеры участка: 22,00 x 25,00 м.
Технология и конструкция:
строительство дома из газобетона
Фундамент Монолитная ж/б плита Внешние стены Кладка толщиной 400 мм из блоков газобет

Планировки дома

-2
-3

Проект двухэтажного дома в стиле модерн. Особенности планировочных решений: большие и просторные террасы на обоих этажах, три спальни на втором этаже, одна из них со своим приватным санузлом и гардеробом. На первом этаже особенно великолепно смотрится большое наполненное светом помещение для гостиной, кухни и столовой. Есть автономная котельная и пристроенный навес для парковки автомобиля.

Область строительства: климатические условия России с показателем градусо-сутки отопительного периода ГСОП до 5000°С сут.

Балкон: да.
Котельная: да.
Террасы: да.
Навес: да.
Камин: да.
Всего комнат: 3 + 1.
Санузлы: 3.
Кол-во жильцов: 4.

Площадь общая: 186,01 кв.м. + 147,43 кв.м.
Высота 1 этажа: 3,220 м.
Высота в мансарде: 3,000 м.
Габаритные размеры дома: 15,020 х 18,210 м. (с навесом)
Минимальные размеры участка: 22,00 x 25,00 м.

Технология и конструкция:
строительство дома из газобетона

Фундамент Монолитная ж/б плита

Внешние стены Кладка толщиной 400 мм из блоков газобетона

Конструкция пола 1-го этажа Монолитная стяжка по утрамбованному грунту

Конструкция перекрытий Монолитные ж/б плиты

Конструкция междуэтажной лестницы Деревянная

Вент. каналы и дымоходы Кирпичные

Конструкция крыши Плоская

Материал для кровли Наплавляемое покрытие

Материал для отделки фасада Камень, клинкерная плитка, штукатурка, обшивочная доска

Материал для отделки цоколя Камень

ПРИМЕЧАНИЕ:
-
Состав проектной документации:
- Архитектурно-Строительный раздел (АР + КР) =
да. (разработка разделов = 15 рабочих дней)
- Инженерные разделы (ОВ, ВК) (ИС) =
возможно. (без электрики (ЭО) (срок разработки раздела ИС = 10 рабочих дней)
-
Стоимость проектной документации >>>

ОЗНАКОМИТЬСЯ
Пример состава проектной документации серии домов ПА >>>