Добавить в корзинуПозвонить
Найти в Дзене

ПЛАНИРОВКА КВАРТИРЫ. 5 СОВЕТОВ ОТ ДИЗАЙНЕРА.

Лайфхак на тему грамотного создания планировочных решений для вашей квартиры. О том, какие ошибки вы совершаете, когда начинаете самостоятельно планировать свою квартиру, я уже писал ранее. Было бы не справедливо указывать лишь на ваши ошибки, не рассказав о том, как же грамотно создать планировку. Поэтому, речь сегодня пойдет именно о том, как правильно создавать планировки и о чем важно не забыть И так, что важно: 1. Для начала надо снять подробные замеры, с точностью до одного сантиметра. Помните, в планировке важен каждый сантиметр! Обмерный план нужно вычертить в масштабе, или в специализированной программе коих сейчас много, или перенести на миллиметровую бумагу. 2. Очень важно определитесь с основными зонами квартиры: ДНЕВНАЯ И НОЧНАЯ ЗОНА. ДНЕВНАЯ ЗОНА – объединяет в себе помещения, которыми вы пользуетесь днем, то есть: гостиная, кухня, гостевой санузел. НОЧНАЯ ЗОНА – соответственно те помещения, которыми вы пользуетесь в вечернее и ночное время: спальня, детские комнат
Оглавление

Лайфхак на тему грамотного создания планировочных решений для вашей квартиры.

О том, какие ошибки вы совершаете, когда начинаете самостоятельно планировать свою квартиру, я уже писал ранее. Было бы не справедливо указывать лишь на ваши ошибки, не рассказав о том, как же грамотно создать планировку. Поэтому, речь сегодня пойдет именно о том, как правильно создавать планировки и о чем важно не забыть

И так, что важно:

1. Для начала надо снять подробные замеры, с точностью до одного сантиметра.

Помните, в планировке важен каждый сантиметр!

Обмерный план нужно вычертить в масштабе, или в специализированной программе коих сейчас много, или перенести на миллиметровую бумагу.

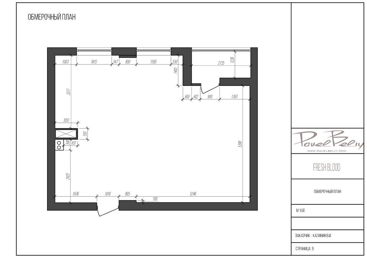
Обмерный план  одного из моих проектов. Обратите внимание, что замеры нужно снимать очень подробно. Измерять буквально каждый отрезок помещения.
Обмерный план одного из моих проектов. Обратите внимание, что замеры нужно снимать очень подробно. Измерять буквально каждый отрезок помещения.

2. Очень важно определитесь с основными зонами квартиры: ДНЕВНАЯ И НОЧНАЯ ЗОНА.

ДНЕВНАЯ ЗОНА – объединяет в себе помещения, которыми вы пользуетесь днем, то есть: гостиная, кухня, гостевой санузел.

НОЧНАЯ ЗОНА – соответственно те помещения, которыми вы пользуетесь в вечернее и ночное время: спальня, детские комнаты, ванная комната. Хотя вы и посещаете детскую комнату не только вечером и ночью, она приравниваются к спальне. Смысл в том, чтобы не мешать детям, например, делать уроки, ну и, конечно же, спать. Вы же ложитесь спать позже детей.

Дневная зона должна быть расположена ближе к входу в квартиру, а ночная быть «на задворках». В этом случае жить в квартире будет наиболее комфортно.

А вот если сделать все наоборот, то это будет крайне неудобно. Представьте, как заходя в квартиру, вы натыкаетесь на вход в спальню, а гостиная у вас, где то там далеко. Удобно? Конечно же, нет!

Не всегда такое деление возможно сделать, но к этому нужно стремиться.

Дневная зона находится при входе в квартиру, вы попадаете в гостиную из входного коридора. Спальня расположена в правой части помещения квартиры.
Дневная зона находится при входе в квартиру, вы попадаете в гостиную из входного коридора. Спальня расположена в правой части помещения квартиры.

3. Санузлы и мокрые зоны.

Застройщик вам определяет места в квартире, где можно располагать кухню и ванные комнаты, а именно они и являются мокрыми зонами, и считается, что переносить или расширять их не желательно.

Однако нет ничего невозможного, и вполне возможно расширять мокрые зоны за счет коридоров. К слову сказать, у всех застройщиков к вопросу мокрых зон отношение разное, поэтому задайте вопрос по поводу переноса мокрых зон своему застройщику.

И если вы все же решились на кардинальный перенос мокрых зон, помните: для нормального функционирования канализации, сантехнические приборы не должны находиться на большом расстоянии от ввода канализации в квартиру! Прежде всего, это касается унитаза.

В верхней част квартиры, около входа расположен узел с коммуникациями. От кухни и от гостевого сан узла очень далеко, поэтому в этом случае был установлен сололифт
В верхней част квартиры, около входа расположен узел с коммуникациями. От кухни и от гостевого сан узла очень далеко, поэтому в этом случае был установлен сололифт

Однако, и здесь есть техническое решение: при невозможности организовать канализацию самотеком, устанавливается так называемый СОЛОЛИФТ, или насос для канализации.

Будьте также внимательны при определении места для унитаза в санузле! Его нужно устанавливать как можно ближе к вводу канализации.

4. Два очень важных момента:

-размеры мебели

-расстояния между мебелью и для свободного прохода

Узнайте размеры всей мебели, которую вы хотите использовать в своем интерьере, с точностью до 1 см. Для примера, некоторые стандартные размеры: кухонный модуль 60х60 см; стандартный 2-х местный диван 2,1х085 м; стул 45х55 см.

Запомните! Расстояния между мебелью и для свободного прохода, не менее значимы, чем реальные размеры мебели.

К примеру:

- устанавливайте обеденный стол так, чтобы между столом и стеной или другими предметами мебели, было расстояние минимум 90см, иначе вы не сможете удобно расположиться за столом

- минимальное расстояние для прохода одного человека 60 см, а в местах, где вы часто ходите нужно как минимум 90 см.

- для прохода двух человек нужно 1, 2 метра. Поэтому коридоры часто делают шириной 1,2 метра.

- Входная зона в квартиру, а точнее свободная площадка при входе в квартиру, должна быть как минимум 1,5х1,5 метра.

-4

5. Стремитесь создавать более открытые пространства, а не делать «семь комнат из одной».

Если у вас небольшая площадь, то лучше объединить кухню и гостиную. Избегайте расстановки мебели «по стенам» и не бойтесь располагать диван в центре гостиной.

К теме планировок я буду обращаться еще не раз, следите за моей лентой.

Надеюсь, мои советы были полезны для вас.

Пока я наполняю канал больше историю и интерьеров в моем инстаграм

-5