Добавить в корзинуПозвонить
Найти в Дзене
Печи, Камины, барбекю

Варианты схем зоны барбекю

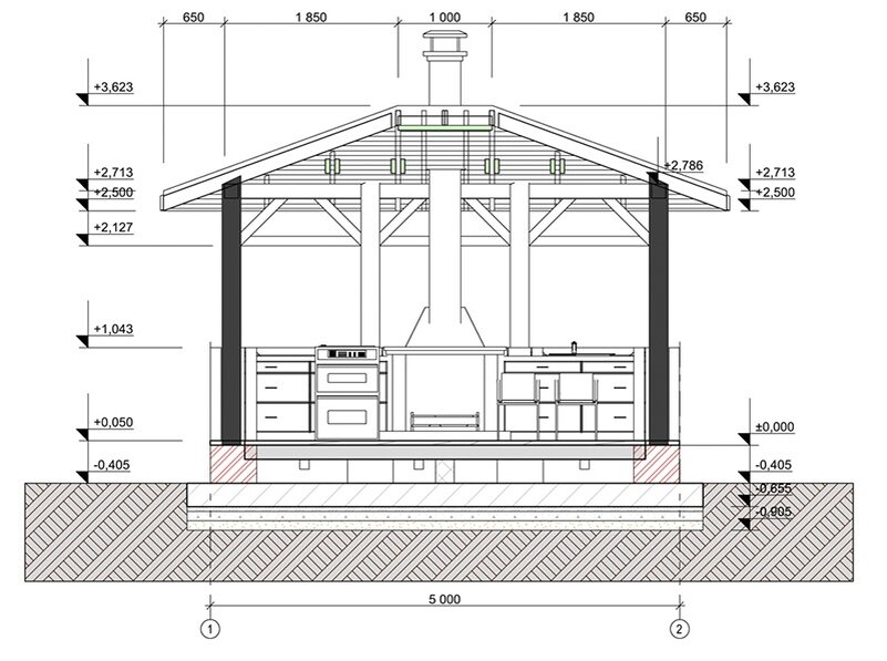
Подробная и грамотная схема зоны для барбекю поможет качественно обустроить площадку для отдыха. Такая схема учитывает тип само площадки, вид печи и расположение зон приготовления пищи и отдыха. Схема по оформлению зоны для барбекю поможет расположить мебель, печь и стол в удобном порядке и качественно обустроить пространство площадки. Виды схем зоны для барбекю Выбрав удобную и подходящую схему, можно быстро и очень легко оформить площадку для барбекю. Типы схем следующие: Правильно оформленная схема поможет грамотно расположить мебель и печку и сделать зоны приготовления пищи и отдыха максимально комфортными и удобными.

Подробная и грамотная схема зоны для барбекю поможет качественно обустроить площадку для отдыха. Такая схема учитывает тип само площадки, вид печи и расположение зон приготовления пищи и отдыха. Схема по оформлению зоны для барбекю поможет расположить мебель, печь и стол в удобном порядке и качественно обустроить пространство площадки.

Виды схем зоны для барбекю

Выбрав удобную и подходящую схему, можно быстро и очень легко оформить площадку для барбекю. Типы схем следующие:

Установка печи с дымоходом в домике с навесом.
Установка печи с дымоходом в домике с навесом.
 Специальная шестиугольная конструкция, которая предполагает расположение стола в центре площадки и установки угловой печки для барбекю.
Специальная шестиугольная конструкция, которая предполагает расположение стола в центре площадки и установки угловой печки для барбекю.
Полуоткрытый и простой домик.
Полуоткрытый и простой домик.

Правильно оформленная схема поможет грамотно расположить мебель и печку и сделать зоны приготовления пищи и отдыха максимально комфортными и удобными.

Печи
176,1 тыс интересуются