Найти в Дзене
Дизайн Time

Зеленые акценты в интерьере

Кухня с фасадами из фанеры, выкрашенной в насыщенно-зелёный цвет, и большое количество растений создают удивительную атмосферу в этой квартире в Украине. Чтобы квартира стала более просторной, архитектор и его команда решили демонтировать часть перегородок. Многие поверхности оставили нетронутыми и добавили недорогие отделочные материалы, чтобы разнообразить интерьер. Например, бетонные колонны сохранили свой первоначальный вид, в то время, как новые стены возведены из недорогих материалов. «Единственные вспышки цвета исходят от обновлённых фасадов кухни и зелёных растений. Материалы, которые мы использовали в этом проекте, дали нам возможность создать интересный текстурный контраст, который обогащаете интерьер. Мы перепробовали множество вариантов и комбинаций, пока не нашли нужный оттенок зеленого, и клиентом он понравился.» Все просто, спальня отделена от гостиной при помощи специальной системы полок с растениями, которые визуально поддерживают зелёные кухонные фасады. Для больше

Кухня с фасадами из фанеры, выкрашенной в насыщенно-зелёный цвет, и большое количество растений создают удивительную атмосферу в этой квартире в Украине.

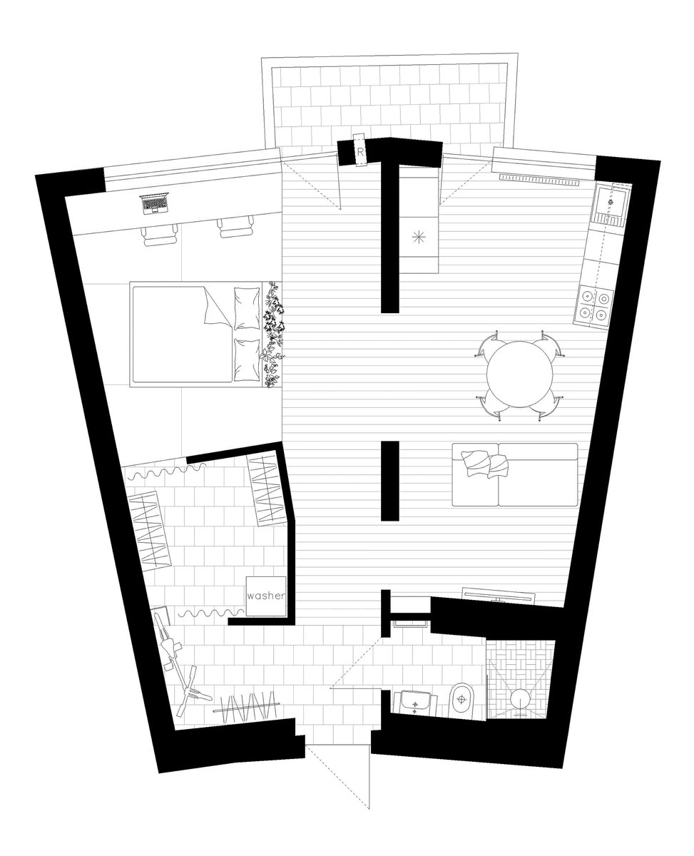
Квартира #149 принадлежит молодой паре, которая попросила архитектора воплотить их мечты о современности и уюте в рамках скромного бюджета.
Квартира #149 принадлежит молодой паре, которая попросила архитектора воплотить их мечты о современности и уюте в рамках скромного бюджета.

Чтобы квартира стала более просторной, архитектор и его команда решили демонтировать часть перегородок. Многие поверхности оставили нетронутыми и добавили недорогие отделочные материалы, чтобы разнообразить интерьер. Например, бетонные колонны сохранили свой первоначальный вид, в то время, как новые стены возведены из недорогих материалов.

«Наши клиенты уже знали, в каком стилистическом направлении мы обычно работаем, поэтому главными критериями стали функциональность и ограниченный бюджет.»
«Наши клиенты уже знали, в каком стилистическом направлении мы обычно работаем, поэтому главными критериями стали функциональность и ограниченный бюджет.»

«Единственные вспышки цвета исходят от обновлённых фасадов кухни и зелёных растений. Материалы, которые мы использовали в этом проекте, дали нам возможность создать интересный текстурный контраст, который обогащаете интерьер. Мы перепробовали множество вариантов и комбинаций, пока не нашли нужный оттенок зеленого, и клиентом он понравился.»

-3
-4

Все просто, спальня отделена от гостиной при помощи специальной системы полок с растениями, которые визуально поддерживают зелёные кухонные фасады. Для большего зонирования, кровать приподнята над полом и находится на небольшой платформе.

-5

Также в комнате возле окна предусмотрено рабочее место, выполненное из березовой фанеры.

-6

Акцентами послужили чёрные вкрапления мебели и деревянный пол. Также в квартире предусмотрено место для велосипедов в виде крюков на стене.

-7

«Меня приводит в восторг сама мысль о том, что каждый сантиметр пространства требует внимания и проработки. В маленькой квартире важно учитывать и использовать каждую деталь», - делится архитектор.

-8