Найти в Дзене
Войти
Деревянное домостроение
779 подписчиков
Подписаться
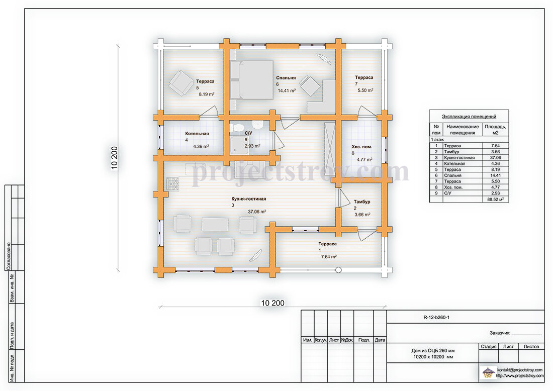
Одноэтажный дом 10 х 10 м
18 июля 2018
18 июл 2018
32
~1 мин
Дом из бревна 260 мм - 88 кв. м Выполнен из оцилиндрованного бревна, возможна ручная рубка
Дом из бревна 260 мм - 88 кв. м Выполнен из оцилиндрованного бревна, возможна ручная рубка
...
Читать далее
Дом из бревна 260 мм - 88 кв. м
Выполнен из оцилиндрованного бревна, возможна ручная рубка