Найти в Дзене
4living

Двушка в стиле ностальжи по 80-м

Для оформления интерьера этой квартиры использовали мебель в стиле 80-х, нетрадиционное основание журнального столика и хулиганские принты со сгущенкой. Получилось свежо и необычно.  Сведения о квартире: 2-комнатная квартира площадью 54 кв. м в доме 85 серии. Владельцы квартиры: супружеская пара. Пожелания клиентов: максимально светлая квартира с простым интерьером и мебелью в стиле 80-х годов.  Что делать, если солнечный свет в квартире бывает только утром? Конечно же, оформить интерьер в светлых тонах. Дизайн-проект двухкомнатной квартиры Владимир Цой разрабатывал, учитывая это пожелание владельцев. Согласно дизайн-проекту двухкомнатной квартиры, перепланировать пришлось только ванную комнату и туалет — для экономии пространства их объединили, остальные помещения оставили без изменений, поменяв только интерьер. По стенам и текстилю пустили цветные полоски, комнаты обставили мебелью простых, четких форм. В квартире прослеживается ностальгия по советским 80-м. На стенах висят при

Для оформления интерьера этой квартиры использовали мебель в стиле 80-х, нетрадиционное основание журнального столика и хулиганские принты со сгущенкой. Получилось свежо и необычно. 

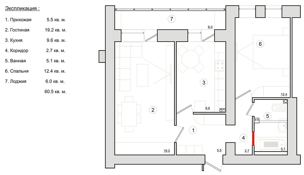
Сведения о квартире: 2-комнатная квартира площадью 54 кв. м в доме 85 серии.

Владельцы квартиры: супружеская пара.

Пожелания клиентов: максимально светлая квартира с простым интерьером и мебелью в стиле 80-х годов. 

-2

Что делать, если солнечный свет в квартире бывает только утром? Конечно же, оформить интерьер в светлых тонах. Дизайн-проект двухкомнатной квартиры Владимир Цой разрабатывал, учитывая это пожелание владельцев.

Согласно дизайн-проекту двухкомнатной квартиры, перепланировать пришлось только ванную комнату и туалет — для экономии пространства их объединили, остальные помещения оставили без изменений, поменяв только интерьер. По стенам и текстилю пустили цветные полоски, комнаты обставили мебелью простых, четких форм.

В квартире прослеживается ностальгия по советским 80-м. На стенах висят принты с изображением всем известных голубых банок сгущенного молока и какао, светильники имеют забавные или упрощенные формы, а кресла выполнены по эскизам моделей тех годов.

Кухню-гостиную и прихожую оформили в теплом бежевом цвете, но она не смотрится скучно — яркая полосатая обивка дивана и кресел делает помещение жизнерадостным и современным. Вполне обычный, на первый взгляд, журнальный столик сделан из старого гусеничного механизма трактора и каленого стекла. Оригинальный стеллаж, расположенный вдоль стены, выполнен из долговечного и экологичного материала — массива дуба.  

-3

Минимум деталей и светлые цвета делают прихожую более просторной.

-4

На журнальном столике и на полке стеллажа пляшут человечки-подсвечники.

-5

Полосатые стеклянные дверцы шкафа-купе перекликаются со стеной кухни-гостиной (см. заглавное фото в начале статьи.

-6

Желтые шторы с мелким узором тоже напоминают о 80-х.

-7

Кухонный фартук облицован плиткой, напоминающей кирпичную кладку — это хорошо сочетается с ровными стенами и мебелью прямых форм.

-8

Яркие элементы декора в обеденной зоне — принт банки сгущенного какао и панель, обшитая разноцветным текстилем.

-9

В спальне использовали разные оттенки голубого, а изголовье кровати сделали таким же веселым, как спинки кресел и диванов в гостиной.

-10

Забавные светильники с абажурами в виде обычной лампочки — тоже отсылка к советскому прошлому.

-11

Единственное место в доме, которое перепланировали, облицовано полосатой плиткой.

-12

Вместо обычных шторок ванную отделили стеклянными раздвижными панелями.