Найти в Дзене
DIVAN.RU

Творческая атмосфера и бежевые оттенки в интерьере трешки 103 кв.м

Искусство, комиксы и винил — эта квартира наполнена творчеством. Здесь спокойные серые тона формируют теплую и уютную атмосферу, помогая раскрыть индивидуальность хозяев через интерьер. Владельцы этой квартиры — молодая семья с ребенком. Супруги увлекаются масштабными моделями Лего, собирают редкие книги, винил и винтажную посуду. Ультрасовременный дизайн и холодный минимализм плохо вписывались в их представления об уюте, поэтому в основу интерьера легла стилистика джапанди. В ходе перепланировки в квартире особое внимание уделили хранению — выделили полноценную гардеробную, предусмотрели множество ниш, стеллажей и полок. Это решение позволило скрыть ряд недостатков планировки: скошенные откосы на окнах, высокий порог на балкон, неудобные выводы под вентиляцию и массивные стояки в санузлах. Кухню и гостиную разделили на два отдельных пространства — между ними возвели стену. В прихожей теперь есть естественный свет: в ходе ремонта демонтировали перегородку, которая стояла на одной оси с
Оглавление

Искусство, комиксы и винил — эта квартира наполнена творчеством. Здесь спокойные серые тона формируют теплую и уютную атмосферу, помогая раскрыть индивидуальность хозяев через интерьер.

  • Объект: трехкомнатная квартира 103 кв.м, г. Санкт-Петербург, клубный дом «Болконский»
  • Автор проекта: дизайнер Дарья Лхова, основатель Branch Studio, декоратор Мария Нечаева; фотограф Дмитрий Цыренщиков
Владельцы этой квартиры — молодая семья с ребенком. Супруги увлекаются масштабными моделями Лего, собирают редкие книги, винил и винтажную посуду. Ультрасовременный дизайн и холодный минимализм плохо вписывались в их представления об уюте, поэтому в основу интерьера легла стилистика джапанди.

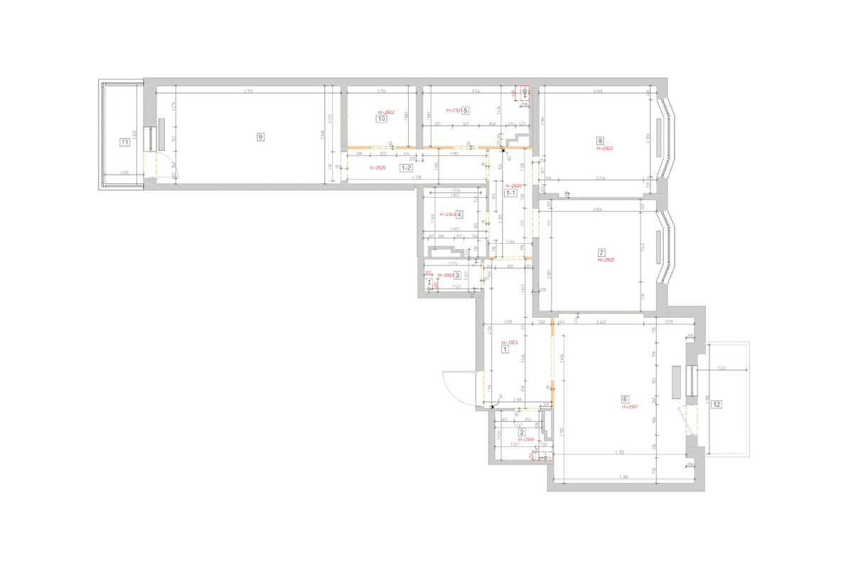
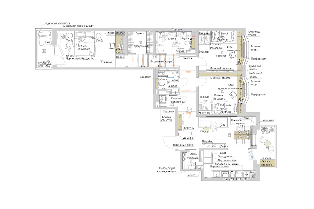
Планировочное решение

В ходе перепланировки в квартире особое внимание уделили хранению — выделили полноценную гардеробную, предусмотрели множество ниш, стеллажей и полок. Это решение позволило скрыть ряд недостатков планировки: скошенные откосы на окнах, высокий порог на балкон, неудобные выводы под вентиляцию и массивные стояки в санузлах.

Кухню и гостиную разделили на два отдельных пространства — между ними возвели стену. В прихожей теперь есть естественный свет: в ходе ремонта демонтировали перегородку, которая стояла на одной оси с окном.

Кухня-гостиная

На кухне предусмотрено все необходимое — два холодильника, место для кухонного комбайна и множество полок. Особую атмосферу здесь создают элементы декора — виниловые пластинки и проигрыватель, которые расположили в стеллаже на месте бывшей технической ниши.

В этом проекте мы использовали сложный серый цвет — он меняет тон в зависимости от времени суток. При этом создает ненавязчивый фон для полов из натурального дуба и мебели в трех наших любимых оттенках: пудровом, кремовом, охристом.

Мастер-спальня

Просторная спальня предусматривает несколько функциональных зон: место для отдыха, санузел, а также гардеробную, которую поделили на две части — женскую и мужскую.

Кровать Кейт от Диван.ру в буклированной обивке создает эффект объема на фоне гладких поверхностей.

➡️Товары бренда divan.ru 

В мастер-спальне также есть и рабочая зона — небольшой кабинет со столом и стулом. Для масштабной модели Lego «Звездный разрушитель» заказчики попросили особую полку, которая будет хорошо освещена в любое время дня — после ремонта артефакт поселился над рабочим столом.

Прием: акцентом в интерьере могут быть не только контрастные цвета, но и декоративные рейки. Стоимость такого решения доступна каждому, но добавляет ритма пространству.

Мастер-санузел

Для санузла при спальне выбраны элементы декора в японском стиле: подвесы, душевая перегородка и ваза выполнены в духе ваби-саби. Санузел — в бежевых оттенках с акцентными элементами в виде стеклянной перегородки и раковины темного цвета. Зеркало во всю ширину раковин позволяет супругом одновренно и свободно пользоваться пространством.

Детская комната

В качестве фона для интерьера детской выбрана декоративная штукатурка с имитацией замши. Для напольного покрытия использовали инженерную доску — она не обладает повышенной износостойкостью, но очень приятна на ощупь.

➡️Товары бренда divan.ru

Прихожая

Визуальный ритм в коридоре задают декоративные балки на потолке, которые одновременно служат отсылкой к характерным для Петербурга мансардам.

Главный компромисс в семьях с детьми — это количество вещей. Когда супруги  обрастают увлечениями, игрушками, одеждой, книгами, то все это непросто уместить в квартиру. Вы удивитесь, но дефицит свободных площадей есть всегда, даже в квартирах по 200-300 квадратов. Потому что запросы клиентов на комфорт растут вместе с квартирой. Хранение на этом объекте продумано до мелочей: в прихожей есть изолированная гардеробная и отдельная постирочная с хозяйственным блоком.

Гостевой санузел

Для санузлов выбрана общая цветовая концепция: теплые бежевые оттенки сочетаются здесь с графичными черными элементами. В гостевом санузле небольшого размера расположили раковину, унитаз и ванну за стеклянной перегородкой.

-9

💥Больше выгоды в divan.ru на покупки с промокодами:

-5000₽ на заказ от 75 000₽ с ДАРИМ5 | -15 000₽ на заказ от 150 000₽ с ДАРИМ15

-10

============================

Оцените интерьер в комментариях, а если материал понравился — не забудьте поставить лайк👍

🖤divan.ru — не только блог про интерьеры, но и производитель доступной дизайнерской мебели. Ищите новые идеи и переходите на сайт, чтобы воплотить их в жизнь.