Найти в Дзене
Берег Песочной

Представляем дом МС-198 — современное решение для большой семьи!

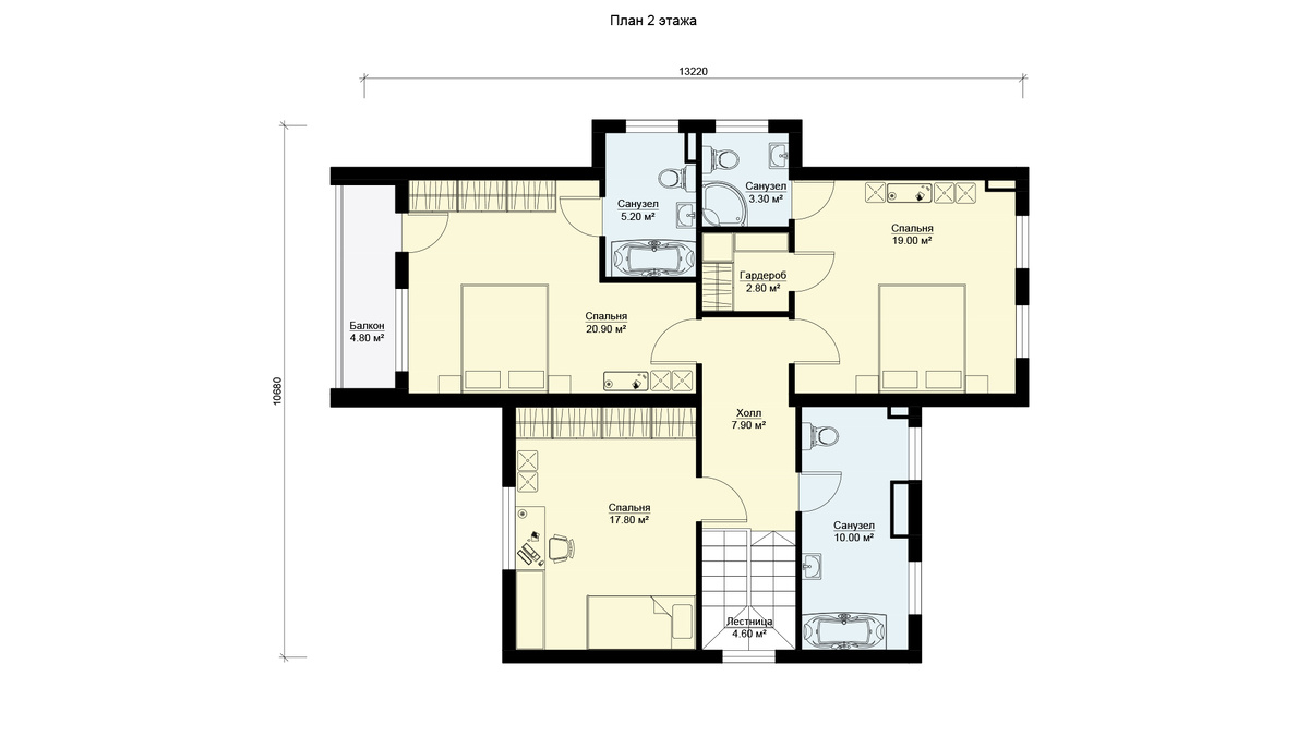
🏡✨ Представляем дом МС-198 — современное решение для большой семьи! Дом МС-198 — это вариация популярного проекта МС-253/1 с плоской кровлей. Это просторный двухэтажный дом в современном европейском стиле, идеально подходящий для семьи из 6-8 человек или даже трех поколений! 🛋 Особенности дома: Просторная гостиная и кухня-столовая на первом этаже — место для семейных встреч и теплых ужинов Три уютные спальни и четыре санузла — комфорт и удобство для всех жильцов и гостей Разделение зон отдыха и досуга — для гармонии и уюта 📐 Планировка: 1 этаж включает: тамбур, холл (10,7 м²), гостиную с кухней (36,4 м²), санузел (4,6 м²), кабинет (9,8 м²), котельную 2 этаж — для отдыха: холл (7,9 м²), 3 спальни (от 17,8 до 20,9 м²), гардеробная, 3 санузла и балкон (4,8 м²) 🌿 Балконы и террасы: Выход на террасу из гостиной — место для отдыха на свежем воздухе. А хозяйская спальня радует балконом! 🔥 Технические помещения: Отдельная котельная с современным оборудованием, расположенная на первом эта

🏡✨ Представляем дом МС-198 — современное решение для большой семьи!

Дом МС-198 — это вариация популярного проекта МС-253/1 с плоской кровлей. Это просторный двухэтажный дом в современном европейском стиле, идеально подходящий для семьи из 6-8 человек или даже трех поколений!

-2
-3
-4
-5

🛋 Особенности дома:

Просторная гостиная и кухня-столовая на первом этаже — место для семейных встреч и теплых ужинов

Три уютные спальни и четыре санузла — комфорт и удобство для всех жильцов и гостей

Разделение зон отдыха и досуга — для гармонии и уюта

📐 Планировка:

1 этаж включает: тамбур, холл (10,7 м²), гостиную с кухней (36,4 м²), санузел (4,6 м²), кабинет (9,8 м²), котельную

2 этаж — для отдыха: холл (7,9 м²), 3 спальни (от 17,8 до 20,9 м²), гардеробная, 3 санузла и балкон (4,8 м²)

🌿 Балконы и террасы: Выход на террасу из гостиной — место для отдыха на свежем воздухе. А хозяйская спальня радует балконом!

🔥 Технические помещения: Отдельная котельная с современным оборудованием, расположенная на первом этаже — удобно и функционально.

🔧 Варианты планировки — возможны изменения без дополнительных затрат:

изменение назначения кабинета

разделение гостиной, кухни и столовой

расширение санузлов или гардеробных

🔗 Подробнее о проекте → https://beregpesochnoy.ru/project/ms-198/?utm_source=dzen

🤔 Заинтересовались? Хотите узнать больше о стоимости или планировке? Звоните или пишите! 📞 +7 (495) 241-50-64

#строительство #доммечты #проектдома #частныйдом #современныйдом #семейныйдом #архитектура #жилье #усадьба #строимвместе #недвижимость2026