Добавить в корзинуПозвонить
Найти в Дзене

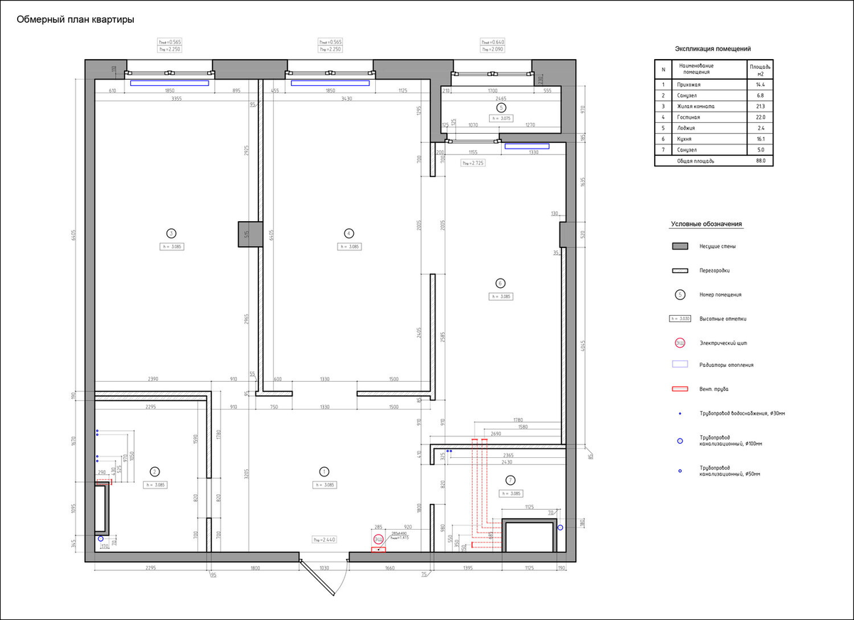
Обмерный план помещений

Обмерный план помещений.
Планируете ремонт квартиры, дома, других помещений.
Для этого сначала потребуется определить объёмы предстоящих работ.
Для таких расчётов делается обмерный план помещений.
Обмерный план нужен для составления сметы на все предстоящие работы.
Также он нужен проектировщику если вы затеваете перепланировку.
Без него никак не сможет обойтись дизайнер помещений.
Без него легко ошибиться заказывая и покупая мебель. Обмерный план как видите нужен всем, и в первую очередь владельцу квартиры дома, жилых и коммерческих помещений. И не всегда за него придётся платить. В некоторых случаях он делается бесплатно! Вы можете сами измерить все плоскости и записать все это на листочке или вы можете заказать профессионально составленный обмерный план, который будет содержать исчерпывающую информацию о вашем объекте. → Все размеры, всех плоскостей.
→ Места установки стояков коммуникаций.
→ Размер и расположение всех проёмов.
→ Указание на отклонения стен, на кривизну стен и даже из

Обмерный план помещений.
Планируете ремонт квартиры, дома, других помещений.
Для этого сначала потребуется определить объёмы предстоящих работ.
Для таких расчётов делается обмерный план помещений.
Обмерный план нужен для составления сметы на все предстоящие работы.
Также он нужен проектировщику если вы затеваете перепланировку.
Без него никак не сможет обойтись дизайнер помещений.
Без него легко ошибиться заказывая и покупая мебель.

Обмерный план как видите нужен всем, и в первую очередь владельцу квартиры дома, жилых и коммерческих помещений. И не всегда за него придётся платить. В некоторых случаях он делается бесплатно!

Вы можете сами измерить все плоскости и записать все это на листочке или вы можете заказать профессионально составленный обмерный план, который будет содержать исчерпывающую информацию о вашем объекте.

→ Все размеры, всех плоскостей.
→ Места установки стояков коммуникаций.
→ Размер и расположение всех проёмов.
→ Указание на отклонения стен, на кривизну стен и даже измерения каждого угла.

-2

Все это будет оформлено в понятный документ и снабжено фотографиями.
Имея такой документ, вы сможете просто отправить его отделочникам, и они посчитают вам стоимость работ отталкиваясь от данных, указанных в этом плане.
Альтернатива обмерному плану это терпеть визиты десятка человек и десятка строительных бригад, которые будут весело топтаться по вашей квартире шурша рулетками и составляя себе обмерные планы, каждому свой.
Согласитесь не самая интересная перспектива, которая потребует, как минимум большого количества времени и терпения.

Если хотите избежать всего этого просто позвоните.

→ Быстро приеду.
→ Быстро сниму все размеры.
→ Быстро оформлю все в единый документ.

Дополнительно посчитаю вам оценочную стоимость необходимых работ и проконсультирую по всем вопросам ремонта и отделки.
А если вас все устроит, то составлю финальный расчёт стоимости, подпишем договор и проведём ус вас все необходимые работы по ремонту и отделке, качественно по возможности тихо и с гарантией.
Просто позвоните и ваши планы начнут обретать реальную форму.

↓ Пожалуйста учитываете, что объявление не даёт полной информации, которую вы можете получить только связавшись со мной в переписке или по телефону.