Добавить в корзинуПозвонить
Найти в Дзене
Берег Песочной

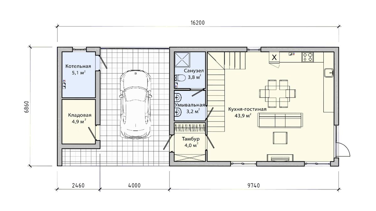
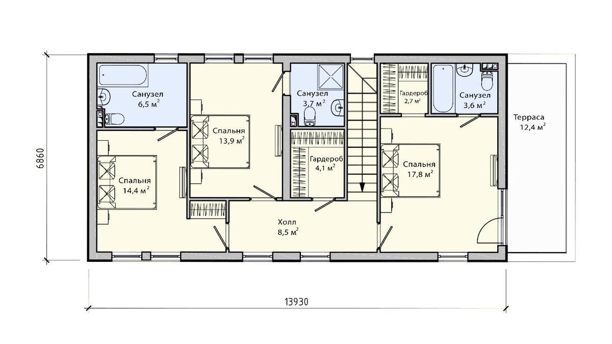
Проект ПБ-154 — современный двухэтажный дом размером 7x16 метров с 3 спальнями, общей площадью 157,3 м², с въездной аркой для парковки автом

🏡 Представляем наш новый проект — ПБ-154! 🎉 🔹 Описание проекта Проект ПБ-154 — современный двухэтажный дом размером 7x16 метров с 3 спальнями, общей площадью 157,3 м², с въездной аркой для парковки автомобиля. Наружные стены выполнены из утепленных сборных железобетонных панелей БЭНПАН Премиум толщиной 270 мм. Внутренние несущие стены — из панелей БЭНПАН 260 мм, межкомнатные перегородки — из панелей БЭНПАН 100 мм. Перекрытия между этажами — из сборных ЖБ плит толщиной 305 мм. Высота стен первого этажа — 3,2 м, второго — 2,72 м. Кровля — плоская, с наружным водостоком. Фасад отделан штукатуркой по панелям БЭНПАН Премиум, цоколь украшен мраморной крошкой. 🔹 Планировка дома 🚗 Первый этаж разделён въездной аркой, которая служит парковкой для автомобиля. 🛋 С одной стороны — кладовая и котельная, с другой — просторная кухня-гостиная (43,9 м²), санузел и умывальная. Входной тамбур защищает от холода. 🛏 На втором этаже — холл, три спальни (каждая со своим санузлом) и гардероб. Одна спа

🏡 Представляем наш новый проект — ПБ-154! 🎉

🔹 Описание проекта

Проект ПБ-154 — современный двухэтажный дом размером 7x16 метров с 3 спальнями, общей площадью 157,3 м², с въездной аркой для парковки автомобиля. Наружные стены выполнены из утепленных сборных железобетонных панелей БЭНПАН Премиум толщиной 270 мм. Внутренние несущие стены — из панелей БЭНПАН 260 мм, межкомнатные перегородки — из панелей БЭНПАН 100 мм.

-2
-3
-4
-5

Перекрытия между этажами — из сборных ЖБ плит толщиной 305 мм. Высота стен первого этажа — 3,2 м, второго — 2,72 м. Кровля — плоская, с наружным водостоком. Фасад отделан штукатуркой по панелям БЭНПАН Премиум, цоколь украшен мраморной крошкой.

🔹 Планировка дома

🚗 Первый этаж разделён въездной аркой, которая служит парковкой для автомобиля.

🛋 С одной стороны — кладовая и котельная, с другой — просторная кухня-гостиная (43,9 м²), санузел и умывальная. Входной тамбур защищает от холода.

🛏 На втором этаже — холл, три спальни (каждая со своим санузлом) и гардероб. Одна спальня имеет выход на большую террасу.

🔹 Особенность проекта

🚙 Технические помещения имеют отдельный вход с улицы и отделены от жилых зон, что обеспечивает удобство и безопасность.

🏡 Современный загородный коттедж с плоской кровлей и энергоэффективными панелями БЭНПАН рассчитан для комфортного проживания семьи из 4-5 человек. Срок службы — не менее 100 лет!

👉 Подробнее о проекте: https://beregpesochnoy.ru/construction/lot-no164/?utm_source=dzen

❓ А вы мечтаете о таком современном доме? Что для вас важнее — простор или энергоэффективность? Поделитесь в комментариях!

📞 Интересуетесь этим проектом? Пишите или звоните: +7 (495) 260-98-32

#дом #строительство #коттедж #загородныйдом #энергоэффективность #современныйдом #ПБ154 #жилье #недвижимость #архитектура #строиммечты