Добавить в корзинуПозвонить
Найти в Дзене
DIVAN.RU

Серо-розовый дуэт в трешке 57 кв.м: интерьер для молодой семьи

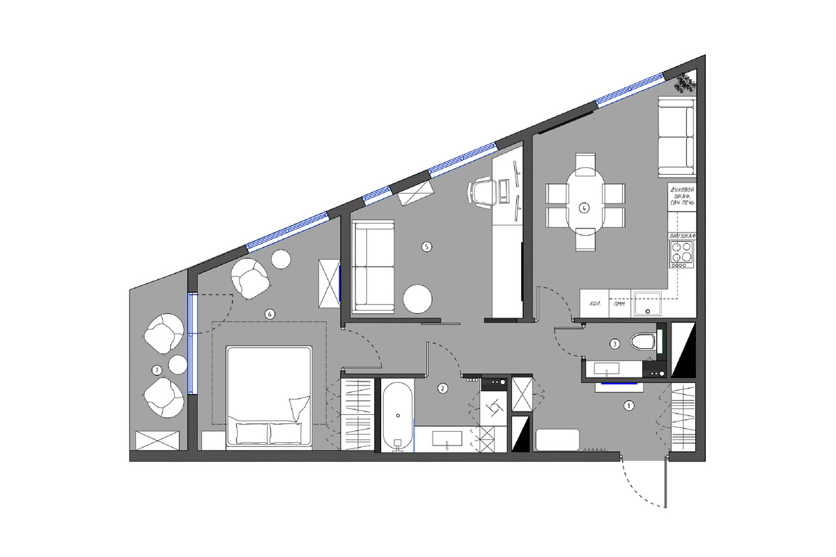
емонт в своей первой квартире владельцы начали незадолго до свадьбы. Целью было создать современный, «легкий», минималистичный и функциональный интерьер, отражающий вкусы обоих супругов. Посмотрим, что получилось. Объект: трехкомнатная квартира 57 кв.м, г. Санкт-Петербург (потолки 2,8 м) Автор проекта: дизайнер Александра Зиновьева, декоратор Алена Эйдис, автор съемки Кристина Плеер Бюджет проекта: 5 млн рублей «Квартира принадлежит молодой семейной паре, — делится автор проекта. — Ребята любят путешествия, посиделки с друзьями, собирают виниловые пластинки и планируют первенца. Дизайн интерьера должен был отразить эти аспекты. Ключевыми задачами стали максимальная интеграция систем хранения и создание гибкой планировки с перспективой появления ребенка». Квартира нестандартной формы — комнаты сужаются к одному углу. Ванную расширили за счет гардероба, дверной проем в гостиную перенесли для улучшения эргономики. «Мы оптимизировали хранение, — отмечает дизайнер. — В ванной появился шкаф
Оглавление

емонт в своей первой квартире владельцы начали незадолго до свадьбы. Целью было создать современный, «легкий», минималистичный и функциональный интерьер, отражающий вкусы обоих супругов. Посмотрим, что получилось.

Объект: трехкомнатная квартира 57 кв.м, г. Санкт-Петербург (потолки 2,8 м)

Автор проекта: дизайнер Александра Зиновьева, декоратор Алена Эйдис, автор съемки Кристина Плеер

Бюджет проекта: 5 млн рублей

«Квартира принадлежит молодой семейной паре, — делится автор проекта. — Ребята любят путешествия, посиделки с друзьями, собирают виниловые пластинки и планируют первенца. Дизайн интерьера должен был отразить эти аспекты. Ключевыми задачами стали максимальная интеграция систем хранения и создание гибкой планировки с перспективой появления ребенка».

Пожелания заказчиков

  • Серо-розовая гамма в интерьере.
  • Спроектировать интерьер гостиной с учетом будущей трансформации в детскую комнату.
  • Максимальное количество мест для хранения.

Планировочное решение

Квартира нестандартной формы — комнаты сужаются к одному углу. Ванную расширили за счет гардероба, дверной проем в гостиную перенесли для улучшения эргономики.

«Мы оптимизировали хранение, — отмечает дизайнер. — В ванной появился шкаф до потолка со стиральной машиной, в прихожей вентканал “превратили” в шкаф для бытовых вещей. Гостиную украсили легкие навесные шкафы со светлой отделкой и подсветкой. Вся мягкая мебель, от пуфа до кровати, оснащена внутренним хранением».

Стены в квартире оклеены однотонными обоями, имитирующими окраску, с добавлением фактурных обоев для акцентов. Пол отделан инженерной доской, которую супруги посчитали оптимальным выбором за приятные тактильные ощущения от натурального дерева.

Кухня

Кухонный гарнитур изготовлен из ЛДСП, фасады выполнены из МДФ с эмалевым покрытием. Столешница из искусственного камня, фартук — из керамогранита. «При выборе материалов приоритетом стала их долговечность. Особое внимание было уделено столешнице из искусственного камня, которая отличается высокой устойчивостью к влаге, температурным перепадам и возможностью реставрации при повреждениях», — аргументирует выбор дизайнер.

Обратите внимание: кухня оснащена всей необходимой техникой, включая посудомоечную машину и винный шкаф.

Для долгих посиделок во время застолья и на случай ночевки гостей на кухню заказали раскладной диван. Модель Слипсон Мини от бренда divan.ru поставили у окна. По словам хозяев квартиры, это один из самых удобных диванов, на котором они сидели.
Диван Слипсон Мини divan.ru
Диван Слипсон Мини divan.ru

➡️Товары бренда divan.ru

Декоративную функцию выполняет забавный постер. Особое место на одной из полок гарнитура, за стеклянной витриной, занимает редкий сервиз, который изготовлен вручную в Голландии компанией Pols Potten.

Гостиная

Эта комната многофункциональна: здесь владельцы слушают музыку, читают книги, смотрят фильмы и работают. В случае приезда гостей она трансформируется в спальню. Планируется, что в будущем комната станет детской.

Площадь здесь небольшая, поэтому громоздкую мебель не использовали. Рабочий стол дополнили рядом навесных шкафов. Акцент интерьера — розовый диван Льери Мини от divan.ru.

➡️Товары бренда divan.ru

Спальня

Изначально небольшая спальня позволяла разместить тумбу лишь с одной стороны кровати. После перепланировки, когда отдельная гардеробная исчезла, в спальне спроектировали вместительный встроенный шкаф. По индивидуальному заказу изготовили кровать с высоким изголовьем до потолка, дополнив конструкцию местом для хранения вещей.

-6

Обратите внимание: с целью визуального расширения пространства на стене по бокам от изголовья смонтированы зеркала.

Ванная и туалет

Для удобства хозяйки, которая предпочитает делать макияж в ванной, здесь установили большую тумбу. Чтобы с пользой использовать каждый сантиметр пространства, боковую часть стены оформили как встроенную систему хранения, куда спрятали стиральную машину.  Владельцы сохранили любимую ванну, отказавшись от замены ее на душевую кабину. В туалете установили узкую тумбу с раковиной, где организовано хранение бытовой химии.

Прихожая

Пол в прихожей выложен крупноформатной плиткой. Выступ вентиляционного канала был расширен и трансформирован в шкаф для хранения бытовых принадлежностей. Для освещения потолка использована современная система — магнитный шинопровод.

🛍🛒 Пусть зима запомнится удачными покупками! Весь февраль отдаём с выгодой до 50% мебель и товары для дома. Всё ждет в наличии на divan.ru >>

-10

============================

Оцените статью в комментариях, а если материал понравился — не забудьте поставить лайк👍

🖤divan.ru — не только блог про интерьеры, но и производитель доступной дизайнерской мебели. Ищите новые идеи и переходите на сайт, чтобы воплотить их в жизнь.