Найти в Дзене
Севастополь в курсе

Общественные обсуждения реконструкции моста у вокзала начались в Севастополе

До 17 февраля 2026 года горожане могут ознакомиться с планами по «Днепровскому» мосту, признанному предаварийным ещё в 2019 году. По проекту, на мосту сохранят пять полос, скорость снизят до 50 км/ч. Проезжая часть станет чуть шире — 22,15 м, тротуары суммарно займут 2,75 м. В дептрансе уточнили, что окончательные параметры определят после экспертизы. 💿Мы в MAX — подпишись! 🔴Подписаться на Севастополь в курсе

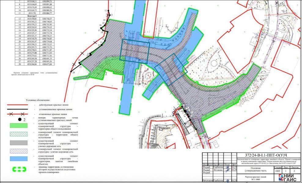
Общественные обсуждения реконструкции моста у вокзала начались в Севастополе

До 17 февраля 2026 года горожане могут ознакомиться с планами по «Днепровскому» мосту, признанному предаварийным ещё в 2019 году.

По проекту, на мосту сохранят пять полос, скорость снизят до 50 км/ч. Проезжая часть станет чуть шире — 22,15 м, тротуары суммарно займут 2,75 м. В дептрансе уточнили, что окончательные параметры определят после экспертизы.

💿Мы в MAX — подпишись!

🔴Подписаться на Севастополь в курсе

-2