Добавить в корзину
Позвонить
Найти в Дзене
Войти
Андрей Червяков "А4-правильный ф
36 подписчиков
Подписаться
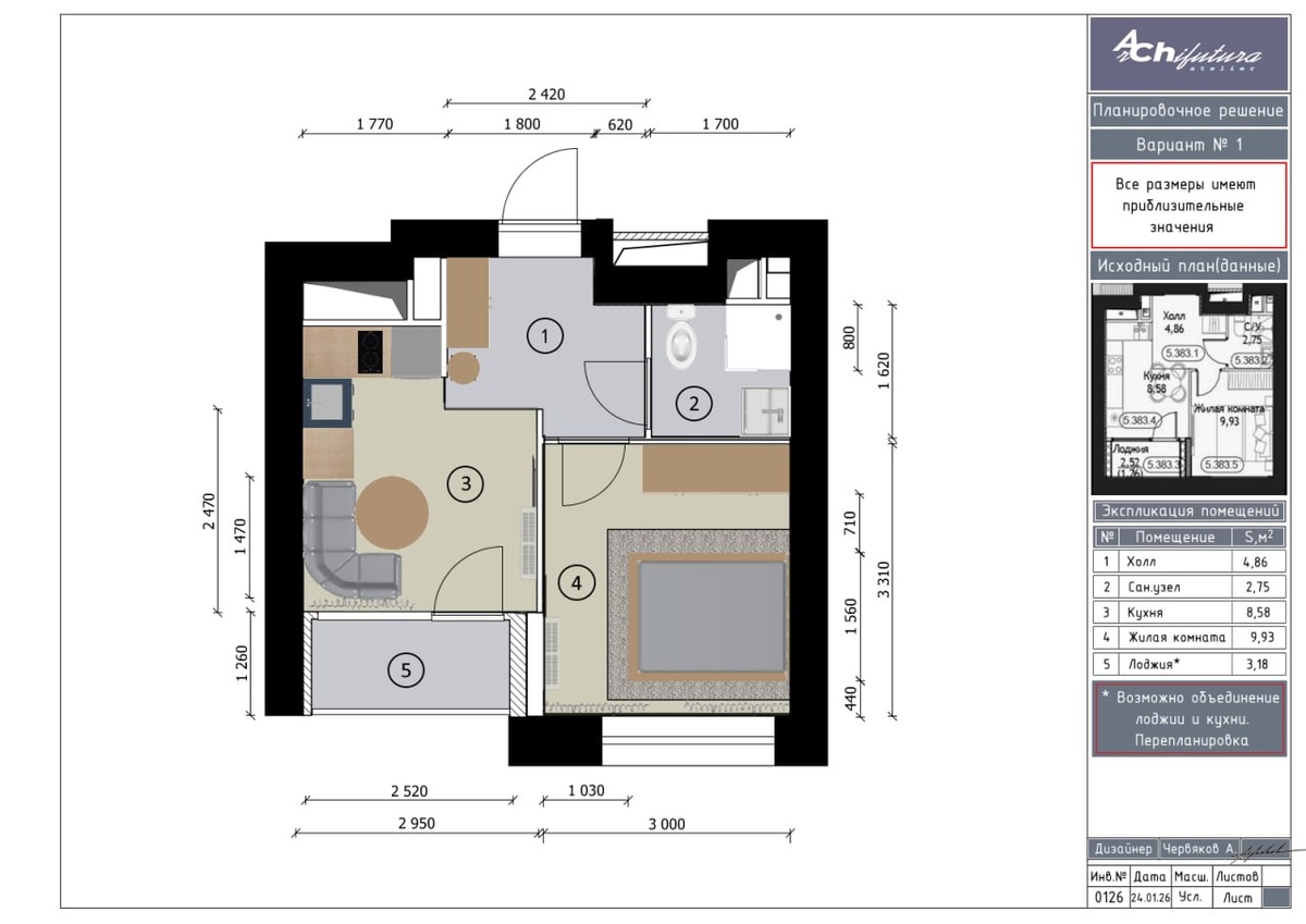
Вариант 1
5 февраля
5 фев
Классик.
Классик.
...
Читать далее
Вариант 1.Классик.
252833751.942.1776092312380.68432