Найти в Дзене
ДОМ с умом

Проект "Эрнест"

Проект создавался для семьи, где вместе живут несколько поколений. Основной задачей стала чёткая организация пространства, обеспечивающая комфортное сосуществование: отдельные зоны для родителей, детей, страшего поколения, а также продуманное разделение на общие и приватные пространства. Общая площадь - 220,9 кв.м
Жилая площадь - 192,9 кв.м
Габариты - 16,8 х 14,7 м
Фундамент: монолитная железобетонная плита
Стены: керамзитоблок 390 мм, утеплитель 100 мм
Отделка фасада: кирпич
Межэтажное и чередачное перекрытие - монолитное железобетонное
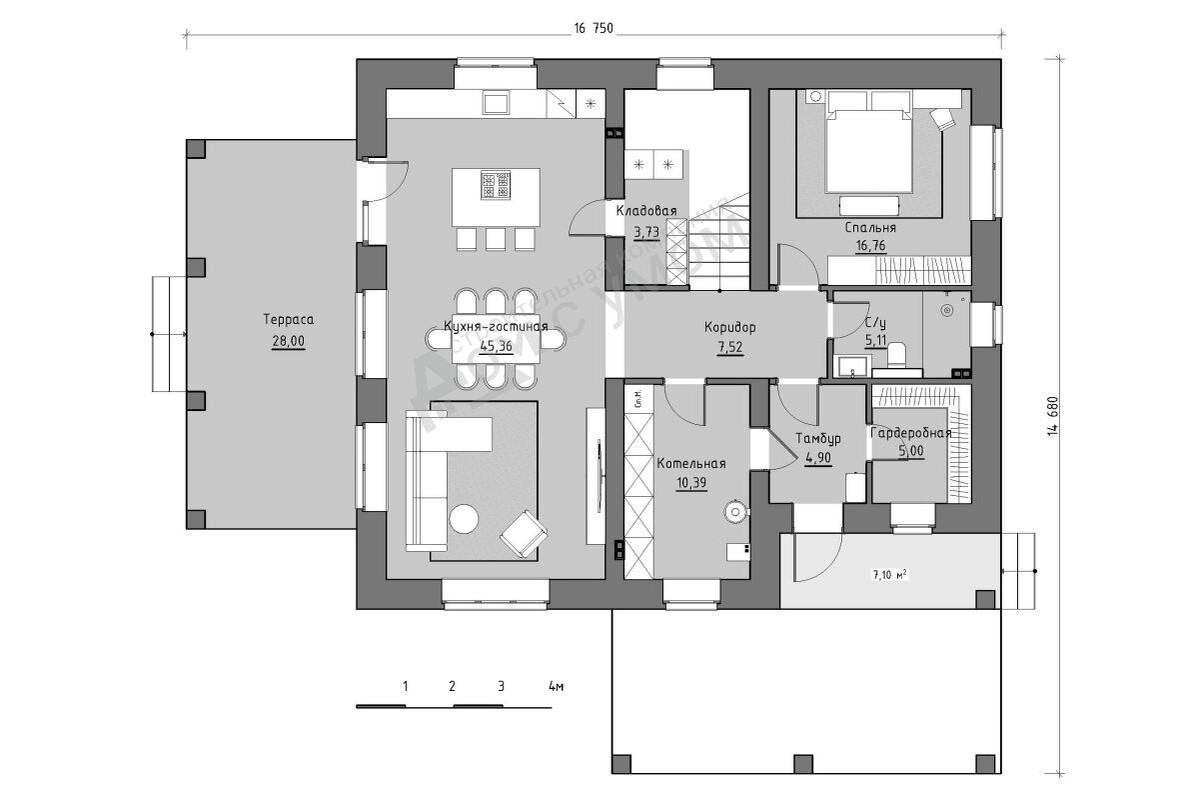
Крыша - из металлочерепицы по деревянной стропильной системе На первом этаже кипит жизнь: просторная кухня-гостиная, где так приятно собираться всем вместе, выход на террасу для летних завтраков. Здесь же расположена одна из спален и сосредоточены все хозяйственные помещения: гардеробная, кладовая и котельная. Второй этаж - тихая зона отдыха. Три уютные спальни, среди которых родительская с отдельной ванной и гардеробом. Постирочная решает вопрос с х
Оглавление

Проект создавался для семьи, где вместе живут несколько поколений. Основной задачей стала чёткая организация пространства, обеспечивающая комфортное сосуществование: отдельные зоны для родителей, детей, страшего поколения, а также продуманное разделение на общие и приватные пространства.

Характеристики:

Общая площадь - 220,9 кв.м
Жилая площадь - 192,9 кв.м
Габариты - 16,8 х 14,7 м
Фундамент: монолитная железобетонная плита
Стены: керамзитоблок 390 мм, утеплитель 100 мм
Отделка фасада: кирпич
Межэтажное и чередачное перекрытие - монолитное железобетонное
Крыша - из металлочерепицы по деревянной стропильной системе

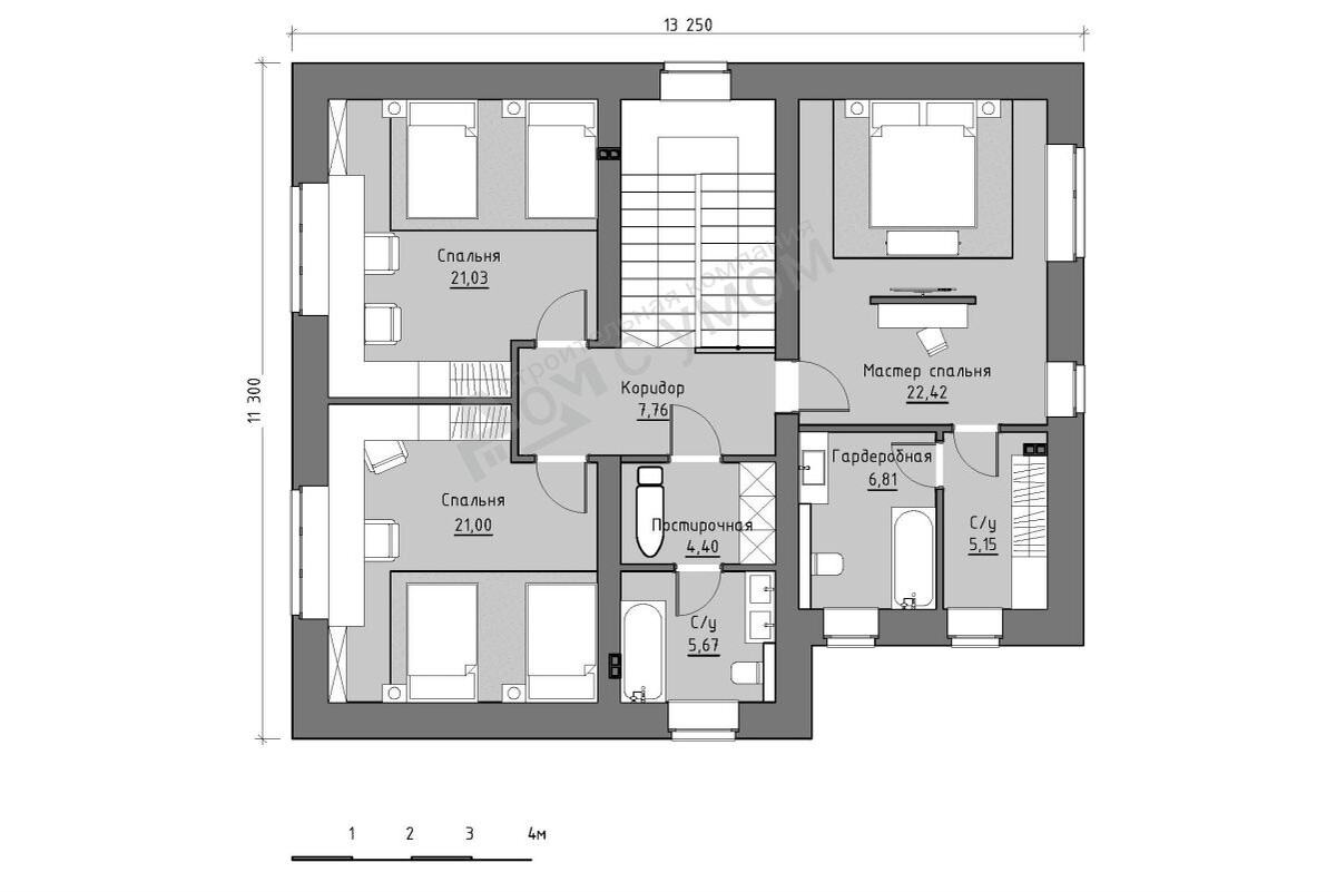
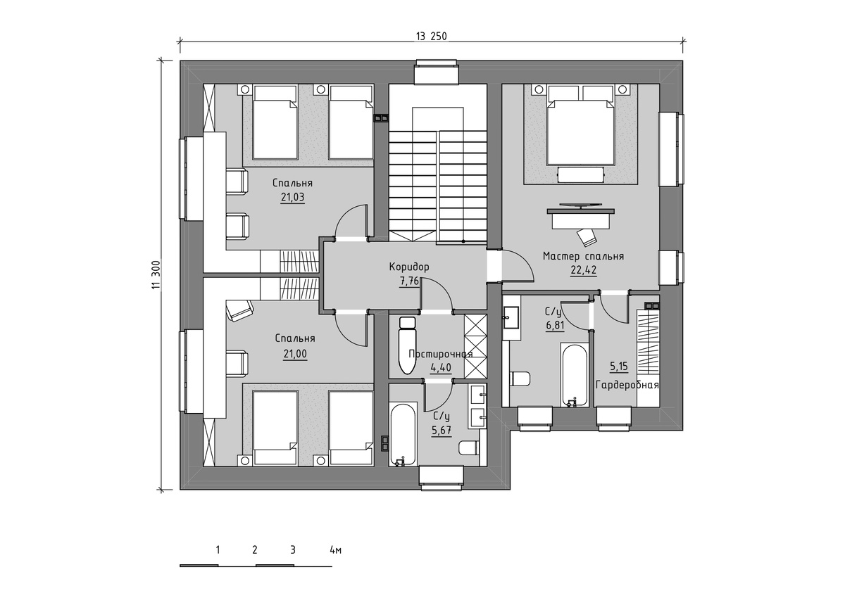
Планировка:

На первом этаже кипит жизнь: просторная кухня-гостиная, где так приятно собираться всем вместе, выход на террасу для летних завтраков. Здесь же расположена одна из спален и сосредоточены все хозяйственные помещения: гардеробная, кладовая и котельная. Второй этаж - тихая зона отдыха. Три уютные спальни, среди которых родительская с отдельной ванной и гардеробом. Постирочная решает вопрос с хранением и стиркой - все необходимое под рукой, но не на виду.

📌Жилая площадь – 192,2 кв.м
📌Кухня-гостиная – 45,3 кв.м
📌Спальни – 4 шт.
📌Терраса – 28 кв.м