Добавить в корзинуПозвонить
Найти в Дзене

Проект компактного брусового дома "Федор"

Этот дом не смотря на небольшие размеры имеет 3 спальни, гостевую и большую открытую веранду Дом построен из сухого профилированного бруса Фундамент - ж/б сваи. Кровля -металлочерепица. Скачать проект в PDF можно здесь: https://disk.yandex.ru/i/N6w-cJhTnzGEbw Имеется рабочая документация.
Проект Федор
Проект Федор

Этот дом не смотря на небольшие размеры имеет 3 спальни, гостевую и большую открытую веранду

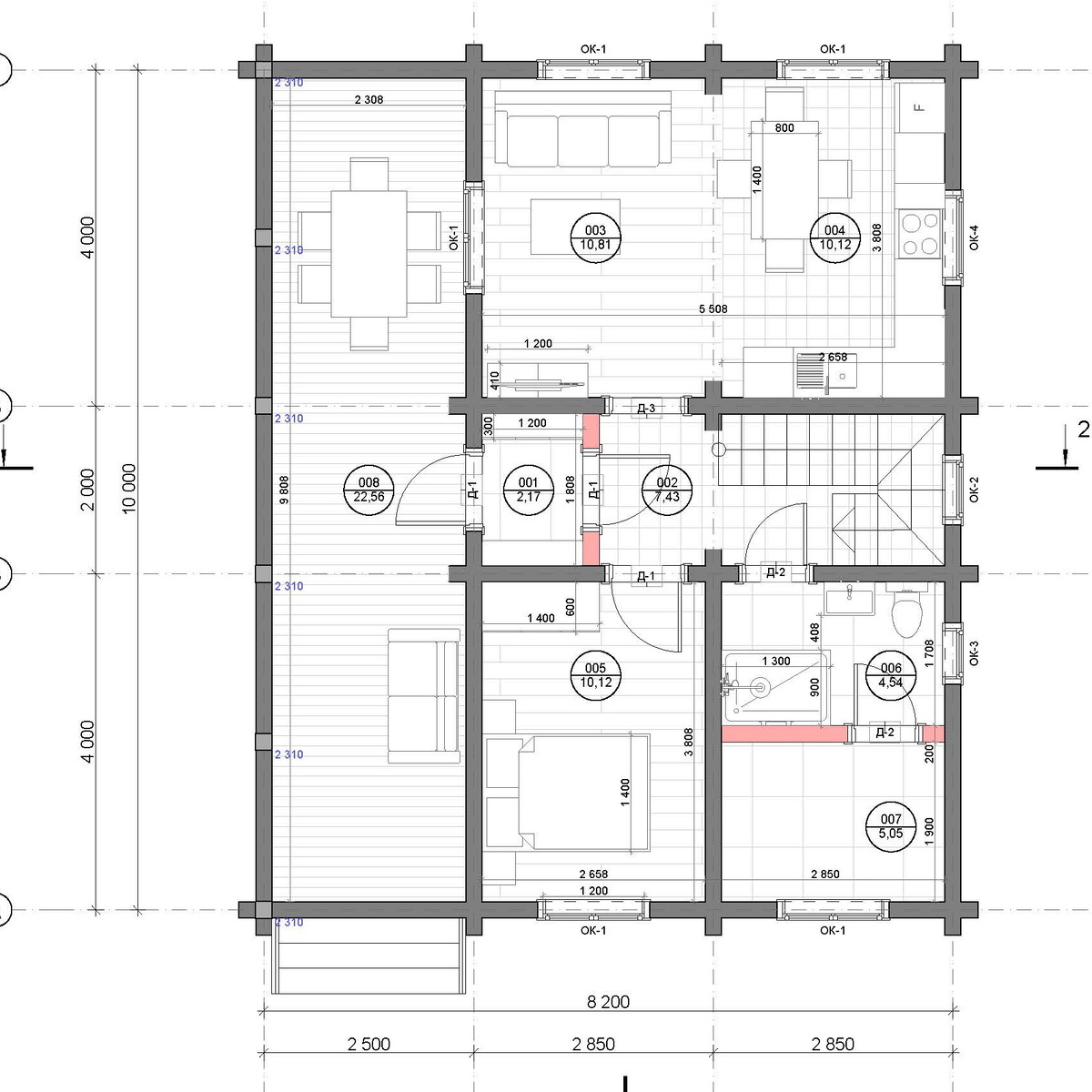
План первого этажа
План первого этажа
План второго этажа.
План второго этажа.

Дом построен из сухого профилированного бруса

Проект Федор
Проект Федор

Фундамент - ж/б сваи. Кровля -металлочерепица.

Разрез
Разрез
Разрез.
Разрез.

Скачать проект в PDF можно здесь: https://disk.yandex.ru/i/N6w-cJhTnzGEbw

Имеется рабочая документация.