Найти в Дзене

7 ошибок в планировке, которые делают даже дизайнеры

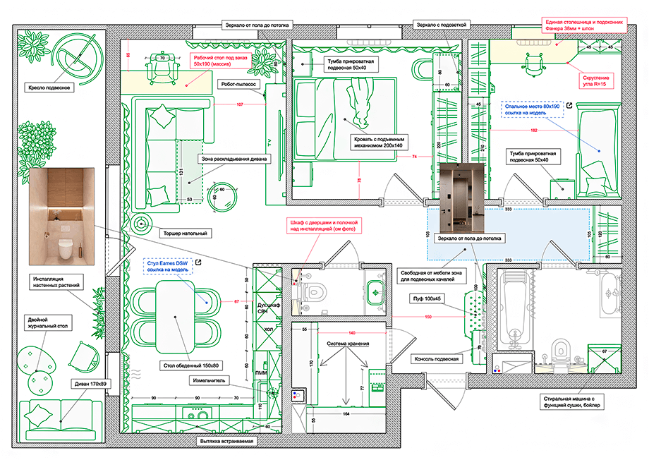
Планировка — это не про расстановку мебели. Это пространственная инженерия: геометрия движения, логика коммуникаций, акустика, свет, нагрузка на инженерные системы. Даже опытные дизайнеры иногда проектируют квартиру как картинку, а не как среду эксплуатации. Эти ошибки встречаются не в «дешевых ремонтах», а в дорогих проектах. Их объединяет одно: они становятся заметны только после заселения. Дизайнеры часто работают композиционно: вид из входа, ось на окно, симметрия мебели. Но человек живет не по оси — он двигается по траекториям. Типичная проблема — пересечение потоков: Минимальный комфортный проход — 900 мм, но в активных зонах (кухня, гардероб, санузел) нужен запас 1000–1100 мм. Если этого нет, квартира начинает «тереться» — люди постоянно обходят предметы. Хорошая планировка читается как транспортная схема: где главные маршруты, где тупики, где буферные зоны. На планах стены часто выглядят как линии. В реальности: В результате: Ошибка не в расчете сантиметров — ошибка в мышлении
Оглавление

Планировка — это не про расстановку мебели. Это пространственная инженерия: геометрия движения, логика коммуникаций, акустика, свет, нагрузка на инженерные системы. Даже опытные дизайнеры иногда проектируют квартиру как картинку, а не как среду эксплуатации.

Эти ошибки встречаются не в «дешевых ремонтах», а в дорогих проектах. Их объединяет одно: они становятся заметны только после заселения.

Ошибка №1. Проектировать по визуальной оси, а не по маршрутам движения

-2

Дизайнеры часто работают композиционно: вид из входа, ось на окно, симметрия мебели. Но человек живет не по оси — он двигается по траекториям.

Типичная проблема — пересечение потоков:

  • кухня открывается в зону прохода;
  • дверцы шкафов блокируют маршруты;
  • стул в рабочей зоне перекрывает транзит.
Дизайн-проект квартиры от RemPlanner
Дизайн-проект квартиры от RemPlanner

Минимальный комфортный проход — 900 мм, но в активных зонах (кухня, гардероб, санузел) нужен запас 1000–1100 мм. Если этого нет, квартира начинает «тереться» — люди постоянно обходят предметы.

Хорошая планировка читается как транспортная схема: где главные маршруты, где тупики, где буферные зоны.

Ошибка №2. Игнорировать толщины конструкций и реальную геометрию

Пример листа из дизайн-проекта студии RemPlanner
Пример листа из дизайн-проекта студии RemPlanner

На планах стены часто выглядят как линии. В реальности:

  • перегородка = 80–120 мм;
  • облицовка плиткой = +15–25 мм;
  • шумоизоляция = +50–70 мм;
  • короб под коммуникации = +100 мм и больше.

В результате:

  • ванна «не влезает»;
  • инсталляция выступает;
  • дверь упирается в короб;
  • шкаф теряет глубину.
Пример листа из дизайн-проекта студии RemPlanner
Пример листа из дизайн-проекта студии RemPlanner

Ошибка не в расчете сантиметров — ошибка в мышлении плоскостью вместо объема. Планировка должна проектироваться в 3D с учетом всех слоев пирога стены и пола.

Каждый сантиметр в мокрых зонах — критичен.

Ошибка №3. Переоценка open space

Пример листа из дизайн-проекта студии RemPlanner
Пример листа из дизайн-проекта студии RemPlanner

Открытая планировка выглядит эффектно, но дизайнеры часто игнорируют акустику и запахи. Кому-то это подходит, а кому-то нет.

Кухня-гостиная без буферных зон приводит к:

  • распространению шума;
  • запахам готовки;
  • отсутствию приватности;
  • акустическому эху.
-7

Проблема не в open space как таковом, а в отсутствии границ. Пространство должно иметь мягкое зонирование:

  • перепады потолка;
  • разные материалы пола;
  • мебельные острова;
  • разрывы в освещении.

Без этого помещение превращается в один акустический объем.

Ошибка №4. Неправильная логика хранения

-8

Квартира — это в первую очередь система хранения. Главная ошибка — концентрировать хранение в одном месте. Система должна быть распределенной:

  • прихожая — обувь и сезон, робот-пылесос, полка для сумки, ключей, телефона (+ зеркало);
  • гардеробная — обувь и хранение, чемоданы, спортивный инвентарь;
  • кухня — хозяйственный блок;
  • спальня — повседневное личное хранение;
  • скрытая сервисная зона — уборка.

Планировка без логики хранения всегда проигрывает быту.

Ошибка №5. Неправильная работа со светом в глубине квартиры

Пример листа из дизайн-проекта студии RemPlanner
Пример листа из дизайн-проекта студии RemPlanner

Дизайнеры проектируют свет как декор: красивые светильники, сценарии, подсветки. Но не решают главную задачу — перенос естественного света вглубь.

Типичные ошибки:

  • глухие перегородки;
  • длинные темные коридоры;
  • закрытые кухни у окна;
  • комнаты с темными стенами;
  • перегруженные стены.
-10

В глубине квартиры формируются «мертвые зоны», где всегда темно. Это влияет не только на эстетику, но и на психологический комфорт.

Планировка должна работать как световой коллектор:

  • стеклянные перегородки;
  • проемы;
  • отражающие поверхности;
  • светлые буферные зоны.

Свет — это архитектурный материал, а не элемент декора. Смотрите полезное видео о работе с освещением здесь.

Ошибка №6. Отсутствие технических зон

В этом дизайн-проекте квартиры от RemPlanner вы можете заметить два встроенных шкафа в коридоре, постирочную (техническую) зону слева от входной двери и отдельную гардеробную
В этом дизайн-проекте квартиры от RemPlanner вы можете заметить два встроенных шкафа в коридоре, постирочную (техническую) зону слева от входной двери и отдельную гардеробную

Квартира без технических зон выглядит красиво до первого бытового кризиса.

Где живут:

  • пылесос;
  • швабра;
  • бойлер;
  • фильтры;
  • щит;
  • интернет-оборудование?
-12

Если для них нет места, техника вторгается в жилое пространство.

Профессиональная планировка всегда содержит:

  • сервисный шкаф для уборки;
  • техническую нишу;
  • отдельную зону постирочной (даже если она в ванной);
  • ревизионные зоны.

Это не роскошь — это инфраструктура квартиры.

Ошибка №7. Планировать мебель как статичную

-13

На планах мебель выглядит фиксированной. В реальности квартира живет 10–20 лет:

  • меняются сценарии;
  • появляется техника;
  • дети растут;
  • функции комнат трансформируются.
-14

Если планировка слишком жесткая, она устаревает быстрее, чем ремонт.

Гибкая планировка предусматривает:

  • запасные розетки;
  • свободные стены;
  • трансформируемые зоны;
  • нейтральные маршруты движения.

Квартира должна адаптироваться, а не сопротивляться изменениям.