Добавить в корзинуПозвонить
Найти в Дзене
Дом Мечты

Как спрятать быт в доме так, чтобы было легко? Хозпомещения, кладовые и постирочная

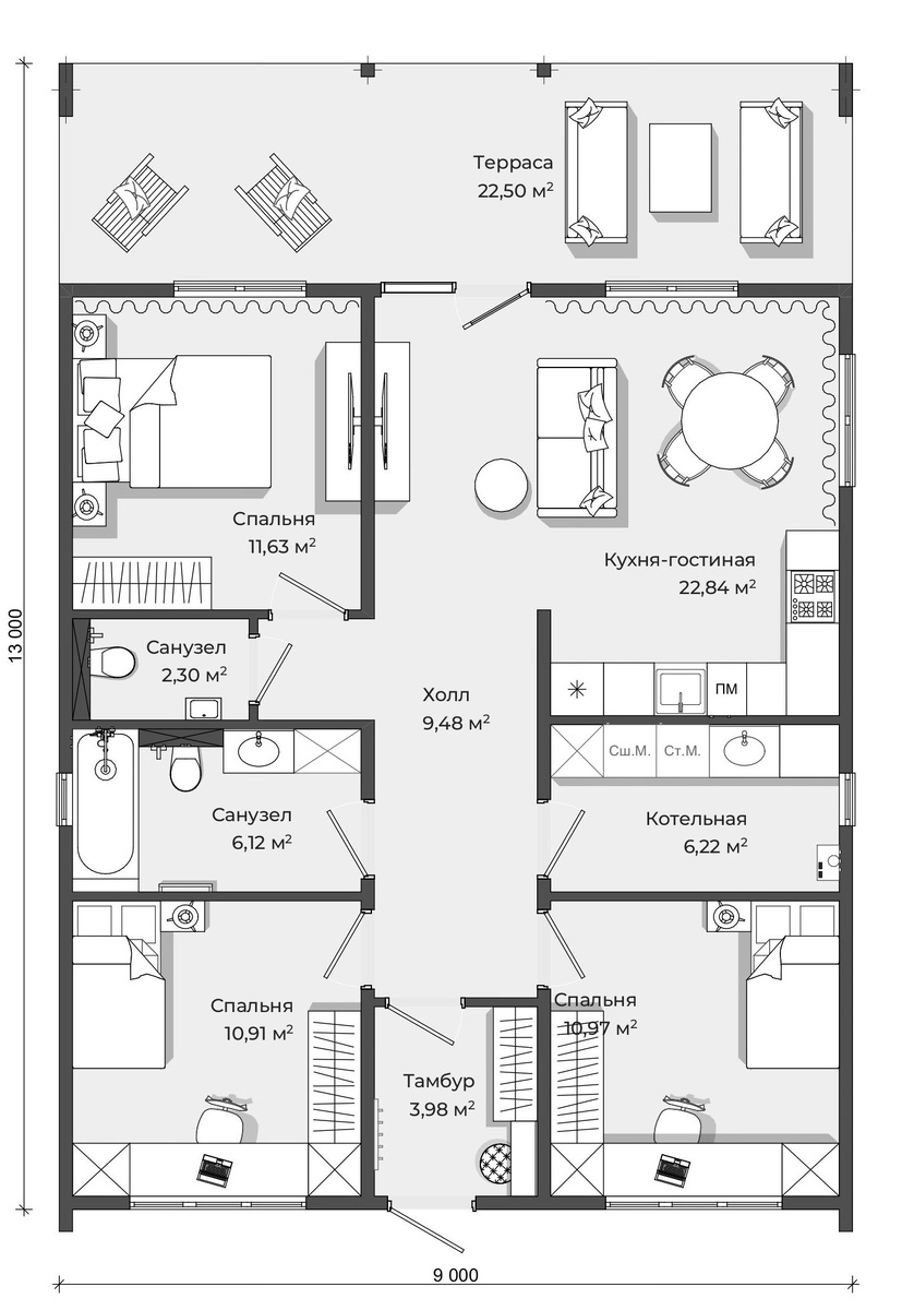
Когда мы задумываемся о собственном доме, в голове сразу возникает образ уюта: светлая гостиная, аккуратная кухня, спальня, в которой хочется отдыхать, и терраса для тёплых вечеров. Но почти никто не думает о том, что на самом деле сопровождает нашу повседневную жизнь. Пылесос, бытовая химия, корзины с бельём, сезонная одежда, инструменты, чемоданы, запасы — всё это неизбежно появляется в любом доме. И если заранее не продумать, где этому быту жить, он постепенно начинает захватывать пространство. Одна из самых частых ошибок — надеяться, что всё как-нибудь «само разложится». Визуальный шум накапливается быстро. Даже в чистом доме появляется ощущение беспорядка. Хозпомещения позволяют убрать всё лишнее с глаз, освободить жилые комнаты и сделать пространство спокойным. Один из ключевых моментов, который часто недооценивают, — это наличие технических помещений. Почти во всех проектах «Дом Мечты» изначально предусмотрены котельные комнаты площадью от 4 до 6 м². На первый взгляд кажется, ч
Оглавление

Когда мы задумываемся о собственном доме, в голове сразу возникает образ уюта: светлая гостиная, аккуратная кухня, спальня, в которой хочется отдыхать, и терраса для тёплых вечеров. Но почти никто не думает о том, что на самом деле сопровождает нашу повседневную жизнь.

Пылесос, бытовая химия, корзины с бельём, сезонная одежда, инструменты, чемоданы, запасы — всё это неизбежно появляется в любом доме. И если заранее не продумать, где этому быту жить, он постепенно начинает захватывать пространство.

Почему быт нужно прятать, а не «расставлять по углам»

Одна из самых частых ошибок — надеяться, что всё как-нибудь «само разложится». Визуальный шум накапливается быстро. Даже в чистом доме появляется ощущение беспорядка. Хозпомещения позволяют убрать всё лишнее с глаз, освободить жилые комнаты и сделать пространство спокойным.

Как в проектах «Дом Мечты» решён вопрос бытового комфорта

Один из ключевых моментов, который часто недооценивают, — это наличие технических помещений. Почти во всех проектах «Дом Мечты» изначально предусмотрены котельные комнаты площадью от 4 до 6 м².

На первый взгляд кажется, что котельная — это исключительно инженерное помещение. Но на практике она становится важной частью системы хранения. Помимо котла, бойлера и инженерных узлов, здесь удобно разместить:

  • бытовую химию,
  • инструменты,
  • пылесос и уборочный инвентарь и так далее

Благодаря такому подходу инженерия не «расползается» по дому, а жилые пространства остаются свободными от технических предметов. Котельная становится фундаментом бытового порядка — тихим, закрытым и очень полезным помещением.

Когда в кладовой есть система — стеллажи, коробы, зонирование — она начинает работать на хозяев. В ней удобно хранить всё то, что не используется ежедневно, но должно быть под рукой. Важно понимать: она не обязательно должна быть большой, даже 2–3 квадратных метра при правильной организации избавляют дом от хаоса.

Обратите внимание, как мы внедряем дополнительные помещения в планировки проектов: котельные и кладовые небольшие по размеру, но ограничено интегрированы в дом ↓

Хозблок — эффективное решение

Если планировка не позволяет выделить отдельную кладовую, на помощь приходит хозблок. Это может быть встроенный шкаф или ниша, скрытая за глухими фасадами.

В нём размещаются те вещи, которые всегда мешают, если находятся на виду:
швабры, ведра, тряпки, бытовая химия, пакеты, пылесос. Главный принцип хозблока — доступность без визуального присутствия. Он может находиться в прихожей, коридоре или рядом с санузлом, но при этом не нарушать эстетику дома.

Комфорт начинается не с интерьера, а с планировки

Именно на этапе проекта закладывается, будут ли в доме удобные хозпомещения, продуманная котельная, место для кладовой или постирочной.

Поэтому, в «Доме Мечты» мы предлагаем бесплатное проектирование — чтобы будущий дом изначально был адаптирован под реальную жизнь, а не под красивые картинки. Оставьте заявку на сайте для первичной консультации по дому вашей мечты 👇

Строительство и продажа домов в Калуге

Это возможность спокойно продумать планировку, задать вопросы, учесть привычки семьи и заранее предусмотреть всё, что сделает дом удобным на годы вперёд.