Добавить в корзинуПозвонить
Найти в Дзене

Еще 1 интересный вариант, но с рассрочкой в 5 лет

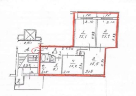
Еще 1 интересный вариант, но с рассрочкой в 5 лет. Можно сделать 5 студий Апартаменты (нежилое помещение) г. Долгопрудный ш. Лихачевское д. 13, площадь 78.3 кв.м., расположено на 1 этаже жилого дома, как 4-комнатная квартира, 2 лоджии. Документы: Договор аренды с Администрацией г. Долгопрудный, стоимость аренды 148 412,87 рублей в месяц. Выкуп: через 1 год, примерная цена выкупа 11 000 000 руб. Рассрочка на 5 лет. Стоимость ППА: 2 000 000 руб. Фото/план БТИ: https://clck.ru/3QjTas

Еще 1 интересный вариант, но с рассрочкой в 5 лет. Можно сделать 5 студий

Апартаменты (нежилое помещение) г. Долгопрудный ш. Лихачевское д. 13,

площадь 78.3 кв.м., расположено на 1 этаже жилого дома, как 4-комнатная квартира,

2 лоджии.

Документы: Договор аренды с Администрацией г. Долгопрудный, стоимость аренды

148 412,87 рублей в месяц.

Выкуп: через 1 год, примерная цена выкупа 11 000 000 руб. Рассрочка на 5 лет.

Стоимость ППА: 2 000 000 руб.

Фото/план БТИ:

https://clck.ru/3QjTas