Найти в Дзене
БАНЯ МСК

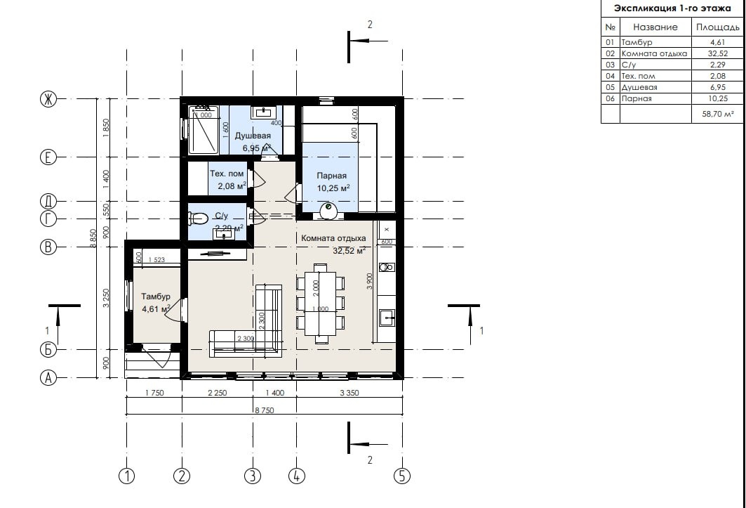
А вот проект бани из поста выше

Она создана на базе нашего флагманского проекта «Женева» (рендеры и историю создания можно посмотреть тут) Планировка получилась действительно удобной — все зоны тут на своих местах. Главное отличие от базовой «Женевы» — появление тамбура. Из-за него нам пришлось поднимать высоту и немного менять линию ската крыши, поэтому фасад стал отличаться от первоначальной версии концепта. 👍 Но это нормальный рабочий процесс: проект всегда подстраивается под стиль жизни заказчика, а не наоборот. А сам тамбур — решение более чем оправданное: — отсечка тёплого воздуха зимой, — удобное место для обуви и верхней одежды, — защита от сквозняков и грязи. В следующем посте покажем полный видео-обзор этой бани и расскажем, как всё работает вживую 👇 🍃 Подобрать баню для небольшого участка

А вот проект бани из поста выше

Она создана на базе нашего флагманского проекта «Женева»

(рендеры и историю создания можно посмотреть тут)

Планировка получилась действительно удобной — все зоны тут на своих местах.

Главное отличие от базовой «Женевы» — появление тамбура.

Из-за него нам пришлось поднимать высоту и немного менять линию ската крыши, поэтому фасад стал отличаться от первоначальной версии концепта.

👍 Но это нормальный рабочий процесс: проект всегда подстраивается под стиль жизни заказчика, а не наоборот.

А сам тамбур — решение более чем оправданное:

— отсечка тёплого воздуха зимой,

— удобное место для обуви и верхней одежды,

— защита от сквозняков и грязи.

В следующем посте покажем полный видео-обзор этой бани и расскажем, как всё работает вживую 👇

🍃 Подобрать баню для небольшого участка

-2
-3