Добавить в корзинуПозвонить
Найти в Дзене

Проект дома с эркерами 175 м2 ВиД25-6, 6 комнат, фото дома и интертьера

В предлагаемом доме с эркерами хватит места для семьи и гостей. Создадим проект дома по публикуемой концепции (характеристики ниже), предназначенной под строительство из кладочных материалов (кирпич, блоки). Этот проект дома отличается просторными, светлыми комнатами, создающими уникальную и уютную атмосферу. Планировка дома первый этаж: с улицы вы попадаете в широкий холл, который ведёт в светлую гостиную и столовую. Здесь достаточно места для всей семьи и приёма гостей. Кухня, примыкающая непосредственно к холлу, предлагает достаточно места для приготовления пищи. Напротив кухни находится коридор, ведущий в гостевую комнату (или кабинет). Прилегающая душевая также очень удобна для гостей, обеспечивая им уединение. Котельная совмещена с техническим помещением, в котором расположены узлы инженерных систем дома. Из всех комнат возможен прямой выход в сад. Там же расположена терраса для отдыха в летние, и не только, дни. План дома мансарда - спальная зона. На мансарде расположены две дет

В предлагаемом доме с эркерами хватит места для семьи и гостей. Создадим проект дома по публикуемой концепции (характеристики ниже), предназначенной под строительство из кладочных материалов (кирпич, блоки).

Этот проект дома отличается просторными, светлыми комнатами, создающими уникальную и уютную атмосферу.

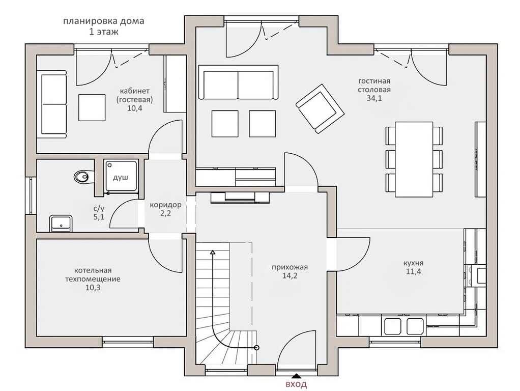
Планировка дома первый этаж: с улицы вы попадаете в широкий холл, который ведёт в светлую гостиную и столовую. Здесь достаточно места для всей семьи и приёма гостей. Кухня, примыкающая непосредственно к холлу, предлагает достаточно места для приготовления пищи.

Напротив кухни находится коридор, ведущий в гостевую комнату (или кабинет). Прилегающая душевая также очень удобна для гостей, обеспечивая им уединение. Котельная совмещена с техническим помещением, в котором расположены узлы инженерных систем дома.

Из всех комнат возможен прямой выход в сад. Там же расположена терраса для отдыха в летние, и не только, дни.

План дома мансарда - спальная зона.

На мансарде расположены две детские комнаты одинакового размера с большими окнами, выходящими в сад. Здесь достаточно места для игр, а позже и для письменных столов, что позволяет детям создать свой собственный личный уголок. На этом этаже также находятся домашний кабинет и главная спальня с отдельной гардеробной. Кабинет можно легко переоборудовать в ещё одну детскую спальню, если семейные планы изменятся: его площадь почти 11 квадратных метров.

Ванная комната с ванной и душем благодаря своему размеру, оснащению и планировке быстро превращается в место для личного оздоровления.

В публикуемую концепцию дома можем внести изменения: отредактировать планировочные решения, мансардный сделать полноценным вторым этажом, фасад спроектировать из лицевого кирпича и т.д.

Перейдя по ссылке на наш сайт, вы можете заказать проект дома под ключ, посмотреть визуализации и планировки в большем формате, прочесть подробные описания, а также большее количество проектов, в том числе несколько десятков готовых в качестве портфолио.

Мы выполняем:

1 Архитектурно-строительный (конструктивный) проект дома:

планы, разрезы, фасады, 3d виды, план крыши, ведомость оконных и дверных проёмов, план свайного поля, опалубочный план фундамента, армирование, сечения, узлы, планы перекрытий и перемычек, монолитные пояса, стропильная система и др.; сводная спецификация основных материалов строительства дома.

2 Предварительная смета строительства дома

2.1 Составляем по разработанному нами АС проекту дома.

2.2 По утверждённым планировочным и архитектурным решениям до разработки основной части проекта дома.

2.3 По понравившимся планировкам и визуализациям дома в интернете.

2.4 Другие варианты по согласованию с заказчиком.

3 Инженерный проект дома:

водоснабжение и канализация, отопление и вентиляция, электрика, другие разделы по согласованию.

4 Сопутствующие работы: выезд на участок застройки (посадка дома на участке и др.), технический надзор, обследование дома перед покупкой и другие по согласованию - по отдельному Договору с клиентом

* * *

Мы — это группа специалистов со стажем от 30-ти лет в строительной сфере и большим опытом эксплуатации частных домов.

Разработаем проект дома под ключ, состоящий из архитектурного и конструктивного разделов, по материалам которого составим предварительную смету (материалы, работа, техника) для оценки стоимости стройки.

У нас есть опыт не только проектирования, но и строительства частных домов — это позволяет выдавать подробный проект дома, понятный и бригадирам, и прорабам.

Далее можем, по согласованию с заказчиком, выполнить проект инженерных систем частного дома.

Обо всём написать невозможно, поэтому звоните - подробнее при общении.