Найти в Дзене
DIVAN.RU

Яркий дизайн для айтишницы в небольшой студии 32 кв.м

Палитра этого интерьера природная: нежного-зеленый цвет эвкалипта сочетается с теплом натурального дерева и оригинальной текстурой камня. Красок добавили с помощью текстиля, декора и картин. Посмотрим, что получилось. Изначально студия была пустой бетонной «коробкой» без какой-либо планировки. Вытянутая форма помещения позволила сделать четкое зонирование: теперь здесь есть зона отдыха с большим диваном, отдельное спальное место за стеклянной перегородкой, а также кухня-столовая, где часть гарнитура интегрирована в шкаф в прихожей. «Ключевую роль в проекте сыграл оттенок эвкалипта, дополненный деревом и камнем, — делится дизайнер. — Одни и те же оттенки в мебели, на полу и на стенах создают единое, органичное пространство. Краска и ЛДСП-панели объединяют прихожую со шкафами и гостиную с диваном. Чтобы избежать монотонности и скуки, стены сделали динамичными, добавив панели и игру ритмов. Финальным штрихом стали картины. Интерьер насыщен текстилем: шторы, покрывало, подушки с индивидуал
Оглавление

Палитра этого интерьера природная: нежного-зеленый цвет эвкалипта сочетается с теплом натурального дерева и оригинальной текстурой камня. Красок добавили с помощью текстиля, декора и картин. Посмотрим, что получилось.

  • Объект: студия 32 кв.м в новостройке в ЖК «Минск Мир», г. Минск (потолки 2,73 м)
  • Кто здесь живет: молодая девушка
  • Автор проекта: дизайнер Юлия Поздняк, JPHome Studio, автор фото Виталина Ворошкевич
  • Реализация: 2024 год

Пожелания заказчицы

  • Комфортное жилое пространство на 32 кв.м.
  • Яркий, но легкий интерьер, без ощущения перегруженности.
  • Четкое разделение на зоны: кухня, гостиная и спальня.

Планировочное решение

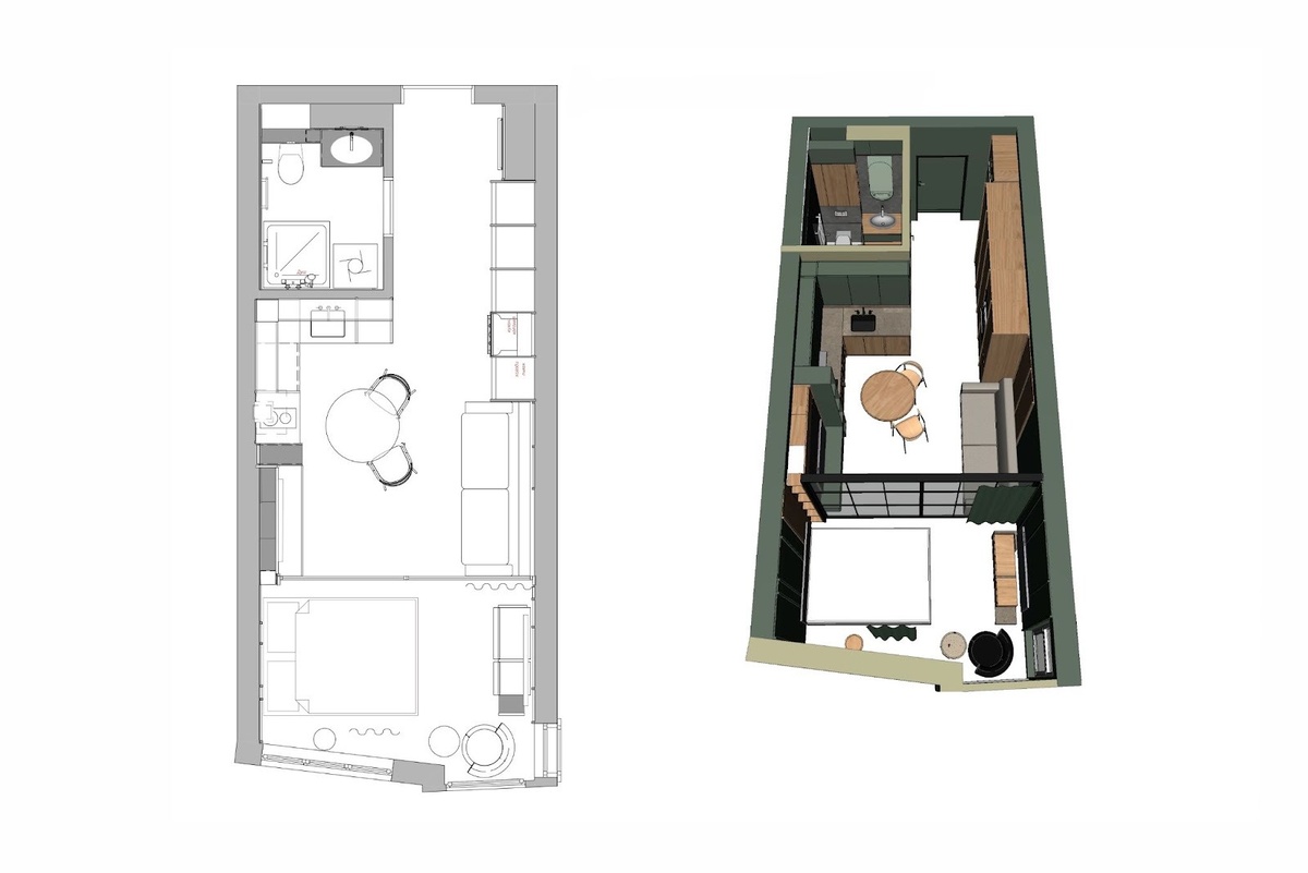
Изначально студия была пустой бетонной «коробкой» без какой-либо планировки.

Вытянутая форма помещения позволила сделать четкое зонирование: теперь здесь есть зона отдыха с большим диваном, отдельное спальное место за стеклянной перегородкой, а также кухня-столовая, где часть гарнитура интегрирована в шкаф в прихожей.

Планировочное решение и расстановка мебели
Планировочное решение и расстановка мебели

Концепция проекта

«Ключевую роль в проекте сыграл оттенок эвкалипта, дополненный деревом и камнем, — делится дизайнер. — Одни и те же оттенки в мебели, на полу и на стенах создают единое, органичное пространство. Краска и ЛДСП-панели объединяют прихожую со шкафами и гостиную с диваном. Чтобы избежать монотонности и скуки, стены сделали динамичными, добавив панели и игру ритмов. Финальным штрихом стали картины.

Интерьер насыщен текстилем: шторы, покрывало, подушки с индивидуальным дизайном, обивка мебели, ковры и мягкие стулья. Все эти элементы, отличаясь друг от друга, гармонично дополняют пространство, а их цветовые решения создают единую композицию. Многоуровневое освещение позволяет легко менять атмосферу под настроение».

Зона гостиной

Отделка стен студии из ЛДСП Egger сэкономила бюджет на выравнивании, сделала поверхности антивандальными, утеплила (одна сторона студии — лифтовая шахта и внешний угол дома) и улучшила шумоизоляцию.

Гостиную украсил раскладной диван Клаймар от divan.ru. Благодаря узким подлокотникам он занимает меньше места. Насыщенный серый цвет обивки контрастирует со стенами, но при этом не перетягивает на себя излишнее внимание.

➡️Товары бренда divan.ru

Обратите внимание: мебель в студии переходит из одной зоны в другую. Шкаф из коридора становится кухней, которая, в свою очередь, «перетекает» в ТВ-зону. Часть ТВ-зоны заменяет прикроватную тумбу. Телевизор встроен в системы хранения с тумбой и нишей для робота-пылесоса.

Спальня

Зону сна отделили стеклянной перегородкой. Для красивого оформления панелей под потолком потребовались ниши для карнизов. В результате решили сделать ниши по всему периметру и добавить скрытую подсветку. Это создало эффект «парящего» потолка над кроватью.

Благодаря панорамным окнам спальня наполнена светом. Здесь минимум мебели — кровать, кресло и комод для хранения вещей.

Высокие ножки кровати Лайтси 140 от бренда divan.ru придают визуальную «легкость», а наличие бельевого ящика добавляет функциональности. Обивка, подобранная в тон дивану, поддерживает единую цветовую гамму.

➡️Товары бренда divan.ru

«Стилистику и цветовую гамму всего интерьера определили два ключевых элемента, — объясняет дизайнер. — Первый — это необычная картина Ивана Семилетова, отражающая внутренний мир заказчицы. Второй — кресло, которое понравилось мне на Днях дизайна от Мехо. Оно комфортное и отлично подошло по размеру. Его рисунок определил общее настроение декора. Все сложилось в идеальную картину, отражающую внутренний мир заказчицы. Завершающим акцентом стала ваза "Губы" от Garda Decor, подчеркивающая влияние декора на общее восприятие интерьера».

Кухня

Кухонный гарнитур выполнен на заказ из ЛДСП Egger (шкафы, фартук, столешница). Перенос холодильника, духового шкафа и СВЧ-печи в шкаф напротив зоны готовки расширяет рабочую зону, а также позволил интегрировать полноразмерную мойку и посудомоечную машину.

Компактный черный стол Тюлип от divan.ru гармонично дополняет эту зону своим классическим дизайном. А еще его легко переставить к дивану делает при приеме гостей.

Прихожая

В прихожей стены, входная и скрытая двери покрыты антивандальной краской. Чтобы визуально расширить узкий коридор и поддержать, одну стену оставили в светлом оттенке. Небольшая ниша у входа, образованная вентиляционной шахтой, превращена в уютную зону с зеркалом в пол, пуфом и столиком. За ней располагается шкаф для одежды и хозблок для хранения бытовых принадлежностей.

Санузел

Отделка стен в санузле выполнена керамогранитом на высоту 2,4 метра. Верхние участки стен, потолок и двери окрашены. Отказ от ванны в пользу душевой кабины позволил эффективно использовать площадь, освободив место для инсталляции, раковины и стиральной машины с сушкой.

Накладная раковина увеличила место для хранения в тумбе под ней. Над инсталляцией размещены коммуникации, бойлер и бытовая химия. Открытые полки в торце служат для косметики. Подсветка в санузле идет по периметру помещения, а также она встроена в стеллажи и зеркала.

🔥 Пока другие ждут 11.11, у вас уже есть всё для выгодных покупок! Открыли ранний доступ к промокодам: активируйте скидки на распродаже в divan.ru

-9

============================

Оцените интерьер в комментариях, а если материал понравился — не забудьте поставить лайк👍

🖤divan.ru — не только блог про интерьеры, но и производитель доступной дизайнерской мебели. Ищите новые идеи и переходите на сайт, чтобы воплотить их в жизнь.