Добавить в корзинуПозвонить
Найти в Дзене

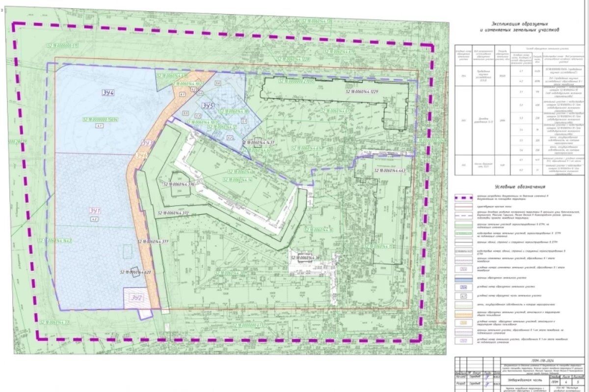
Минград согласовал постройку научного центра в Нижнем Новгороде

Министерство градостроительной деятельности и развития агломераций Нижегородской области утвердило документацию по внесению изменений в планировку территории в границах улиц Красносельская, Барминская, Максима Горького, Малая Ямская в Нижегородском районе Нижнего Новгорода. Приказ об утверждении документации опубликован на сайте министерства. Проект планировки территории, разработанный на основе договора о развитии застроенной территории, предусматривает строительство Научного центра с подземной стоянкой (12-13 этажей, 54 619 кв.м. общей площади) и Комплексной трансформаторной подстанции в рамках первой очереди строительства со сроком реализации до 2030 года. Во вторую очередь, до 2035 года, запланировано строительство подземной автостоянки. Третья очередь, до 2040 года, включает строительство Административного здания с подземной автостоянкой. Общая площадь территории в границах разработки проекта планировки составляет 6,3 га. Планируется создание более 590 машино-мест на автостоянках.
   Минград согласовал постройку научного центра в Нижнем Новгороде
Минград согласовал постройку научного центра в Нижнем Новгороде

Министерство градостроительной деятельности и развития агломераций Нижегородской области утвердило документацию по внесению изменений в планировку территории в границах улиц Красносельская, Барминская, Максима Горького, Малая Ямская в Нижегородском районе Нижнего Новгорода. Приказ об утверждении документации опубликован на сайте министерства.

Проект планировки территории, разработанный на основе договора о развитии застроенной территории, предусматривает строительство Научного центра с подземной стоянкой (12-13 этажей, 54 619 кв.м. общей площади) и Комплексной трансформаторной подстанции в рамках первой очереди строительства со сроком реализации до 2030 года. Во вторую очередь, до 2035 года, запланировано строительство подземной автостоянки. Третья очередь, до 2040 года, включает строительство Административного здания с подземной автостоянкой.

Общая площадь территории в границах разработки проекта планировки составляет 6,3 га. Планируется создание более 590 машино-мест на автостоянках. Развитие территории включает снос существующих зданий и сооружений, инженерную подготовку, а также благоустройство, озеленение, формирование проездов, тротуаров и велодорожек.

Ранее сообщалось, что минград разрешил расширение трамвайной сети в Нижнем Новгороде.