Добавить в корзинуПозвонить
Найти в Дзене
ГосземляРФ

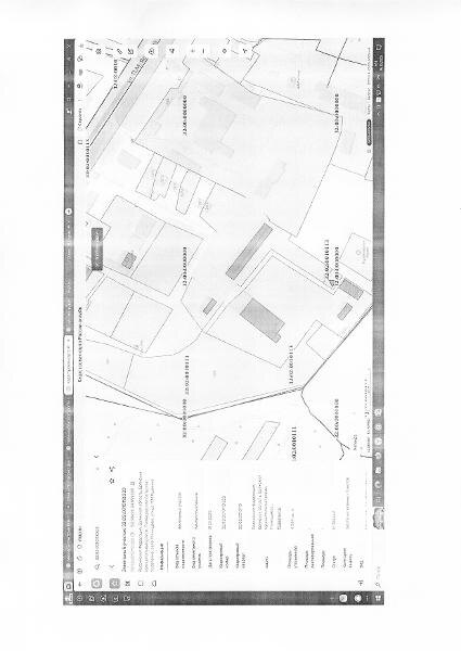
Название: Аренда 3260260010113:323

Название: Аренда 3260260010113:323 Канал: Госземля Брянская область Область: обл Брянская Район: м.р-н Брянский Населенный пункт: с.п. Глинищевское, тер Глинищевское сельское поселение Локация: Смотреть на карте ВРИ: Коммунальное обслуживание Кадастровый номер: 32:02:0010113:323 Кадастровая стоимость: 2893053.54 Вид сделки: Аренда Площадь: 4394 м² Начальная цена: 596139.00 руб. Дата завершения: 21.10.2025 Подробнее: ГИС ТОРГИ #госземля #земляотгосударства #земля #земельныйучасток #земельныеторги #торги #аукцион #арендаземли #аренда #брянскаяобласть

Название: Аренда 3260260010113:323

Канал: Госземля Брянская область

Область: обл Брянская

Район: м.р-н Брянский

Населенный пункт: с.п. Глинищевское, тер Глинищевское сельское поселение

Локация: Смотреть на карте

ВРИ: Коммунальное обслуживание

Кадастровый номер: 32:02:0010113:323

Кадастровая стоимость: 2893053.54

Вид сделки: Аренда

Площадь: 4394 м²

Начальная цена: 596139.00 руб.

Дата завершения: 21.10.2025

Подробнее: ГИС ТОРГИ

#госземля #земляотгосударства #земля #земельныйучасток #земельныеторги #торги #аукцион #арендаземли #аренда #брянскаяобласть