Добавить в корзинуПозвонить
Найти в Дзене

В Балаково в воскресенье ограничат движение

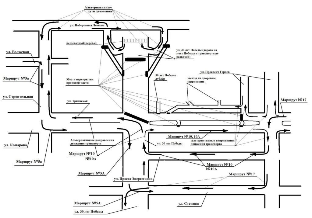
14 сентября, в воскресенье, в Балаково пройдет первенство БМР по лыжероллерам среди лыжников-гонщиков. В связи с этим с 7:00 утра и до окончания соревнований будет перекрыто движение по нескольким улицам, а также изменятся маршруты общественного транспорта. Об этом сообщает администрация Балаковского района. Перекрытие улиц: Спуск с моста Победы по центральной дороге – 30 лет Победы будет перекрыт до перекрестка с ул. Трнавской. Одна полоса одностороннего движения по ул. Трнавская (со стороны 5-го микрорайона) будет закрыта от ул. Проспект Героев до ул. 30 лет Победы. Изменения в маршрутах городского общественного транспорта: Маршрут №10 и 10А: В прямом направлении без изменений. В обратном направлении: ул. Трнавская → Проезд Энергетиков → ул. 30 лет Победы → ул. Трнавская → далее по маршруту. Маршрут №5А: Ул. Волжская → ул. Строительная → ул. Комарова → ул. Трнавская → ул. 30 лет Победы → ул. Степная → далее по маршруту. Троллейбусы маршрута №17: Будут объезжать перекрытый участок по

14 сентября, в воскресенье, в Балаково пройдет первенство БМР по лыжероллерам среди лыжников-гонщиков. В связи с этим с 7:00 утра и до окончания соревнований будет перекрыто движение по нескольким улицам, а также изменятся маршруты общественного транспорта. Об этом сообщает администрация Балаковского района.

Перекрытие улиц: Спуск с моста Победы по центральной дороге – 30 лет Победы будет перекрыт до перекрестка с ул. Трнавской. Одна полоса одностороннего движения по ул. Трнавская (со стороны 5-го микрорайона) будет закрыта от ул. Проспект Героев до ул. 30 лет Победы.

Изменения в маршрутах городского общественного транспорта: Маршрут №10 и 10А: В прямом направлении без изменений. В обратном направлении: ул. Трнавская → Проезд Энергетиков → ул. 30 лет Победы → ул. Трнавская → далее по маршруту. Маршрут №5А: Ул. Волжская → ул. Строительная → ул. Комарова → ул. Трнавская → ул. 30 лет Победы → ул. Степная → далее по маршруту. Троллейбусы маршрута №17: Будут объезжать перекрытый участок по улицам: Проспект Героев → Степная → 30 лет Победы. Временные ограничения: Автобусы маршрута №15 и троллейбусы маршрутов №№ 12, 12А не будут осуществлять движение с 7:00 до завершения мероприятий. После окончания соревнований и открытия проезжей части движение будет восстановлено.

-2