Найти в Дзене
Сканди | Интерьер

Одна на 16 квадратах: россиянка показала свою крошку-квартиру в центре города

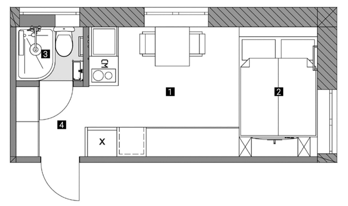
Ремонт в небольшой квартире – задача со звездочкой. А если у тебя в распоряжении всего 16 квадратов, то обустройство превращается в настоящий квест. Куда впихнуть стиральную машинку? Где разместить холодильник? Что выбрать – диван или кровать? А где хранить одежду, вещи, бытовую технику? Именно с таким ворохом вопросов столкнулась молодая хозяйка небольшой студии в центре Сочи. Квартира студийной планировки (кухня объединена с жилой комнатой) расположена в сталинском доме 1956 года постройки. До ремонта помещение было непригодно для комфортной жизни. Переночевать – запросто, а вот жить постоянно – неудобно. После ремонта результат превзошел все ожидания. На 16 квадратах удалось разместить все необходимое. Спальное место – с выдвижными секциями, кухня – со встроенной техникой. Даже санузел с душем получилось обустроить всего на 1,5 квадратах. Как сейчас выглядит эта крошка-студия – смотрите ниже. Для начала покажу планировку квартиры, чтобы представлять, где и что расположено. А так это

Ремонт в небольшой квартире – задача со звездочкой. А если у тебя в распоряжении всего 16 квадратов, то обустройство превращается в настоящий квест.

Куда впихнуть стиральную машинку? Где разместить холодильник? Что выбрать – диван или кровать? А где хранить одежду, вещи, бытовую технику?

Именно с таким ворохом вопросов столкнулась молодая хозяйка небольшой студии в центре Сочи. Квартира студийной планировки (кухня объединена с жилой комнатой) расположена в сталинском доме 1956 года постройки. До ремонта помещение было непригодно для комфортной жизни. Переночевать – запросто, а вот жить постоянно – неудобно.

После ремонта результат превзошел все ожидания. На 16 квадратах удалось разместить все необходимое. Спальное место – с выдвижными секциями, кухня – со встроенной техникой. Даже санузел с душем получилось обустроить всего на 1,5 квадратах.

Как сейчас выглядит эта крошка-студия – смотрите ниже.

Для начала покажу планировку квартиры, чтобы представлять, где и что расположено.

А так это выглядит в реальности:

-2

Интерьер этой студии вдохновлен французской классикой: высокие потолки (это главное преимущество квартиры – потолки здесь высотой 3,2 метра), большое количество света, зеркала. Каждая деталь работает на визуальное расширение тесного пространства.

❗️Объявление! У меня есть блог в Телеграм о домах — там новые истории, мои покупки для дома, живое общение со мной. Вот, например, я делюсь рецептом вкуснейшего сливового пирога (просто и вкусно). А вот обзор уютной веранды на подмосковной даче Анны — посмотрите, как там красиво! Я еще не публиковала эти фото в Дзене.

-3

Светлую мебель подобрали тоже не случайно. Белая кровать, шкафы, кухонный гарнитур не перетягивают на себя внимание, не создают визуальный шум. Благодаря этому крошечная студия кажется чуть больше, чем есть на самом деле.

-4

Батарея над головой – не случайность. Вот что рассказывает дизайнер, которая разрабатывала проект ремонта:

«Эта стена очень холодная, хозяйка квартиры жаловалась на нее. Потому решили таким образом поступить. Но так как это Сочи, и не единственная батарея, то включать ее будут в редкие холодные дни».
-5

Вся мебель изготовлена на заказ, потому ни один сантиметр пространства не пропал зря. Задействована вся площадь.

-6

Плитка для фартука – Kerama Marazzi.

-7

В прихожей есть большой шкаф-купе для верхней одежды, обуви и хозяйственных принадлежностей.

-8

Одной из самых сложных задач стало обустройство санузла. Площадь помещения была катастрофически маленькой: всего 1,5 квадратных метра. Пришлось поднять уровень пола, чтобы сформировать душевой поддон.

-9

В итоге получилось уместить на 1,5 квадратах всю необходимую сантехнику. А в качестве интересного акцента хозяйка выбрала витражное окно в деревянной раме.

У меня есть отдельная рубрика про маленькие квартиры. Загляните, там много интересных историй!

А вот 3 моих любимых ремонта (они впечатляют):

😱 Необычная студия в доме 1917 года постройки. Вы не поверите, сколько стоит такая квартира (ответ в комментариях под постом).

🛠 Унылую однушку в доме 18 века переделали в стильную студию. Посмотрите, как живет Арина Олесюк из Коломны.

🔥 Обзор невероятной крошки-квартиры в Новосибирске. Хозяйка вместе с двумя питомцами живет в очень уютной студии площадью 24 квадрата.