Найти в Дзене
ПСК "Градиент"

Проект дома 78 метров: идеальное решение для комфортного и современного жилья

Строительство частного дома - мечта многих людей, и правильный выбор проекта играет ключевую роль в создании удобного и функционального жилья. Сегодня мы расскажем о проекте дома площадью 78 м², который сочетает в себе разумное использование пространства, комфорт и современный дизайн. Такое распределение площадей обеспечивает удобство для всех членов семьи. Во-первых, компактные размеры дома позволяют значительно сэкономить на строительстве и обслуживании, не жертвуя комфортом. Во-вторых, просторная гостиная - сердце дома, объединяет зону отдыха и обеденную зону, что идеально подходит для семейных встреч и приема гостей. В-третьих, разумное зонирование способствует эффективному использованию пространства, создавая необходимые условия для комфортного проживания. Особое внимание стоит уделить современным тенденциям в строительстве частных домов. Типовой проект загородного дома GTA-78 соответствует актуальным трендам: рациональное использование каждого метра, энергоэффективность и лаконич
Оглавление

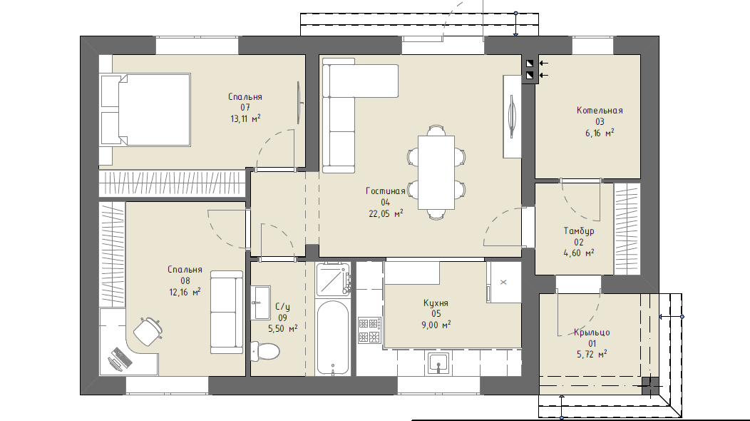
Строительство частного дома - мечта многих людей, и правильный выбор проекта играет ключевую роль в создании удобного и функционального жилья. Сегодня мы расскажем о проекте дома площадью 78 м², который сочетает в себе разумное использование пространства, комфорт и современный дизайн.

В основе проекта - оптимальное зонирование, которое включает в себя:

  • крыльцо 5,72 м²,
  • тамбур 4,60 м²,
  • котельную 6,16 м²,
  • просторную гостиную 22,05 м²,
  • функциональную кухню 9,00 м²,
  • две спальни 13,11 и 12,16 м²,
  • современный санузел площадью 5,50 м².

Такое распределение площадей обеспечивает удобство для всех членов семьи.

-2

Почему именно этот проект заслуживает внимания?

Во-первых, компактные размеры дома позволяют значительно сэкономить на строительстве и обслуживании, не жертвуя комфортом. Во-вторых, просторная гостиная - сердце дома, объединяет зону отдыха и обеденную зону, что идеально подходит для семейных встреч и приема гостей. В-третьих, разумное зонирование способствует эффективному использованию пространства, создавая необходимые условия для комфортного проживания.

Особое внимание стоит уделить современным тенденциям в строительстве частных домов. Типовой проект загородного дома GTA-78 соответствует актуальным трендам: рациональное использование каждого метра, энергоэффективность и лаконичный дизайн. Всё это обеспечивает не только комфорт, но и экономию на будущих коммунальных платежах.

Выбирая такой проект, вы получаете не просто дом, а уютное пространство, где всё продумано для вашего удобства. Если вы планируете строительство, этот проект - отличный пример удачного сочетания функциональности и современного стиля.

Подписывайтесь на наш канал, чтобы не пропустить новые статьи о строительстве и проектировании частных домов, полезные советы и тренды современного дизайна.
Больше интересных новостей со стройки в нашем телеграмм канале:
ПСК Градиент