Найти в Дзене
ДОМФАХВЕРК

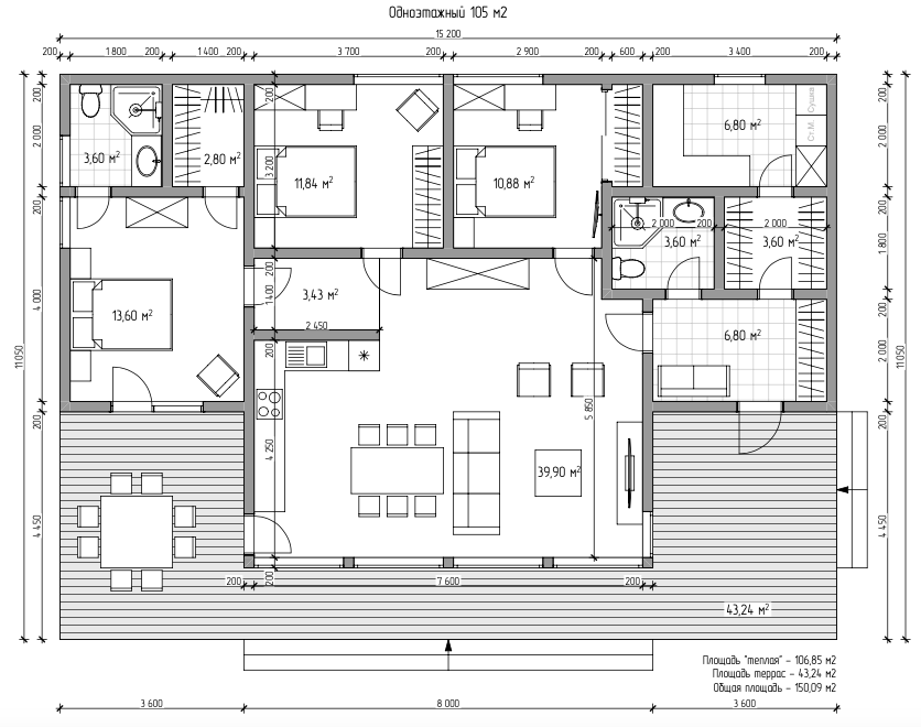
Одноэтажный дом фахверк "Лагуна" от компании "Домфахверк"

Одноэтажные дома становятся все более популярными среди владельцев загородной недвижимости. Они идеально подходят для семей, которые ценят удобство и функциональность. Одним из ярких представителей этой категории является дом фахверк "Лагуна" от компании "Домфахверк". Этот проект сочетает в себе современные технологии, стильный дизайн и высокую энергоэффективность. ▎Уникальный дизайн Дом "Лагуна" выделяется своей необычной архитектурой. Фахверковая технология позволяет создать легкую и воздушную конструкцию, которая гармонично вписывается в природный ландшафт. Открытые деревянные элементы придают дому особый шарм, а большие окна обеспечивают максимальное количество естественного света, создавая уютную атмосферу внутри. ▎Планировка Проект "Лагуна" предлагает продуманную планировку, которая включает в себя: • Просторную гостиную: Основное пространство дома, где можно проводить время с семьей и друзьями. Гостиная соединена с кухней, что создает открытое пространство для общения. • Уютные

Одноэтажные дома становятся все более популярными среди владельцев загородной недвижимости. Они идеально подходят для семей, которые ценят удобство и функциональность. Одним из ярких представителей этой категории является дом фахверк "Лагуна" от компании "Домфахверк". Этот проект сочетает в себе современные технологии, стильный дизайн и высокую энергоэффективность.

▎Уникальный дизайн

Дом "Лагуна" выделяется своей необычной архитектурой. Фахверковая технология позволяет создать легкую и воздушную конструкцию, которая гармонично вписывается в природный ландшафт. Открытые деревянные элементы придают дому особый шарм, а большие окна обеспечивают максимальное количество естественного света, создавая уютную атмосферу внутри.

▎Планировка

Проект "Лагуна" предлагает продуманную планировку, которая включает в себя:

• Просторную гостиную: Основное пространство дома, где можно проводить время с семьей и друзьями. Гостиная соединена с кухней, что создает открытое пространство для общения.

• Уютные спальни: В проекте предусмотрены две или три спальни, каждая из которых имеет достаточное пространство для комфортного проживания.

• Современная ванная комната: Просторная ванная комната с возможностью установки всей необходимой сантехники.

• Терраса: Открытая терраса станет идеальным местом для отдыха на свежем воздухе, где можно наслаждаться утренним кофе или вечерними посиделками.

▎Визуализации

Визуализации дома "Лагуна" демонстрируют его стильный внешний вид и функциональные внутренние пространства. Яркие изображения показывают, как дом будет выглядеть в окружении природы, подчеркивая его эко-дружелюбный характер. Большие окна и деревянные элементы создают гармоничное сочетание с окружающим ландшафтом.

-2

▎Энергоэффективность и экология

Одним из главных преимуществ фахверковой технологии является высокая энергоэффективность. Дом "Лагуна" оборудован современными системами утепления, которые позволяют значительно сократить затраты на отопление и кондиционирование. Использование экологически чистых материалов делает дом безопасным для здоровья его жителей.

▎Заключение

Одноэтажный дом фахверк "Лагуна" от компании "Домфахверк" — это идеальный выбор для тех, кто ценит комфорт, стиль и функциональность. Его продуманная планировка, уникальный дизайн и высокие энергосберегающие характеристики делают его привлекательным вариантом для загородного проживания. Если вы мечтаете о доме, который будет радовать вас и вашу семью долгие годы, обратите внимание на проект "Лагуна".

Для получения дополнительной информации о проекте и возможности его реализации посетите сайт компании "Домфахверк".