Добавить в корзинуПозвонить
Найти в Дзене

Коттедж «Идиллия» — проект для комфортной жизни за городом

Наше архитектурное бюро ставит перед собой задачу создавать дома, сочетающие эстетику и практичность, где каждый метр служит комфорту. Коттедж «Идиллия» именно такой — гармоничное решение для загородного жилья. Общая площадь дома составляет 336,8 м², включая террасу площею 13,16 м², два крыльца общей площадью 15,43 м² и гараж площадью 84,17 м². Планировка первого этажа: Фокус на удобстве, отдыхе и бытовых потребностях: ✔️ Гостиная — 42,35 м² ✔️ Кухня-столовая — 27,75 м² ✔️ Комната отдыха — 28,6 м² ✔️ Спальня — 20,8 м² ✔️ Ванная — 5,86 м² ✔️ Сауна, душевая и санузел ✔️ Постирочная, кладовая и гардероб ✔️ Холл — 36,11 м² ✔️ Лестничный холл — 14,49 м² ✔️ Гараж с кладовой и техпомещением — 84,17 м² ✔️ Терраса и два крыльца Планировка второго этажа: Зона уединения и отдыха семьи: ✔️ Спальня — 23,5 м² ✔️ Детская комната — 22,54 м² ✔️ Ванная — 12,7 м² ✔️ Гардеробная — 10,75 м² ✔️ Холл — 25,26 м² В «Идиллии» учтены все аспекты—функциональность, простор и комфорт—для жизни в ладу с природой и г

Наше архитектурное бюро ставит перед собой задачу создавать дома, сочетающие эстетику и практичность, где каждый метр служит комфорту. Коттедж «Идиллия» именно такой — гармоничное решение для загородного жилья. Общая площадь дома составляет 336,8 м², включая террасу площею 13,16 м², два крыльца общей площадью 15,43 м² и гараж площадью 84,17 м².

Планировка первого этажа:

Фокус на удобстве, отдыхе и бытовых потребностях:

✔️ Гостиная — 42,35 м²

✔️ Кухня-столовая — 27,75 м²

✔️ Комната отдыха — 28,6 м²

✔️ Спальня — 20,8 м²

✔️ Ванная — 5,86 м²

✔️ Сауна, душевая и санузел

✔️ Постирочная, кладовая и гардероб

✔️ Холл — 36,11 м²

✔️ Лестничный холл — 14,49 м²

✔️ Гараж с кладовой и техпомещением — 84,17 м²

✔️ Терраса и два крыльца

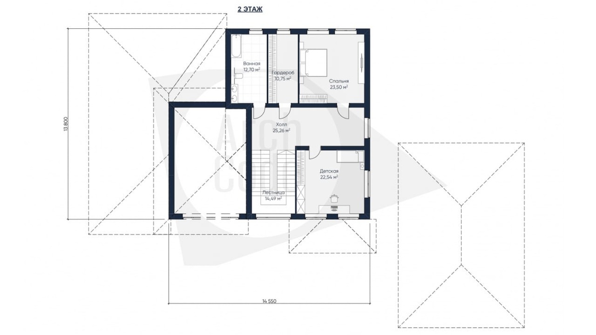
Планировка второго этажа:

Зона уединения и отдыха семьи:

✔️ Спальня — 23,5 м²

✔️ Детская комната — 22,54 м²

✔️ Ванная — 12,7 м²

✔️ Гардеробная — 10,75 м²

✔️ Холл — 25,26 м²

В «Идиллии» учтены все аспекты—функциональность, простор и комфорт—для жизни в ладу с природой и гармонии.

Понравился проект? Заказать проект или выбрать подобный можно по телефону: +79323212510. Звоните или пишите. Заявки принимаются по вотцап, телеграмм. Готовы рассчитать для вас смету!

Как построить дом в Тюмени?

Как построить дом в Москве?

Готовые дома в Тюмени

Готовые дома в Москве

Земельные участки в Тюмени

Задать вопрос в ТГ

И подписывайтесь на наш канал, чтобы не пропустить новые интересные проекты.

#проектдома #проектдвухэтажногодома #построитьдом #купитьдом

#двухэтажныйдом #лучшиедвухэтажныедома #дом #новыедома