Добавить в корзинуПозвонить
Найти в Дзене
DIVAN.RU

Интерьер по Васту: три спальни на 60 кв.м, много «воздуха» и философии

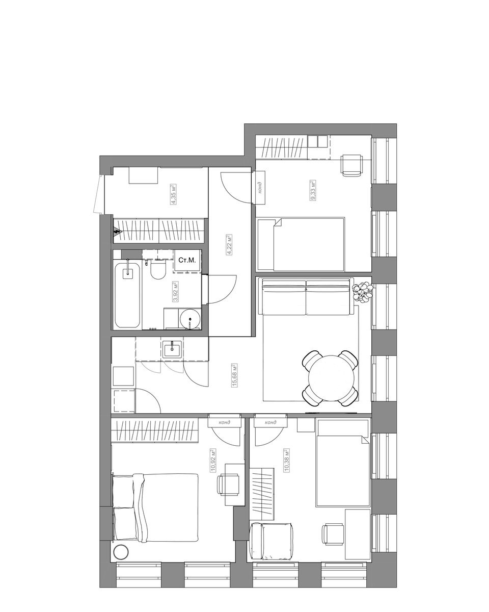
Комнаты здесь смотрят по «нужным» сторонам света, а «сердце» дома — свободно. Разбираемся в тонкостях вместе с хозяйкой и дизайнером по совместительству. Объект: евротрешка 60 кв.м, ЖК «Проспект Мира», г. Екатеринбург Авторы проекта: дизайнер Ольга Люст, стилист Екатерина Чуганова, автор фото Наталья Горбунова Васту в переводе с санскрита означает пространство, Шастра — знание. Васту Шастра — это древняя ведическая наука о правильном построении жилого и рабочего пространства в соответствии с законами природы. Эта наука имеет более, чем 10 тысяч лет традиции. Тысячи лет эти знания передавались из уст в уста, от учителя к ученику и позднее, примерно 5 000 лет назад, были записаны в Ведах. «По задумке застройщика это была типовая евродвушка, — рассказывает владелица. — Исходные данные (то, что в процессе поменять было бы уже невозможно) соответствовали основным принципам Васту, что объясняет мой выбор этой квартиры: При перепланировке кухню оставили на прежнем месте, уменьшив ее площадь в
Оглавление

Комнаты здесь смотрят по «нужным» сторонам света, а «сердце» дома — свободно. Разбираемся в тонкостях вместе с хозяйкой и дизайнером по совместительству.

Автор проекта дизайнер Ольга Люст, стилист Екатерина Чуганова, автор фото Наталья Горбунова
Автор проекта дизайнер Ольга Люст, стилист Екатерина Чуганова, автор фото Наталья Горбунова

Объект: евротрешка 60 кв.м, ЖК «Проспект Мира», г. Екатеринбург

Авторы проекта: дизайнер Ольга Люст, стилист Екатерина Чуганова, автор фото Наталья Горбунова

Васту в переводе с санскрита означает пространство, Шастра — знание. Васту Шастра — это древняя ведическая наука о правильном построении жилого и рабочего пространства в соответствии с законами природы. Эта наука имеет более, чем 10 тысяч лет традиции. Тысячи лет эти знания передавались из уст в уста, от учителя к ученику и позднее, примерно 5 000 лет назад, были записаны в Ведах.

Логика перепланировки

«По задумке застройщика это была типовая евродвушка, — рассказывает владелица. — Исходные данные (то, что в процессе поменять было бы уже невозможно) соответствовали основным принципам Васту, что объясняет мой выбор этой квартиры:

  1. Ориентированность по сторонам света.
  2. Правильная форма прямоугольника.
  3. Расширение в северо-восточном секторе.
  4. Вход электричества на северо-западе.
  5. Туалет в допустимых секторах (запад и северо-запад).
  6. Входная дверь расположена в благоприятном месте при такой ориентации квартиры.

При перепланировке кухню оставили на прежнем месте, уменьшив ее площадь в пользу других помещений. В квартире много окон и нет несущих стен — здесь получилось организовать сразу три изолированные спальни. Я распределила комнаты всех членов семьи и расположила места для учебы и работы в соответствии с влиянием секторов:

  1. Комната дочери расположена в северо-восточном секторе (северо-восток, север, северо-запад в Васту отвечают за женскую энергию), место для учебы ориентировано на север.
  2. Комнату сына расположила в «мужских» секторах — юго-восток и юг, рабочее место ориентировано на восток.
  3. Свою спальню разместила в «хозяйской» зоне на юго-западе, рабочее место ориентировано на восток.
  4. Оставила свободным центр квартиры (Брахмастан — «сердце» дома) и мармы (энергетические центры, аналогичные чакрам) — в Васту-карте ниже они отмечены цифрами».

Кухня-гостиная

В ходе перепланировки кухня уменьшилась в размере и превратилась в кухню-нишу. Даже в таком небольшом пространстве удалось встроить всю необходимую технику: холодильник, посудомоечную машину, духовой шкаф, варочную поверхность и вытяжку. Фасады «под светлое дерево» идеально подходят обеденной группе из круглого деревянного стола со стульями.

Зону гостиной отделили от прихожей стеной, сделав пространство более камерным. Диван Виенсо Bucle Sand от divan.ru занял центральное место в зоне отдыха. Округлые формы и фактурная обивка из букле создают в гостиной атмосферу комфорта. На сайте бренда в удобном «Конструкторе» можно примерить на эту модель другие обивки или заказать образцы тканей на дом.

В кадре диван Виенсо Bucle Sand от divan.ru >>

▶️Сейчас этот диван можно купить с выгодой до 15 000₽*. Сделайте интерьер уютнее этой осенью со скидками до 50% на распродаже divan.ru >>

-5

На окнах повесили деревянные жалюзи, чтобы подчеркнуть объем пространства. Подоконники и экраны для радиаторов выполнили из тонированной березовой фанеры, подчеркнув «натуральность» интерьера.

Спальня

Необычной формы изголовье из мягких панелей в ткани букле и сама кровать изготовлены на заказ. По краям изголовья проведена подсветка. Напротив окна большой встроенный распашной шкаф с фасадами под цвет стен.

В спальне обустроили рабочее место с надстройкой-стеллажом. Рабочая поверхность выполняет и функцию туалетного столика.

Детские комнаты

В детской комнате мальчика удобный компьютерный стол с игровым креслом и кровать шириной 120 см для комфортного отдыха.

В детской комнате девочки система для хранения и рабочее место объединены в одну конструкцию. Также здесь есть кровать с мягким изголовьем и большое зеркало.

Санузел

На полу и стенах в санузле уложили керамогранит с рисунком «терраццо». В роли системы хранения здесь тумба под раковиной и шкаф для стиральной и сушильной машин. Акценты расставлены черным: полотенцесушитель, смесители, выключатели, ручки и столешница под раковиной.

Прихожая

В прихожей расположили встроенный шкаф для хранения не только одежды, но и хозяйственных принадлежностей. Цвет фасадов подобрали к оттенку напольного покрытия. Большое зеркало в черной раме создает иллюзию еще одного входа в комнату и визуально расширяет прихожую.

=========

Оцените интерьер в комментариях, а если статья понравилась — не забудьте поставить лайк.

🖤divan.ru — не только блог про интерьеры, но и производитель доступной дизайнерской мебели. Ищите новые идеи и переходите на сайт, чтобы воплотить их в жизнь.

*Цены актуальны на момент публикации статьи