Найти в Дзене

Проект жилого дома из клееного бруса площадью 154 кв. м.

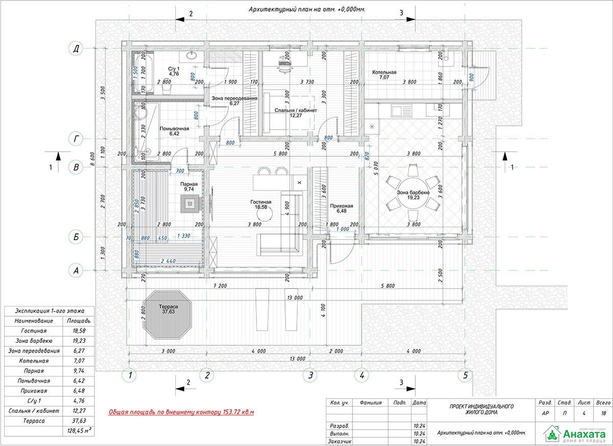
Доброе утро, друзья и подписчики. Мы завершили работу над проектом индивидуального жилого дома из клееного бруса. Общая площадь дома с крыльцом и террасой — 153,72 м2. Вообще, у нас очень большой опыт проектирования домов из дерева, и к таким проектам мы всегда относимся с большой любовью. Ведь деревянный дом обладает каким-то своим необычным шармом, отсылкой к природе и экологии.
Оглавление

Доброе утро, друзья и подписчики. Мы завершили работу над проектом индивидуального жилого дома из клееного бруса. Общая площадь дома с крыльцом и террасой — 153,72 м2. Вообще, у нас очень большой опыт проектирования домов из дерева, и к таким проектам мы всегда относимся с большой любовью. Ведь деревянный дом обладает каким-то своим необычным шармом, отсылкой к природе и экологии.

Архитектурный план дома

Архитектурный план
Архитектурный план

Дом в разрезах

Фасады дома

План кровли и заполнение проёмов

Визуализация дома

-6
-7
-8
-9