Найти в Дзене
Realt.by

Минчане сделали очень стильный ремонт в хрущевке в центре. А теперь продают

Продолжаем смотреть стильные ремонты, которые минчане делают в советских квартирах. Сегодня у нас - хрущевка на Грибоедова с яркими акцентами в интерьере. Рассмотрим ее подробнее. Эта двухкомнатная квартира находится на третьем этаже панельной шестиэтажки на Грибоедова, 2А. Вот расположение дома на карте: Площадь квартиры - 46 квадратов. Потолки - 2,54 метра. У нее вот такая планировка: В квартире обустроена совмещенная кухня-гостиная площадью почти 18 квадратов. Из нее - выход на балкон. Есть также отдельная спальня с гардеробной и небольшой кабинет. Санузел в квартире совмещенный. Окна выходят во двор. Квартира находится в престижном районе в центре Минска. До стелы - 10 минут пешком. За квартиру просят 117,5 тысячи долларов. Метр выходит по 2554 доллара. Вы давно ищете квартиру или только надумали переезжать? Присмотритесь к уникальному району, который уже предугадал все ваши пожелания!Новая Боровая — это пространство с современной архитектурой и продуманной инфраструктурой, где каж

Продолжаем смотреть стильные ремонты, которые минчане делают в советских квартирах. Сегодня у нас - хрущевка на Грибоедова с яркими акцентами в интерьере. Рассмотрим ее подробнее.

Эта двухкомнатная квартира находится на третьем этаже панельной шестиэтажки на Грибоедова, 2А. Вот расположение дома на карте:

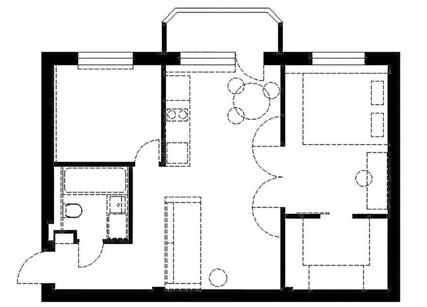
Площадь квартиры - 46 квадратов. Потолки - 2,54 метра. У нее вот такая планировка:

-2

В квартире обустроена совмещенная кухня-гостиная площадью почти 18 квадратов. Из нее - выход на балкон.

Есть также отдельная спальня с гардеробной и небольшой кабинет.

Санузел в квартире совмещенный. Окна выходят во двор.

-5

Квартира находится в престижном районе в центре Минска. До стелы - 10 минут пешком.

За квартиру просят 117,5 тысячи долларов. Метр выходит по 2554 доллара.

Вы давно ищете квартиру или только надумали переезжать? Присмотритесь к уникальному району, который уже предугадал все ваши пожелания!Новая Боровая — это пространство с современной архитектурой и продуманной инфраструктурой, где каждый сможет найти свое место. Комфортное окружение, возможности для самореализации и саморазвития, десятки решений для улучшения вашей жизни:впечатляющие яркостью детские сады;
школы, в которых хочется учиться;
стильные и функциональные паркинги;
спортивные площадки, заряженные мотивацией;
уютные кофейни, атмосферные кафе, арт-объекты и фонтаны.
Каждый квартал Новой Боровой отличается от других собственной концепцией. Здесь сочетаются удивительные идеи и воплощаются самые смелые мечты. Посмотрите
специальные предложения от застройщика Новой Боровой, узнайте больше подробностей на сайте newbor.by и задайте свои вопросы по номеру +375 (29) 138−89−29.
-6