Найти в Дзене

▎Искусство расстановки мебели: как создать гармоничный интерьер

Дизайн интерьера — это не только выбор цвета стен и стиля мебели, но и искусство грамотной расстановки элементов. Правильная планировка пространства влияет на его восприятие, функциональность и комфорт. В этой статье мы рассмотрим основные принципы расстановки мебели, которые помогут вам создать гармоничный и уютный интерьер.
▎1. Определите функции пространства
Прежде чем начать расстановку мебели, важно понять, для чего будет использоваться помещение. Каждая зона должна выполнять свою функцию: гостиная — для отдыха и общения, кухня — для готовки и приема пищи, спальня — для сна и релаксации. Определив цели, вы сможете более эффективно распределить пространство. ▎2. Создайте план
Перед тем как расставлять мебель, рекомендуется сделать план комнаты. Вы можете воспользоваться специальными программами или просто нарисовать схему на бумаге. Учитывайте размеры мебели и свободного пространства. Это поможет избежать ошибок и сэкономить время.
▎3. Учитывайте пропорции
При выборе мебели
Детская
Детская



Дизайн интерьера — это не только выбор цвета стен и стиля мебели, но и искусство грамотной расстановки элементов. Правильная планировка пространства влияет на его восприятие, функциональность и комфорт. В этой статье мы рассмотрим основные принципы расстановки мебели, которые помогут вам создать гармоничный и уютный интерьер.

1. Определите функции пространства

Прежде чем начать расстановку мебели, важно понять, для чего будет использоваться помещение. Каждая зона должна выполнять свою функцию: гостиная — для отдыха и общения, кухня — для готовки и приема пищи, спальня — для сна и релаксации. Определив цели, вы сможете более эффективно распределить пространство.

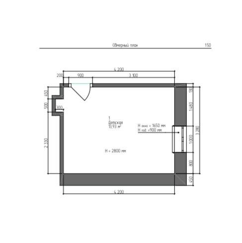
Обмерный план
Обмерный план

2. Создайте план

Перед тем как расставлять мебель, рекомендуется сделать план комнаты. Вы можете воспользоваться специальными программами или просто нарисовать схему на бумаге. Учитывайте размеры мебели и свободного пространства. Это поможет избежать ошибок и сэкономить время.

3. Учитывайте пропорции

При выборе мебели обращайте внимание на ее размер относительно площади комнаты. Большие предметы в маленьком пространстве могут создать ощущение загроможденности, в то время как маленькие вещи в большом помещении будут выглядеть неуместно. Старайтесь поддерживать баланс между размерами мебели и пространства.

4. Зонирование

Если комната многофункциональна, используйте зонирование для разделения пространства. Это можно сделать с помощью разных уровней освещения, ковров, перегородок или расстановки мебели. Например, в гостиной можно выделить зону для отдыха с диваном и креслами, а также рабочую зону с письменным столом.

5. Удобство передвижения

Оставляйте достаточно пространства для свободного передвижения по комнате. Минимальное расстояние между предметами мебели должно составлять 60-80 см. Это обеспечит комфорт и легкость в использовании пространства.

6. Фокусные точки

Каждое помещение должно иметь фокусную точку — элемент, на который будет направлено внимание. Это может быть камин, картина или телевизор. Расставляя мебель, старайтесь ориентировать ее в сторону этой точки, создавая уютную атмосферу.

7. Не забывайте о стиле

Расстановка мебели должна соответствовать общему стилю интерьера. Если вы выбрали современный минимализм, избегайте громоздкой и вычурной мебели. Для классического стиля подойдут более традиционные формы и материалы.

8. Экспериментируйте

Не бойтесь экспериментировать с расстановкой мебели! Иногда стоит попробовать несколько вариантов, чтобы найти наиболее удобный и эстетически привлекательный. Используйте возможность временно перемещать предметы, чтобы увидеть, как они будут смотреться в другом положении.

Заключение

Правильная расстановка мебели — это ключ к созданию комфортного и стильного интерьера. Учитывая функции пространства, пропорции мебели и принципы зонирования, вы сможете создать гармоничное пространство, которое будет радовать вас и ваших гостей. Не забывайте о том, что дизайн — это творческий процесс, поэтому позволяйте себе экспериментировать и находить уникальные решения!

А можно сделать проще, обратиться к дизайнеру и он все сделает за вас!

У меня данная услуга стоит от 200р/м2

Заказав вы получите:

Расстановку мебели в 2-3 вариантах, в соответствии с нормами эргономики. Вам остается только выбрать наиболее удачный,понравившийся вариант! Для заказа пишите в личные сообщения либо звоните +7-927-471-62-59