Добавить в корзинуПозвонить
Найти в Дзене
ЭТО ВАШ ИНТЕРЬЕР

Смотрите, как я сделал из "убитой" однушки площадью 38 м² шикарное жилье (фото До и После вас поразят)

Дизайнеры выполнили проект оформления небольшой квартиры площадью 38 м² в старом фонде северной столицы, предназначенной для сдачи в аренду. Дом, в котором находится квартира, построен аж в 1881 году. Сама квартира была в ужасающем состоянии, поэтому работы начались незамедлительно. Клиент сформулировал ключевые требования, касающиеся бюджета и временных рамок, но также выразил желание, чтобы дизайн выделялся на фоне других проектов. Специалисты разработали удобную планировку, которая подчеркнула преимущества архитектуры, и создали оригинальный дизайн с применением ярких цветовых акцентов, которые сразу привлекают внимание. С самого начала квартира представляла собой "однушку" с высокими потолками, а также широким балконом. Однако владельцу квартира досталась уже разделённым на узкие изолированные помещения с одним окном. После реконструкции гостиная и кухня стали единым пространством. Все стены покрыли моющейся краской тёплого жёлто-оранжевого оттенка, а пол застелили стандартным лам
Оглавление

Дизайнеры выполнили проект оформления небольшой квартиры площадью 38 м² в старом фонде северной столицы, предназначенной для сдачи в аренду. Дом, в котором находится квартира, построен аж в 1881 году. Сама квартира была в ужасающем состоянии, поэтому работы начались незамедлительно.

Клиент сформулировал ключевые требования, касающиеся бюджета и временных рамок, но также выразил желание, чтобы дизайн выделялся на фоне других проектов.

Специалисты разработали удобную планировку, которая подчеркнула преимущества архитектуры, и создали оригинальный дизайн с применением ярких цветовых акцентов, которые сразу привлекают внимание.

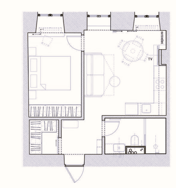
С самого начала квартира представляла собой "однушку" с высокими потолками, а также широким балконом. Однако владельцу квартира досталась уже разделённым на узкие изолированные помещения с одним окном.

Проект

  • Местоположение: г. Санкт-Петербург
  • Площадь квартиры: 38 квадратных метров
  • Владельцы: мужчина (квартира будет сдаваться в аренду)
  • Бюджет: 2,8 млн рублей
-2

Кухня-гостиная

После реконструкции гостиная и кухня стали единым пространством. Все стены покрыли моющейся краской тёплого жёлто-оранжевого оттенка, а пол застелили стандартным ламинатом.

-3

Справа от входа расположилась кухонная зона с угловым гарнитуром. Фасады выполнены в нейтральном сером цвете. В этой зоне установлена классическая техника: варочная панель, холодильник, духовой шкаф, чайник, микроволновка и кофемашина. Фартук облицован плиткой терракотового цвета.

В непосредственной близости от окна находится столовая зона, оформленная с особым вкусом. Здесь установлена стильная мебель. Рядом с ней разместили телевизор и большое зеркальное панно, которое визуально изменяет восприятие пространства.

Напротив зоны с телевизором находится журнальный столик и уютный диван, который служит ярким акцентом в интерьере. Справа от дивана есть дверь, ведущая в отдельную спальню.

Спальня

Стены в спальне покрасили так же моющейся краской, но уже терракотового оттенка, который перекликается с кухонным фартуком. Подоконник увеличили и сделали из него рабочее место.

В центре находится классическая двуспальная кровать в сером цвете, а в глубине комнаты установили вместительный шкаф купе (в прихожей так же имеется полноценная гардеробная).

Ванная комната

В данном помещении отсутствует традиционная ванна, её место занимает просторная душевая. Что касается оформления стен, то здесь применена водостойкая краска голубого цвета в сочетании с белой прямоугольной плиткой.

Если вам понравилась статья, то не забудьте поставить лайк и подписаться, чтобы не пропустить новый материал!

Так же пишите в комментариях, что вам понравилось в этом проекте, а что вызывает сомнения.