Найти в Дзене

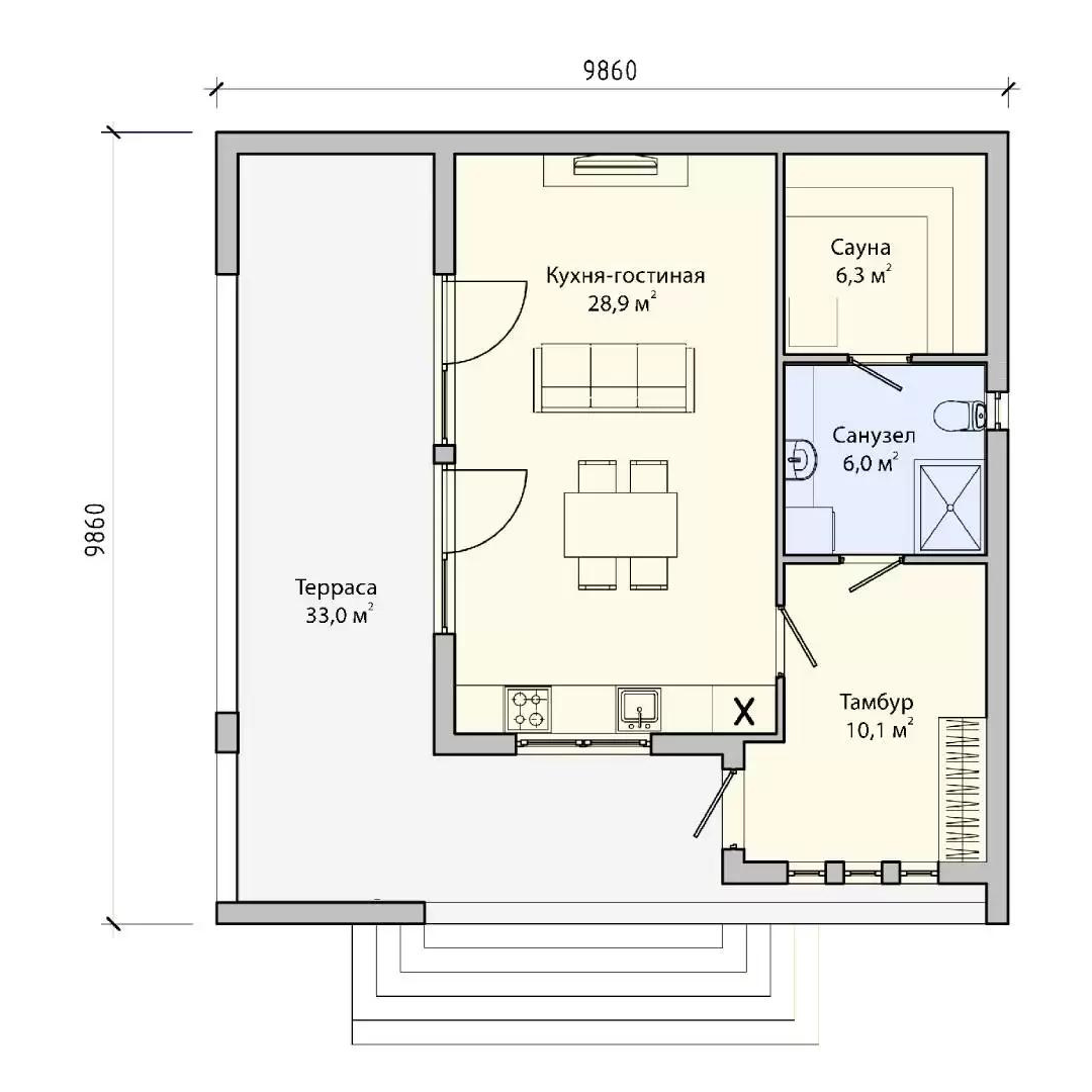
Современная одноэтажная баня периметром 10×10 метров

Какой вы представляете современную баню?
Уютной, удобной, стильной, практичной, долговечной. Все эти характеристики мы объединили с проекте бани БЭНПАН БП-85.
БП-85 – это современная одноэтажная баня периметром 10×10 метров, площадью более 84 кв. метров.
Чтобы сделать помещение более функциональным, проектом дополнительно предусмотрены просторная комната отдыха и терраса.
Для строительства бани по проекту БП-85 могут использоваться любые из наших панелей: ◼ БЭНПАН-Д – толщина 220мм.
◼ БЭНПАН – толщина 270мм;
◼ БЭНПАН Премиум – толщина 270 мм;
◼ БЭНПАН АПЕКС – толщина 320мм.
Доступные комплектации: ◼ Базовая;
◼ Тёплый контур;
◼ Тёплый контур+;
◼ с отделкой «White box».
➡️ Подробнее о проекте Для получения консультации и расчета стоимости строительства бани БП-85 на вашем участке звоните по телефону: 📞 +7 (495) 260-98-32 #строительство #технология #БЭНПАН #качество #прочность #долговечность #надежность #безопасность #дом #строительнаякомпания

Какой вы представляете современную баню?

Уютной, удобной, стильной, практичной, долговечной. Все эти характеристики мы объединили с проекте бани БЭНПАН БП-85.

БП-85 – это современная одноэтажная баня периметром 10×10 метров, площадью более 84 кв. метров.

Чтобы сделать помещение более функциональным, проектом дополнительно предусмотрены просторная комната отдыха и терраса.

Для строительства бани по проекту БП-85 могут использоваться любые из наших панелей:

◼ БЭНПАН-Д – толщина 220мм.
◼ БЭНПАН – толщина 270мм;
◼ БЭНПАН Премиум – толщина 270 мм;
◼ БЭНПАН АПЕКС – толщина 320мм.


Доступные комплектации:

◼ Базовая;
◼ Тёплый контур;
◼ Тёплый контур+;
◼ с отделкой «White box».


➡️ Подробнее о проекте

Для получения консультации и расчета стоимости строительства бани БП-85 на вашем участке звоните по телефону: 📞 +7 (495) 260-98-32

#строительство #технология #БЭНПАН #качество #прочность #долговечность #надежность #безопасность #дом #строительнаякомпания