Добавить в корзинуПозвонить
Найти в Дзене
DIVAN.RU

ДО/ПОСЛЕ: французская романтика в московской двушке 62 кв.м

Эта квартира не видела ремонта с 70-х годов прошлого века. После переделки жилье преобразилось — нейтральная база и акценты в природных тонах сделали атмосферу по-французски светлой и изящной. Объект: двухкомнатная квартира 62 кв.м, Патриаршие пруды, г. Москва
Автор проекта: архитектор-дизайнер Тая Кипри, автор фото: Лиза Гуровская Квартира находится в одном из богемных районов Москвы — на Патриарших прудах. Микрорайон заполнен магазинами, барами и ресторанами — посмотреть на красивую жизнь сюда приезжают со всех концов города. Неудобную планировку с узким коридором и большим балконом на два окна изменили. Сложность заключалась в том, что из-за наличия газового оборудования объединить кухню и гостиную было невозможно. От газа пришлось отказаться. Старую отделку демонтировали, межкомнатные перегородки снесли. Перед входом в санузел обустроили небольшой холл — теперь эта зона не бросается в глаза из гостиной. Из исторических элементов удалось сохранить только подоконники из мрамора, их о
Оглавление

Эта квартира не видела ремонта с 70-х годов прошлого века. После переделки жилье преобразилось — нейтральная база и акценты в природных тонах сделали атмосферу по-французски светлой и изящной.

Проект Таи Кипри; автор фото: Лиза Гуровская
Проект Таи Кипри; автор фото: Лиза Гуровская

Объект: двухкомнатная квартира 62 кв.м, Патриаршие пруды, г. Москва
Автор проекта: архитектор-дизайнер Тая Кипри, автор фото: Лиза Гуровская

Квартира находится в одном из богемных районов Москвы — на Патриарших прудах. Микрорайон заполнен магазинами, барами и ресторанами — посмотреть на красивую жизнь сюда приезжают со всех концов города.

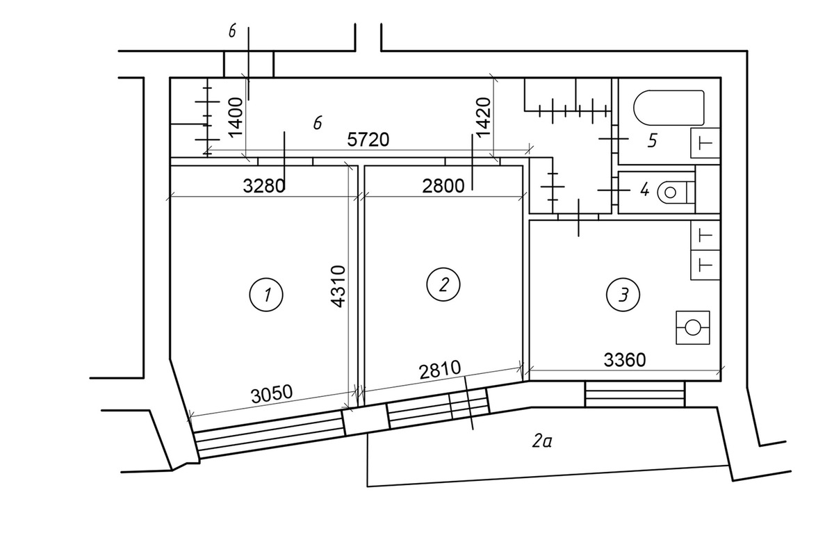
Логика перепланировки

Неудобную планировку с узким коридором и большим балконом на два окна изменили. Сложность заключалась в том, что из-за наличия газового оборудования объединить кухню и гостиную было невозможно. От газа пришлось отказаться. Старую отделку демонтировали, межкомнатные перегородки снесли. Перед входом в санузел обустроили небольшой холл — теперь эта зона не бросается в глаза из гостиной. Из исторических элементов удалось сохранить только подоконники из мрамора, их отреставрировали.

Кухня-гостиная

Гостиная и кухня ДО ремонта
Гостиная и кухня ДО ремонта

Окна квартиры выходят на северную сторону, балкон дополнительно затеняет помещение. Чтобы добавить естественного света в кухню-гостиную, на балконе использовали панорамное остекление, дверь тоже полностью остеклили. Для стен выбрали нейтральную серо-бежевую краску. Керамическая черно-белая плитка в зоне кухни создает атмосферу уютного ретро.

Кухню с фасадами приглушенного серо-зеленого цвета установили вдоль длинной стены. Пространство между верхними шкафами и потолком оставили свободным — такой прием добавил помещению «легкости». При присоединении коридора образовалась ниша, в нее встроили шкафы с бытовой техникой. «Хрущевский холодильник» (холодильный шкаф под подоконником) решили оставить в качестве дополнительного места хранения.

Прием: Зоны кухни и гостиной разделяет простенок и колонна из бруса, заколерованного в цвет паркета на полу. Телевизор закрепили на вращающемся кронштейне таким образом, чтобы его было удобно смотреть как из кухни, так и из гостиной.

Для зоны отдыха выбрали диван Слипсон от бренда divan.ru. Модель в винтажном стиле с округлыми подлокотниками смотрится «легко» и изящно. Диван раскладывается в комфортное спальное место.

В кадре диван Слипсон в стиле 60-х, divan.ru >>

-8

▶️ Этот диван сейчас можно купить со скидкой 26 000₽*. Широкий выбор мебели по выгодным ценам ждет на большой распродаже в divan.ru >>

Спальня

Спальня ДО ремонта
Спальня ДО ремонта

На входе в спальню установили раздвижные двери со стеклом. В небольшом помещении нет ничего лишнего. Мебель в нейтральных тонах гармонирует с цветом стен и не привлекает внимания. Практически единственный заметный акцент — шторы насыщенного травяного цвета.

Проект Таи Кипри; автор фото: Лиза Гуровская
Проект Таи Кипри; автор фото: Лиза Гуровская
Большую часть мебели приобрели в divan.ru. Мягкая обивка кровати Лайтси добавляет уюта и «мягкости», округлое изголовье повторяет форму дивана в зоне гостиной. С обеих сторон от кровати — тумбы в винтажном стиле с фасадами в эмали.

В кадре: кровать Лайтси 140, divan.ru >>

Для хранения предусмотрели распашной шкаф Енссон-2 и ТВ-тумбу Енссон-1 с трендовыми рифлеными фасадами. У окна обустроили место отдыха с компактным креслом без подлокотников на тонком металлическом основании.

В кадре: распашной шкаф Енссон, divan.ru >>

Прихожая

Прихожая ДО ремонта
Прихожая ДО ремонта

Всю квартиру оформили в едином стиле и общей цветовой гамме. Монохромность интерьера особенно заметна в прихожей. Мебель сливается по цвету со стенами, не загромождает помещение, а, наоборот, визуально расширяет его. Естественный свет проникает в прихожую через стеклянную дверь спальни.

Санузел

Санузел ДО ремонта
Санузел ДО ремонта

Стены и пол в санузле облицевали светлым керамогранитом под мрамор. Старую душевую кабину заменили современной душевой в строительном исполнении. Для хранения предусмотрели тумбу с выдвижными ящиками и встроенный шкаф над инсталляцией.

---------------
Оцените интерьер в комментариях, а если материал понравился — не забудьте поставить лайк👍

🖤divan.ru — не только блог про интерьеры, но и производитель доступной дизайнерской мебели. Ищите новые идеи и переходите на сайт, чтобы воплотить их в жизнь.

*Цены актуальны на момент публикации статьи