Добавить в корзинуПозвонить
Найти в Дзене

"Больше воздуха и света, в стиле индастриал."

Задача проекта Ко мне обратился молодой человек с вопросом распланировать пространство в однокомнатной квартире. Необходимо было продумать планировку так, чтобы разместить рабочий стол, лежанку для собаки и подвесное кресло. Также желанием заказчика было соединить кухню и комнату. Реализация проекта В первую очередь, я выделила зону сна и отделила ее, с одной стороны, с помощью узкого, шкафа. Шкаф сделала полу открытым, за счет его открытой верхней части появляется ‘больше воздуха’ в коридоре. Так как заказчик работает из дома, поэтому я организовала большое пространство со столом и открытым шкафом для хранения книг, журналов и тд. Так как заказчик мало готовит, то я спроектировала небольшой, но функциональный кухонный гарнитур, а в качестве места для приема пищи, использовала барную стойку. За 15 дней работы был создан дизайн проект с реалистичными визуализациями, были изучены все пожелания клиента и решены все задачи по проекту. Если вы тоже планируете ремонт в своей квартире и хотит

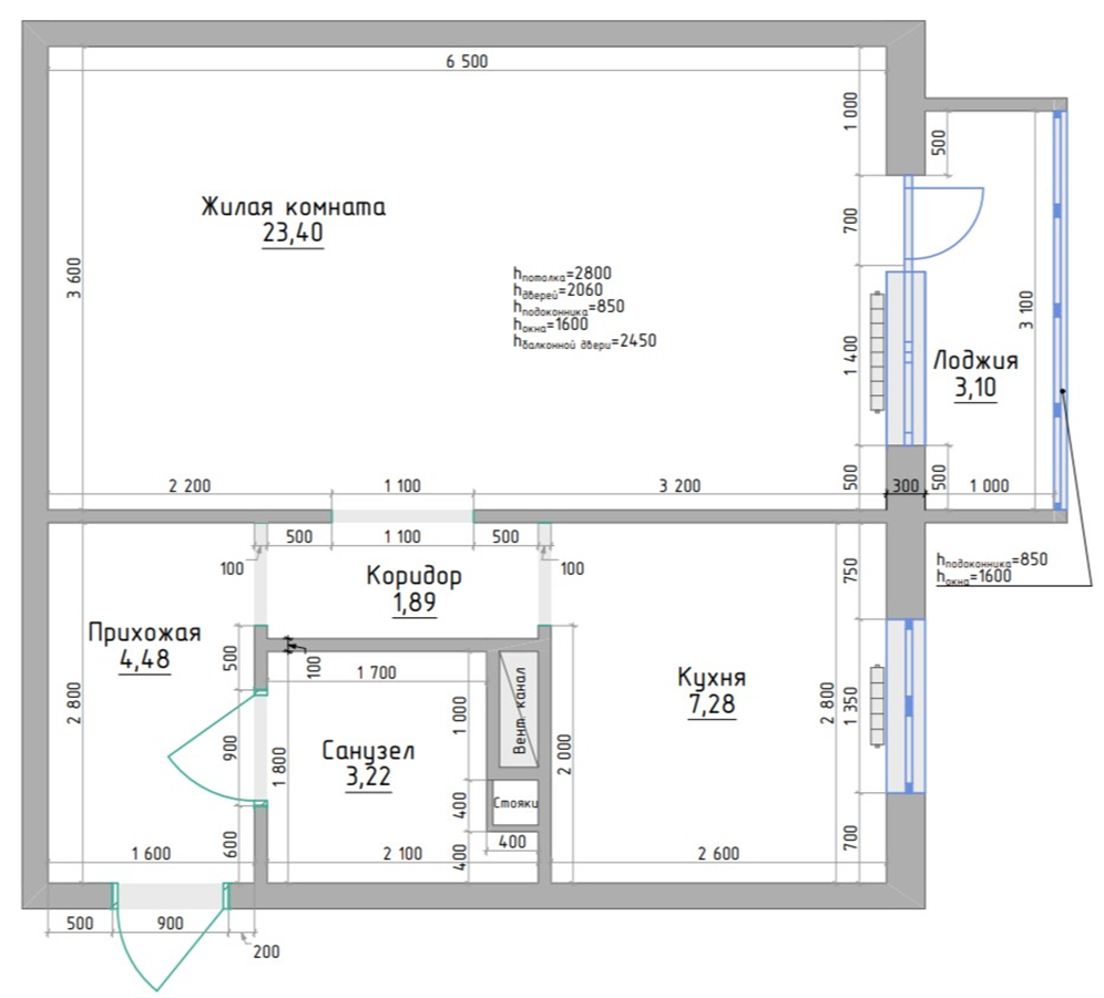
Задача проекта

Ко мне обратился молодой человек с вопросом распланировать пространство в однокомнатной квартире.

Необходимо было продумать планировку так, чтобы разместить рабочий стол, лежанку для собаки и подвесное кресло. Также желанием заказчика было соединить кухню и комнату.

-2

Реализация проекта

В первую очередь, я выделила зону сна и отделила ее, с одной стороны, с помощью узкого, шкафа. Шкаф сделала полу открытым, за счет его открытой верхней части появляется ‘больше воздуха’ в коридоре.

-3
-4

Так как заказчик работает из дома, поэтому я организовала большое пространство со столом и открытым шкафом для хранения книг, журналов и тд.

-5

Так как заказчик мало готовит, то я спроектировала небольшой, но функциональный кухонный гарнитур, а в качестве места для приема пищи, использовала барную стойку.

-6
-7
-8
-9

За 15 дней работы был создан дизайн проект с реалистичными визуализациями, были изучены все пожелания клиента и решены все задачи по проекту.

Если вы тоже планируете ремонт в своей квартире и хотите грамотно распланировать свой интерьер, пишите мне и мы обсудим все ваши пожелания и осуществим их в жизнь.

-10