Добавить в корзинуПозвонить
Найти в Дзене
Evrika_design

Как комфортно разместиться в однушке 43 кв.м вчетвером (супружеской паре вместе с внуками)

Ко мне обратилась супружеская пара с просьбой разработать дизайн интерьера для однокомнатной квартиры площадью 43 кв.м, включая лоджию 3.1 кв.м. Задача осложнялась тем, что на каникулах у пары продолжительное время гостят двое внуков - мальчики 5 и 10 лет, а значит для них необходимо продумать спальные места, а также место для хранения детских вещей: одежды, игрушек, самоката, велосипеда и коньков. У заказчиков разные графики работы, поэтому им необходимо отдельное спальное место с доступом к обеим сторонам кровати, чтобы не будить супруга во время утренних сборов. Из пожеланий хозяева также указали наличие прачечного блока с колонной из стиральной и сушильной машины, шкаф для хранения инвентаря для уборки: швабры, гладильной доски, пылесоса и т.д. Нужно было также предусмотреть место под увлечения хозяев: мини огород для выращивания зелени и овощей, стеллаж для хранения коллекции алкоголя. Мне показалась очень интересной задача разместить так много зон на площади всего в 40 с неболь
Оглавление

Задача проекта

Ко мне обратилась супружеская пара с просьбой разработать дизайн интерьера для однокомнатной квартиры площадью 43 кв.м, включая лоджию 3.1 кв.м.

Задача осложнялась тем, что на каникулах у пары продолжительное время гостят двое внуков - мальчики 5 и 10 лет, а значит для них необходимо продумать спальные места, а также место для хранения детских вещей: одежды, игрушек, самоката, велосипеда и коньков.

У заказчиков разные графики работы, поэтому им необходимо отдельное спальное место с доступом к обеим сторонам кровати, чтобы не будить супруга во время утренних сборов.

Из пожеланий хозяева также указали наличие прачечного блока с колонной из стиральной и сушильной машины, шкаф для хранения инвентаря для уборки: швабры, гладильной доски, пылесоса и т.д.

Нужно было также предусмотреть место под увлечения хозяев: мини огород для выращивания зелени и овощей, стеллаж для хранения коллекции алкоголя.

Мне показалась очень интересной задача разместить так много зон на площади всего в 40 с небольшим квадратов таким образом, чтобы создать условия для комфортного проживания 4х человек и при этом не выйти за рамки бюджета.

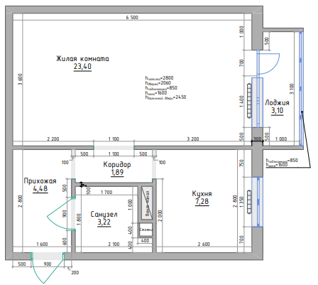
Планировка квартиры

План квартиры заказчиков
План квартиры заказчиков

Заказчикам досталась не самая удачная планировка от застройщика, поэтому еще на этапе обсуждения будущей планировки мы согласовали снос некоторых ненесущих стен и возведение новых перегородок.

Единственную комнату было решено поделить на две зоны, разделенные стеклянной перегородкой для доступа дневного света в дальнюю от окна часть комнаты.

Заказчикам было предложено две концепции планировки:

Хозяева выбрали Концепт №2 с отдельной кухней, чтобы бабушка могла радовать внуков горячими блинами на завтрак, не мешая нежному детскому сну по утрам, и на выбор я предложила два варианта расстановки мебели.

В результате они остановили свой выбор на лучших решениях из обоих вариантов и я сформировала финальное планировочное решение.

Финальное планировочное решение
Финальное планировочное решение

Реализация проекта

После согласования планировки я перешла к детализации плана, выбору мебели, отелочных материалов и визуализации проекта.

3D план расстановки мебели
3D план расстановки мебели

Стиль заказчики предпочитают современный. Предпочтительная цветовая гамма - оттенки бежевого и серого с вкраплениями глубокого графитового цвета.

Цветовая гамма, выбранная заказчиками
Цветовая гамма, выбранная заказчиками

По отделке было решено, что стены большей частью будут окрашены, а на полу - использованы ламинат и керамогранит. Освещение - предпочтительно точечное.

При входе в квартиру я расположила зеркало в полный рост с небольшой консолью под мелочи и мягким пуфом. Напротив крючки для одежды, которую не хочется сразу убирать в шкаф, если вы зашли на 5 минут.

Прихожая
Прихожая

Далее расположился спроектированный под заказчиков вместительный шкаф для хранения текущей и сезонной верхней одежды. Удачным и нестандартным решением считаю левую открытую секцию размещенную с разворотом в 90 градусов к остальной части шкафа. В ней удобно повесить сырую одежду для просушки, так чтобы она была скрыта от глаз, что особенно актуально при наличии детей в квартире. В шкафу присутствуют секции как для курток, так и для длинной верхней одежды, а выдвижных секциях удобно хранить головные уборы, шарфы, перчатки и обувь или детский самокат.

Система хранения в прихожей
Система хранения в прихожей

Из прихожей можно сразу попасть в ванную комнату. Расположение двери я менять не стала, но изменила ее открывание, чтобы отсечь грязную зону прихожей от остального жилого пространства квартиры.

Дверь в ванную комнату
Дверь в ванную комнату

Слева от входа в ванную комнату расположились тумба с накладной раковиной и душевая кабина с поддоном в строительном исполнении.

От ванной пришлось отказаться в пользу размещения стиральной и сушильной машины с горизонтальной загрузкой именно в ванной. В противном случае пришлось бы либо размещать их на кухне, что значительно уменьшило бы полезный объем хранения в кухонном гарнитуре, либо использовать узкую машинку с вертикальной загрузкой и отказываться от сушильной машины.

За душевую кабину, помимо ее компактности по сравнению с ванной, сыграло так же то, что заказчики уже не молоды и использование душевой кабины безопаснее, особенно в долгосрочной перспективе.

Накладная раковина и душевой поддон в строительном исполнении
Накладная раковина и душевой поддон в строительном исполнении

В крошечной ванной площадью всего 3 квадрата удалось помимо этого разместить подвесной унитаз и гигиенический душ, прачечный блок, а также большое встроенное хранение для бытовой химии и косметических средств.

Я также отказалась от стандартного хромированного полотенцесушителя, способного испортить любой, даже самый дорогой интерьер, в пользу дизайнерской, но достаточно бюджетной вертикальной модели.

Настенное и напольное покрытие - керамогранит.

Из прихожей мы попадаем в просторную гостиную с большим количеством хранения в антресольных ящиках под потолком. По желанию заказчиков предусмотрены места для хранения вещей внуков, сервиза, коллекции алкоголя и фотографий.

Для супругов спланировано рабочее место с хорошим освещением, так как один из них преподает в колледже, а второй работает юристом и оба иногда берут работу на дом.

Рабочее место
Рабочее место

Для внуков предусмотрены отдельные спальные места: раскладные кресла, которые в обычное время используются супругами для совместного просмотра ТВ.

Спальные места для внуков
Спальные места для внуков

Видовая стена в гостиной оставлена пустой от шкафов и полок и оклеена акцентными, но при этом нежными и элегантными фотообоями, которые задают тон всему интерьеру.

В качестве декора заказчики хотели видеть крупные напольные растения.

Из гостиной мы можем попасть на кухню, а за раздвижными стеклянными дверями находится спальня заказчиков, о которой я расскажу ниже.

Отдельно стоящий холодильник обыгран как встроенный за счет его размещения в пенал, являющийся частью кухонного гарнитура. Верхние ящики идут до потолка, чтобы увеличить места хранения и облегчить поддержание чистоты на кухне, так как на верхних поверхностях шкафов постоянно скапливается пыль и грязь. В столь компактный внешне гарнитур удалось встроить посудомоечную машину 600 мм (между холодильником и раковиной), духовой шкаф 600 мм и варочную поверхность на 4 конфорки, чтобы заказчица ни в чем себе не отказывала при готовке на большую семью.

Светлая кухня
Светлая кухня

Вторая стена угловой кухни оставлена без верхних шкафов, чтобы поддержать ощущение легкости и пространства в этом небольшом по площади помещении и не создавать ощущение узкого туннеля при входе на кухню из гостиной.

Фартук выложен крупноформатным керамогранитом с актуальным сейчас рисунком тераццо.

Привлекает внимание и отдельно висящая цилиндрическая вытяжка, благодаря своему дизайну являющаяся декоративным элементом интерьера. Плюс подобных моделей и в том, что они представлены не только в люксовом, но и в среднем ценовом сегменте.

Цилиндрическая вытяжка
Цилиндрическая вытяжка

Пустая стена слева от окна декорирована акцентными обоями с ненавязчивым рисунком. Впоследствии заказчики разместят на ней коллаж из своих фотографий.

Над обеденным столом с четырьмя посадочными местами висит создающий мягкое вечернее освещение светильник для уютных совместных ужинов.

Я посоветовала заказчикам выбрать круглый обеденный стол по нескольким причинам: то же количество человек убирается за круглым столом меньшей площади, чем прямоугольный, а если в доме дети, безопаснее выбрать стол с закругленными углами.

Выбор текстиля на окнах сделан в пользу рулонных штор: на кухне их проще поддерживать в чистоте, чем тюль и тяжеловесные портьеры. А в случае ярко бьющего в окно солнечного света, рулонные шторы прекрасно справятся с этой проблемой.

Перейдем к спальне заказчиков. Стена за изголовьем кровати обшита мягкими стеновыми панелями бежевого цвета с золотыми полосами. На стене разместился кондиционер, который при раздвинутой перегородке сможет поддерживать комфортную температуру не только в спальне, но и в гостиной. В кровати с подъёмным механизмом есть дополнительное место хранения. Плюс у каждого из супругов есть место, куда можно положить телефон или книгу, поставить будильник.

Напротив кровати разместился огромный шкаф от пола до потока, в котором заказчики смогут хранить не только одежду, но и много бытовых вещей.

Вместительный шкаф в спальне
Вместительный шкаф в спальне

Из спальни мы попадаем на утепленную лоджию, где я разместила для заказчицы ее мини-огород, чтобы ему хватало достаточно света, а также небольшую релакс-зону c оригинальным торшером.

Вечернее освещение на балконе
Вечернее освещение на балконе

При выборе отделки и мебели учитывалась ее практичность не только с точки зрения красоты и удобства, но и с точки зрения легкости уборки и поддержания чистоты. Поэтому почти вся мебель на ножках, что будет облегчать работу для робота-пылесоса, удобно спрятавшемуся под консолью в прихожей.

Заключение

За 2 недели я создала для заказчиков дизайн-проект с реалистичными визуализациями и таблицей комплектации мебели и отделочных материалов.

Интерьер получился светлым, воздушным и современным и удовлетворил все требования заказчиков.

Если Вам понравилось и Вы тоже планируете ремонт в своей квартире и хотите грамотно распланировать различные зоны и хранение вещей, пишите мне в Telegram, Viber, VK или Дзен.