Добавить в корзинуПозвонить
Найти в Дзене

Дом, которому предстоит найти своё название и стиль (часть 1)

Сложилось время и силы написать об интересном проекте. Несколько месяцев ни чего не публиковал в соцсетях. Сфера интересов, да и потребности клиентов за 2022-2023 годы, плавно смещаются от квартир в сторону ИЖС домостроения. Этот дом спроектирован с нуля на свободном участке в чистом поле. В процессе первых набросков было определено, что таковой площадью дома может быть около 90 м.кв. Ознакомление с местностью участка осуществлялось в октябре, а контрольная сверка посадки плана дома на участке поздно в ноябре. Запланировано было так, чтобы за 2 зимних месяца сделать архитектурный проект, отдать его на согласование в администрацию района, а далее начинать подготовку материалов и ранней весной выходить на стройку. В мучительном процессе работы над планировкой дома, стали выявляться особенности, такие как: Вход в дом организован не с главного фасада, а с юго-востока, чтобы не портить вид фасада и оставить свободную аллею перед ним, поскольку возможно будет делаться ландшафтный дизайн.

Сложилось время и силы написать об интересном проекте. Несколько месяцев ни чего не публиковал в соцсетях. Сфера интересов, да и потребности клиентов за 2022-2023 годы, плавно смещаются от квартир в сторону ИЖС домостроения.

Этот дом спроектирован с нуля на свободном участке в чистом поле.

  • Первыми исходными данными для проекта являются геометрия участка, рельеф участка, роза ветров и стороны освещённости солнцем, тип грунта.
  • Вторыми исходными данными назову требование в площади дома, таким образом, чтобы он был компактным и всё необходимое для 3-4 человек в нём имелось. Обычно именно такими словами формулируют задачу заказчики.

В процессе первых набросков было определено, что таковой площадью дома может быть около 90 м.кв. Ознакомление с местностью участка осуществлялось в октябре, а контрольная сверка посадки плана дома на участке поздно в ноябре. Запланировано было так, чтобы за 2 зимних месяца сделать архитектурный проект, отдать его на согласование в администрацию района, а далее начинать подготовку материалов и ранней весной выходить на стройку.

В мучительном процессе работы над планировкой дома, стали выявляться особенности, такие как:

  • поступление солнечного света организованно с всех четырёх сторон (север, юг, восток, запад), что редко встречается у заново построенных домов;
  • 7 внешних углов по фасаду, что даёт возможности сделать дом довольно необычным, вместо типовых 4 или 5 углов (квадратов и прямоугольников) для строений такой площади;
  • симметричное расположение 3 вытянутых окон в гостиной по образцам североамериканской фабричной архитектуры начала 20-го века.

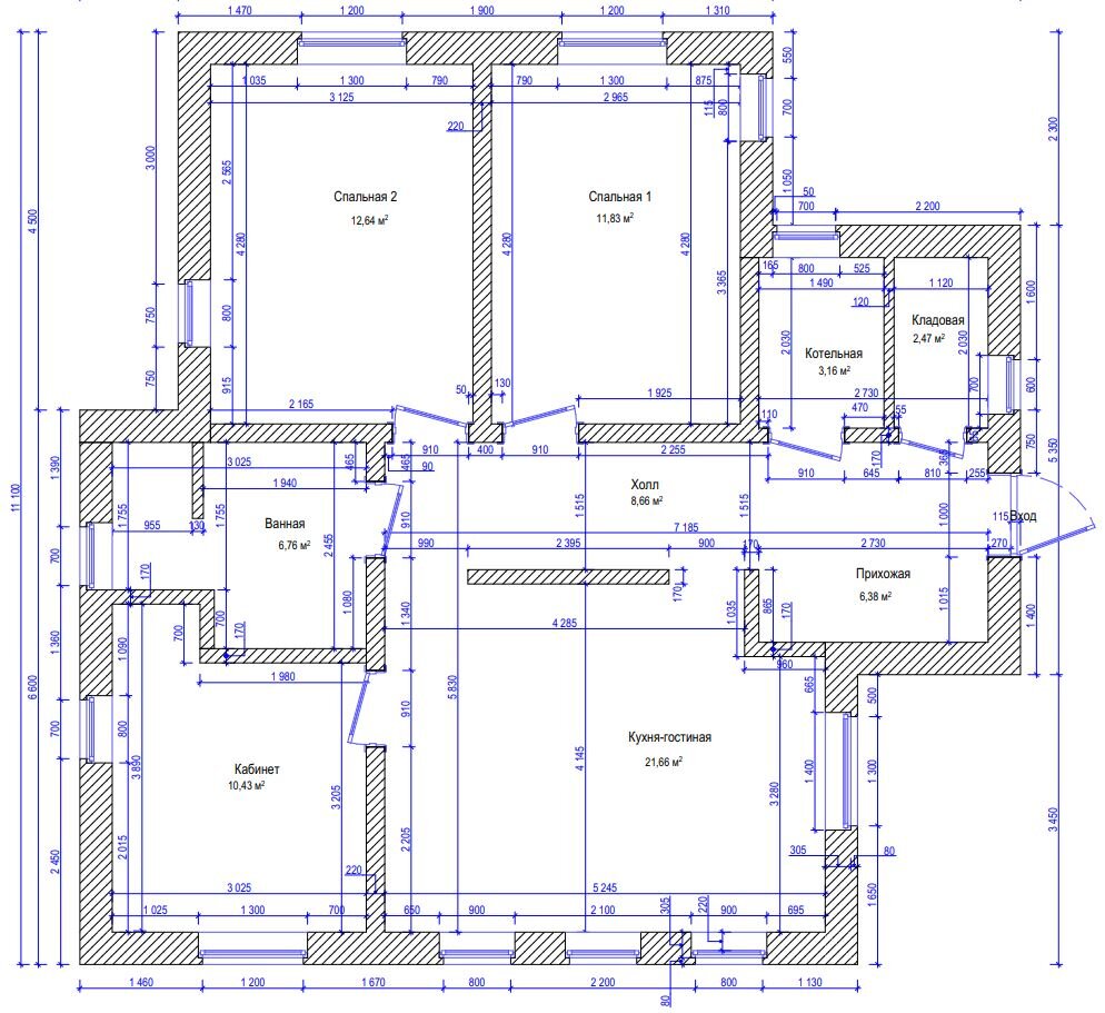
План дома
План дома

Вход в дом организован не с главного фасада, а с юго-востока, чтобы не портить вид фасада и оставить свободную аллею перед ним, поскольку возможно будет делаться ландшафтный дизайн. Так же юго-восточная сторона участка предполагается быть засажена кустарниками, цветами и всевозможными ягодами. Это же божественно, когда выходя утором, вас встречает солнышко и ароматы природы.

Вид на главный фасад дома
Вид на главный фасад дома

Фасад дома решено сделать лаконичным - белым, с мелкой текстурой штукатурки. На данном этапе проекта этого достаточно, оставить как чистый лист бумаги, чтобы по завершении основных строительных работ внести доработку оформления фасада. Дом проектируется не только как архитектура, с поиском решений как её построить, но как неразделимая интеграция внешнего облика с антуражем интерьера. А как это осуществляется, в продолжениях следует.

Расположение дома на участке
Расположение дома на участке

(Продолжение следует)