Добавить в корзинуПозвонить
Найти в Дзене
Юсупова Оксана

Планировка домика. Что изменилось по сравнению с начальным проектом.

Покажу актуальную на сегодняшний день планировку домика.
Трансформировалась она очень просто.
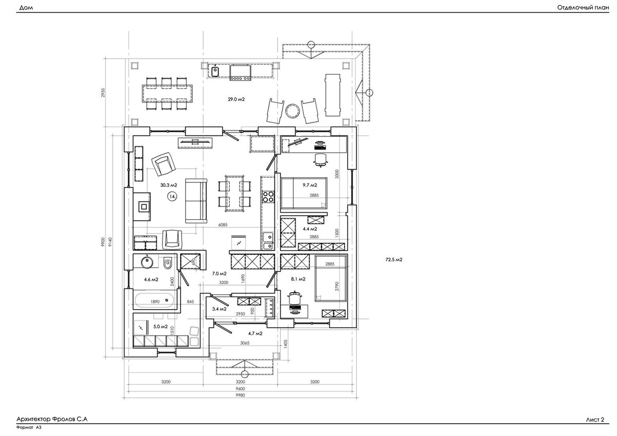
Сначала был примерный мой план.
Дальше был проект от архитектора. Этот проект я доработала немного для себя.
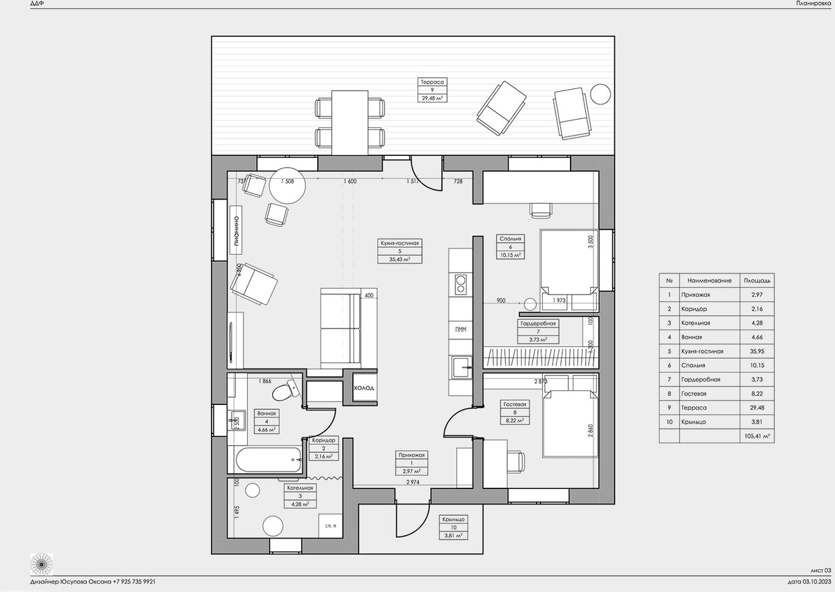
А уже потом когда появились стены, стало понятно, что нужно поменять еще немного. Вот такой был начальный план от архитектора. А вот так планировка домика выглядит на сегодняшний день. Что я поменяла. 1. Почти сразу я решила не делать перегородку прихожей, и вторую перегородку, которая как бы делала дополнительный коридор и отделяла кухню.
В обычной жизни оказалось, что вот эти все перегородки мне не нужны вообще. Очень приятно заходить в дом сразу в большое пространство.
Думала, что будет грязь от обуви и это будет мне мешать, но пока что обувь у меня вообще остается на крыльце. Хотя зимой, наверное, ее там не оставишь. 2. Поменяла расположение кровати у себя в комнате - поставила ее к окну. Мне очень нравится, как она сейчас стоит. Не знаю - будет ли комфортно это зимой. Мн

Покажу актуальную на сегодняшний день планировку домика.
Трансформировалась она очень просто.
Сначала был примерный мой план.
Дальше был проект от архитектора. Этот проект я доработала немного для себя.
А уже потом когда появились стены, стало понятно, что нужно поменять еще немного.

Вот такой был начальный план от архитектора.

А вот так планировка домика выглядит на сегодняшний день.

-2

Что я поменяла.

1. Почти сразу я решила не делать перегородку прихожей, и вторую перегородку, которая как бы делала дополнительный коридор и отделяла кухню.
В обычной жизни оказалось, что вот эти все перегородки мне не нужны вообще. Очень приятно заходить в дом сразу в большое пространство.
Думала, что будет грязь от обуви и это будет мне мешать, но пока что обувь у меня вообще остается на крыльце. Хотя зимой, наверное, ее там не оставишь.

2. Поменяла расположение кровати у себя в комнате - поставила ее к окну. Мне очень нравится, как она сейчас стоит. Не знаю - будет ли комфортно это зимой. Мне многие говорят, что от окна будет холодно. Ну посмотрим. Если что, куплю одеяло потеплее. ))
Ну и так же я поняла, что дверь в свою комнату я тоже делать не буду, все равно я никогда не закрываю никакие двери.

-3

3. Поменяла мойку в ванне - поставила ее к окну. Мне кажется, что так удобнее и самое главное - красивее. Ну и умываться с видом - тоже приятнее. Но пока мойки в ванне все еще нет.

4. Телевизор убрала в угол. На простенке между большими окнами у меня висит большое круглое зеркало. Во-первых это красиво. Ну и еще мне нужно было зеркало для занятий спортом (а на самом деле, чтобы кривляться перед ним ))))

Весь этот спортинвентарь в будущем хочу убрать в сундук под зеркалом. А на сундуке можно будет присесть (мало ли гостей приедет много). _

-4

5. И буквально сегодня круглый обеденный стол я переставила к большому окну. Как-то поприятнее стало завтракать вот так.

-5
-6