Добавить в корзинуПозвонить
Найти в Дзене
ОВиК project

Противопожарные клапаны в вентиляционных отверстиях (каналах) шахт лифтов

#ошибки_проектирования Время от времени встречаются проекты с лифтами без машинного отделения. Для вентиляции шахт таких лифтов предусматриваются специальные вентиляционные отверстия в ограждениях шахты (в верхней части) (см. Рис. 1). Как правило, площадь вентиляционного отверстия принимается не менее 1% от общей площади шахты в плане. Источник Иной раз проектировщики предусматривают противопожарный клапан в вентиляционном отверстии. Но он здесь не нужен! Кстати, такое решение представлено в [1] (об ошибках в этом документе поговорим позже): Если вентиляционное отверстие шахты выходит непосредственно на улицу - достаточно предусмотреть мероприятия по защите вентиляционного отверстия от осадков и от попадания посторонних предметов. Если вентиляционное отверстие выходит на этаж или на техническое пространство (чердак) - необходимо предусмотреть вентиляционный канал (воздуховод) с нормируемым пределом огнестойкости, соединяющий вентиляционное отверстие с атмосферой. Канал/воздуховод также

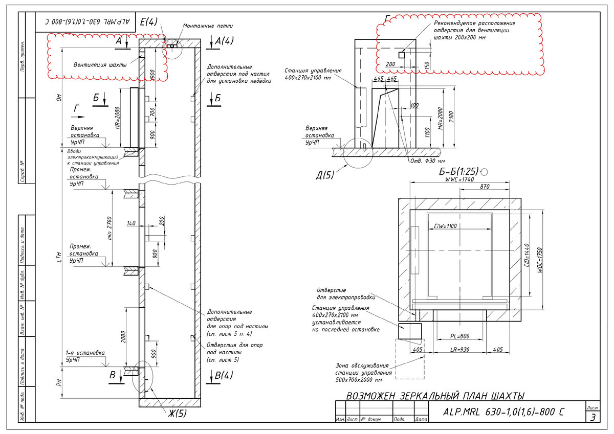
#ошибки_проектирования

Время от времени встречаются проекты с лифтами без машинного отделения. Для вентиляции шахт таких лифтов предусматриваются специальные вентиляционные отверстия в ограждениях шахты (в верхней части) (см. Рис. 1). Как правило, площадь вентиляционного отверстия принимается не менее 1% от общей площади шахты в плане.

Рис. 1 - Вентиляция шахты лифта без машинного отделения
Рис. 1 - Вентиляция шахты лифта без машинного отделения

Источник

Иной раз проектировщики предусматривают противопожарный клапан в вентиляционном отверстии. Но он здесь не нужен!

Кстати, такое решение представлено в [1] (об ошибках в этом документе поговорим позже):

Рисунок Б.2 из [1] - Принципиальная схема общеобменной вентиляции
Рисунок Б.2 из [1] - Принципиальная схема общеобменной вентиляции

Если вентиляционное отверстие шахты выходит непосредственно на улицу - достаточно предусмотреть мероприятия по защите вентиляционного отверстия от осадков и от попадания посторонних предметов.

Если вентиляционное отверстие выходит на этаж или на техническое пространство (чердак) - необходимо предусмотреть вентиляционный канал (воздуховод) с нормируемым пределом огнестойкости, соединяющий вентиляционное отверстие с атмосферой. Канал/воздуховод также необходимо защитить от осадков и от попадания посторонних предметов.

Что в первом, что во втором случае предусматривать противопожарные нормально открытые клапаны в указанных вентиляционных отверстиях/каналах нет нужды! Ни в СП 7.13130.2013 [2], ни в СП 60.13330.2020 [3] нет таких требований!

Библиография

[1] ГОСТ Р 21.621-2023 "Система проектной документации для строительства. Правила выполнения проектной документации систем отопления, вентиляции, кондиционирования и тепловых сетей"

[2] СП 7.13130.2013 Отопление, вентиляция и кондиционирование. Требования пожарной безопасности (с Изменениями N 1, 2)

[3] СП 60.13330.2020 "Отопление, вентиляция и кондиционирование воздуха СНиП 41-01-2003 (с Поправкой, с Изменением №1)"

Благодарим за внимание!

Подписывайтесь на нас в Telegram!

Чат Telegram-канала доступен по ссылке.

QR-код для перехода в Telegram-канал
QR-код для перехода в Telegram-канал

Отправить пожелания, замечания, Ваши технические решения, справочную литературу и другую полезную информацию Вы можете на электронный адрес: ovik-projekt@yandex.ru