Добавить в корзинуПозвонить
Найти в Дзене
АО «ТАМАК»

Барнхаус г-образной формы со вторым светом

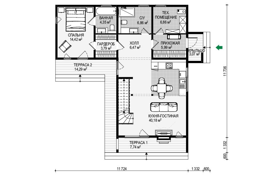
Проект двухэтажного дома «Барнхаус–132» — это коттедж в современном стиле. Он не похож на большинство загородных домов благодаря оригинальному подходу к организации скатной кровли, что делает его внешне необычным и привлекательным. Внутри же на площади 157 квадратных метров архитекторы создали максимально комфортное пространство за счет рациональной и тщательно продуманной планировки. План 1 этажа: План 2 этажа: Характеристики проекта: Общая площадь: 157,5 м²
Площадь помещений: 132,4 м²
Площадь террас и балконов: 25,1 м²
Общая площадь 1 этажа: 114,02 м²
Общая площадь 2 этажа: 43,48 м²
Спальни, шт.: 3
Санузлы, шт.: 3
Техническое помещение: да Ваша оценка данного дома: Мы производим долговечные дома «Тhermomak Haus». Для конструкции дома используются экологичные и прочные монолитные цементно-стружечные плиты плотностью 1250-1400 кг/м³ собственного производства АО «ТАМАК». Каркас дома изготавливается из древесины поставляемой из экологически чистых регионов России - с севера европейс

Проект двухэтажного дома «Барнхаус–132» — это коттедж в современном стиле. Он не похож на большинство загородных домов благодаря оригинальному подходу к организации скатной кровли, что делает его внешне необычным и привлекательным. Внутри же на площади 157 квадратных метров архитекторы создали максимально комфортное пространство за счет рациональной и тщательно продуманной планировки.

План 1 этажа:

План 1 этажа
План 1 этажа

План 2 этажа:

План 2 этажа
План 2 этажа

Характеристики проекта:

Общая площадь: 157,5 м²
Площадь помещений: 132,4 м²
Площадь террас и балконов: 25,1 м²
Общая площадь 1 этажа: 114,02 м²
Общая площадь 2 этажа: 43,48 м²
Спальни, шт.: 3
Санузлы, шт.: 3
Техническое помещение: да

Ваша оценка данного дома:

Мы производим долговечные дома «Тhermomak Haus». Для конструкции дома используются экологичные и прочные монолитные цементно-стружечные плиты плотностью 1250-1400 кг/м³ собственного производства АО «ТАМАК». Каркас дома изготавливается из древесины поставляемой из экологически чистых регионов России - с севера европейской части, Урала и Сибири. Пиломатериал проходит строгий входящий контроль, автоматическую калибровку, сортировку и промышленную сушку. В готовых конструкциях пиломатериал не подвергается негативным воздействиям.

Телефон: 8(800)300-89-77

Наш сайт: https://tamak.ru/