Добавить в корзинуПозвонить
Найти в Дзене

Не меряйте дом или квартиру квадратными метрами!

Когда вы выбираете между несколькими планировками или готовыми домами с разной площадью, недостаточно просто смотреть на количество квадратных метров, важно смотреть на эргономику помещений. Living room площадью 50м2 не всегда удобнее чем 30м2, особенно если это типовая планировка. Оценивая планировку, обратите внимание на размер коридора. Это самая бесполезная часть дома, при этом цена квадратного метра — такая же, как и у спальни. Кухню и зал лучше объединять, чтобы не получилось, как на первом фото. Вот пример одного из крупных застройщиков: Вторая планировка: Лучше заплатить за 100 удобных квадратных метров эргономичной планировки, чем переплачивать за 130м2 непродуманной площади. Для заказа проекта или аудита и адаптации вашего проекта пишите в на почту: project.petr@yandex.ru

Когда вы выбираете между несколькими планировками или готовыми домами с разной площадью, недостаточно просто смотреть на количество квадратных метров, важно смотреть на эргономику помещений. Living room площадью 50м2 не всегда удобнее чем 30м2, особенно если это типовая планировка.

Оценивая планировку, обратите внимание на размер коридора. Это самая бесполезная часть дома, при этом цена квадратного метра — такая же, как и у спальни.

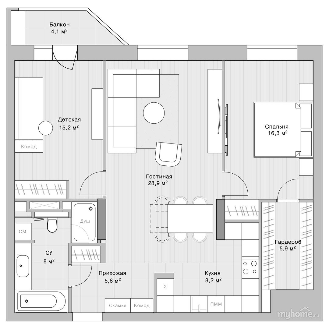
Кухню и зал лучше объединять, чтобы не получилось, как на первом фото.

Вот пример одного из крупных застройщиков:

  1. Кухня и зал разделены, зачем — не ясно. В результате, кухня маленькая и неудобная, всего 10м2;
  2. Коридор площадью 17м2 при цене 100 000 ₽ за квадратный метр — это лишние 1 700 000 ₽ только для того, чтобы переходить из одной комнаты в другую.

Вторая планировка:

-2

  1. Кухня и зал такие же по площади, но без перегородки — они ощущаются, как одно большое помещение;
  2. Коридор хоть и занимает 5.8м2, но практически не отгорожен. Он объединён с залом, что опять же ощущается как open space.

Лучше заплатить за 100 удобных квадратных метров эргономичной планировки, чем переплачивать за 130м2 непродуманной площади.

Для заказа проекта или аудита и адаптации вашего проекта пишите в на почту: project.petr@yandex.ru