Найти в Дзене

Проект современного двухэтажного загородного дома «Аристократ»

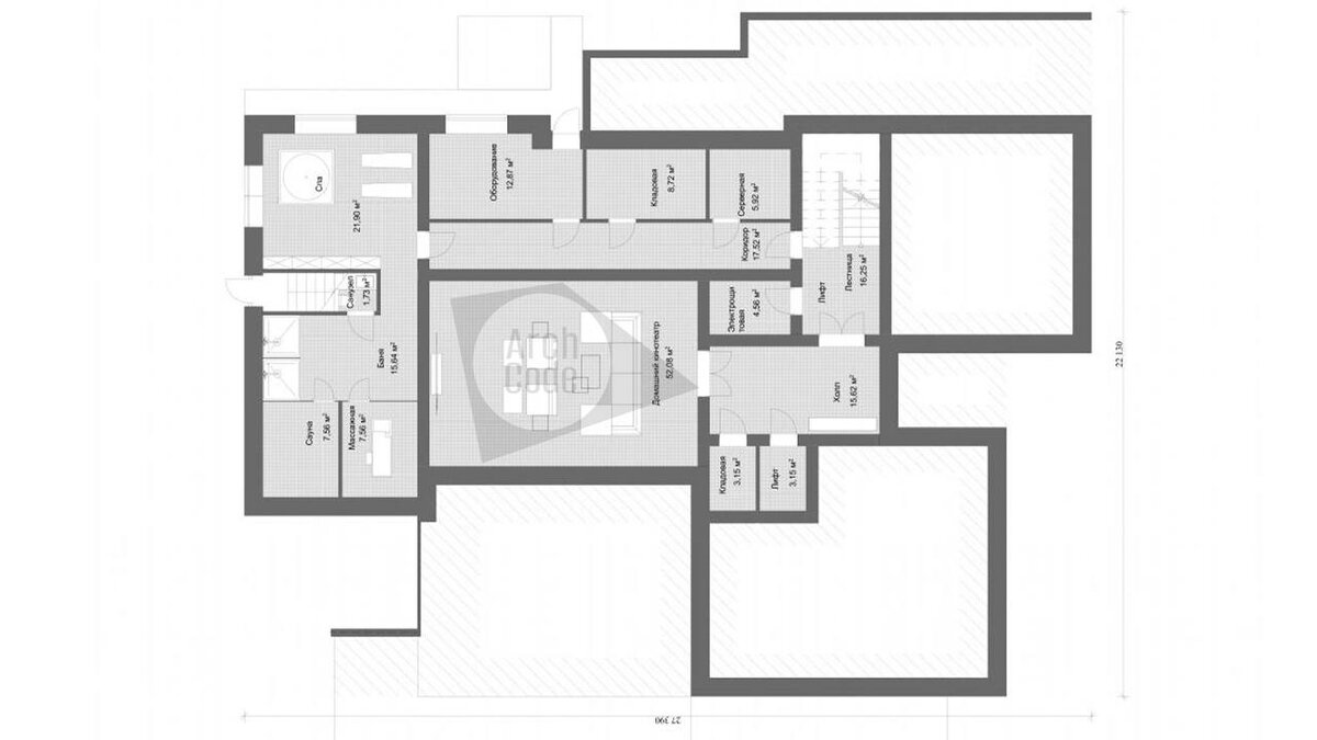
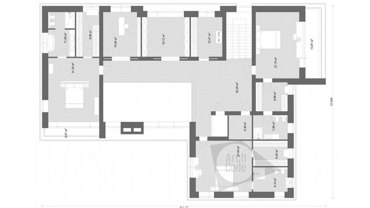
Представляем проект двухэтажного дома Общая площадь составляет 753 м2 Проект современного двухэтажного загородного дома «Аристократ» в стиле Хай Тек - это идеальное решение для тех, кто ищет комфортабельный и функциональный дом. Общая площадь дома составляет 753 кв.м, что позволяет разместить в нем все необходимые помещения для комфортной жизни. В доме 7 просторных комнат и 6 санузлов, гостиная-столовая имеет площадь 52,08 кв.м + 29,45 кв.м, а домашний кинотеатр - 52,08 кв.м. Также в состав проекта входит гараж на 2 авто площадью 36,16 кв.м.
Изюминкой проекта «Аристократ» являются банный и СПА комплексы, расположенные на цокольном этаже. Это уникальная возможность расслабиться и заботиться о своем здоровье и красоте прямо у себя дома. Здесь вы сможете наслаждаться гидромассажем, сауной, хаммамом и другими спа-процедурами, наслаждаясь приятной атмосферой и умиротворением.
Кроме того, на цокольном этаже расположен домашний кинотеатр, где вы сможете проводить время с семьей и друзьями,

Представляем проект двухэтажного дома

Общая площадь составляет 753 м2

Проект современного двухэтажного загородного дома «Аристократ» в стиле Хай Тек - это идеальное решение для тех, кто ищет комфортабельный и функциональный дом. Общая площадь дома составляет 753 кв.м, что позволяет разместить в нем все необходимые помещения для комфортной жизни. В доме 7 просторных комнат и 6 санузлов, гостиная-столовая имеет площадь 52,08 кв.м + 29,45 кв.м, а домашний кинотеатр - 52,08 кв.м. Также в состав проекта входит гараж на 2 авто площадью 36,16 кв.м.

Изюминкой проекта «Аристократ» являются банный и СПА комплексы, расположенные на цокольном этаже. Это уникальная возможность расслабиться и заботиться о своем здоровье и красоте прямо у себя дома. Здесь вы сможете наслаждаться гидромассажем, сауной, хаммамом и другими спа-процедурами, наслаждаясь приятной атмосферой и умиротворением.

Кроме того, на цокольном этаже расположен домашний кинотеатр, где вы сможете проводить время с семьей и друзьями, смотреть любимые фильмы и сериалы на большом экране. В доме «Аристократ» вы найдете все, что нужно для комфортной и уютной жизни.

Понравился проект? Заказать проект или выбрать подобный можно по телефону: +79323212510. Звоните или пишите. Заявки принимаются по вотцап, телеграмм. Готовы рассчитать для вас смету!

Как построить дом в Тюмени?

Как построить дом в Москве?

Готовые дома в Тюмени

Готовые дома в Москве

Земельные участки в Тюмени

Задать вопрос в ТГ

И подписывайтесь на наш канал, чтобы не пропустить новые интересные проекты.

#проектдома #проектдвухэтажногодома #построитьдом #купитьдом