Найти в Дзене

Москва не только для богачей! Обзор БЮДЖЕТНОГО ремонта (ДО/ПОСЛЕ). Во сколько обошелся в однушке 33 м² (не было отделки и перегородок)

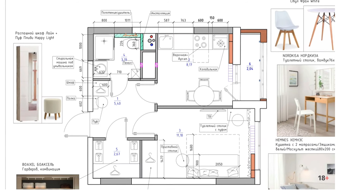
Если вы задумывались, как сделать бюджетный, но при этом стильный ремонт, то эта статья для вас. Квартира была без отделки и частично без перегородок. Застройщик возвел только перегородку санузла и отгородил стойки вентиляции и водоснабжения. Остальные перегородки возводили уже мы по планировке, которую рекомендовал сам застройщик, потому что она довольно функциональная. В квартире получилась изолированная кухня, спальня и кладовка-гардеробная. Полы На полу цементно-песчаная стяжка из пескобетона, а в местах, где это необходимо, было сделано выравнивание самонивелирующимся наливным полом. Сверху на подложке лежит ламинат, но он не из базовой коллекции. В кухне, коридоре, гардеробной и на лоджии заказчик выбрал керамогранит. Этот материал обходится значительно дороже ламината, поэтому полы в данном случае сильно повлияли на итоговую стоимость. Стены Стены оштукатурены по маякам. Во всех сухих помещениях мы используем гипсовую штукатурку, а в санузле используем штукатурку на цементной
Оглавление

Если вы задумывались, как сделать бюджетный, но при этом стильный ремонт, то эта статья для вас.

  • Мы подробно расскажем, какие работы были произведены, какие материалы использовались, сколько все это стоило и покажем, что в итоге получилось.
  • А разберем это на примере однокомнатной квартиры площадью 33 кв.м. (с учетом лоджии) в ЖК “Инновация” в Москве.
  • Светёлкин - магазин готовых ремонтов. Мы делаем ремонты по готовым проектам с фиксированной ценой за квадратный метр с материалами, сантехникой и электрикой.

Квартира была без отделки и частично без перегородок. Застройщик возвел только перегородку санузла и отгородил стойки вентиляции и водоснабжения.

Остальные перегородки возводили уже мы по планировке, которую рекомендовал сам застройщик, потому что она довольно функциональная.

В квартире получилась изолированная кухня, спальня и кладовка-гардеробная.

Полы

На полу цементно-песчаная стяжка из пескобетона, а в местах, где это необходимо, было сделано выравнивание самонивелирующимся наливным полом.

Сверху на подложке лежит ламинат, но он не из базовой коллекции.

В кухне, коридоре, гардеробной и на лоджии заказчик выбрал керамогранит. Этот материал обходится значительно дороже ламината, поэтому полы в данном случае сильно повлияли на итоговую стоимость.

Стены

Стены оштукатурены по маякам. Во всех сухих помещениях мы используем гипсовую штукатурку, а в санузле используем штукатурку на цементной основе.

  • Далее стены отшпаклеваны и оклеены виниловыми обоями на флизелиновой основе, после чего окрашены латексной краской.
  • Заказчик выбрал светло-серые и светло-бежевые оттенки. Это самый популярный выбор цветов за последнее время.

Детали

  • Фартук кухни выложен плиткой с геометрическим рисунком.
  • Потолок белый, матовый, ПВХ.
  • Розетки почти все установлены сдвоенные из экономичной серии.
  • Межкомнатные двери от компании “Браво”

Ванная комната

На полу и стенах лежит плитка, при чем, использовано сочетание однотонной плитки и плитки с рисунком, поэтому получилась акцентная стена. В одной из стен сделан потайной ревизионный люк.

Сантехника вся не из базового пакета:

  • Ванна заменена на душевую кабину. Такой вариант всегда обходится дороже.
  • Стандартный унитаз заменен на подвесной унитаз с инсталляцией.
  • Раковина заменена на специальную модель для установки над стиральной машиной.

Стоимость

Ремонт под ключ в этой квартире обошелся заказчику в 810000 рублей, то есть 24500 рублей за 1 кв.м.

Если у вас есть какие-либо вопросы по ремонту, задавайте их в комментариях, мы обязательно ответим!

Не забудьте подписаться на наш канал, чтобы не пропустить обзоры других новостроек, ремонтов и полезные советы. Мы стараемся, чтобы было интересно!

Сделайте предварительный расчет вашего ремонта на сайте: www.svetelkin1.ru. Заодно в нашем каталоге посмотрите на готовые, до мелочей отработанные проекты, прочитаете их описания, узнаете стоимость или получите бесплатную консультацию.