Найти в Дзене

Нестандартный проект в скандинавском стиле с гаражом и тренажерной

Проект «Лидс 3» с первого взгляда поражает своей суровой северной эстетикой и стилем. Сочетание натурального камня и дерева в наружной отделке создают образ неприступной крепости, в которой Ваша семья сможет укрыться от всех ненастий. К тому же внутреннее пространство настолько комфортно и уютно, что и покидать этот дом не захочется! Планировка Площадь дома - 270 кв.м.
Габариты - 12.4 x 17.8 м. Этот дом просто пронизан непередаваемой атмосферой спокойствия, тепла и гармонии. Здесь Вы найдете все для счастливой жизни: в кабинете работа будет спориться и приносить плоды; в тренажерной вы сможете не только держать себя в безупречной форме, но избавляться от стрессов; в четырех спальнях Вы будете наслаждаться сладкой негой, а гостиная и терраса идеальны для встреч с друзьями или проведения традиционных семейных вечеров. Чтобы узнать стоимость проекта и строительства дома, а также более подробные его характеристики проходите по ссылке => проект «Лидс 3». Оставляйте заявку или связывайтесь

Проект «Лидс 3» с первого взгляда поражает своей суровой северной эстетикой и стилем. Сочетание натурального камня и дерева в наружной отделке создают образ неприступной крепости, в которой Ваша семья сможет укрыться от всех ненастий. К тому же внутреннее пространство настолько комфортно и уютно, что и покидать этот дом не захочется!

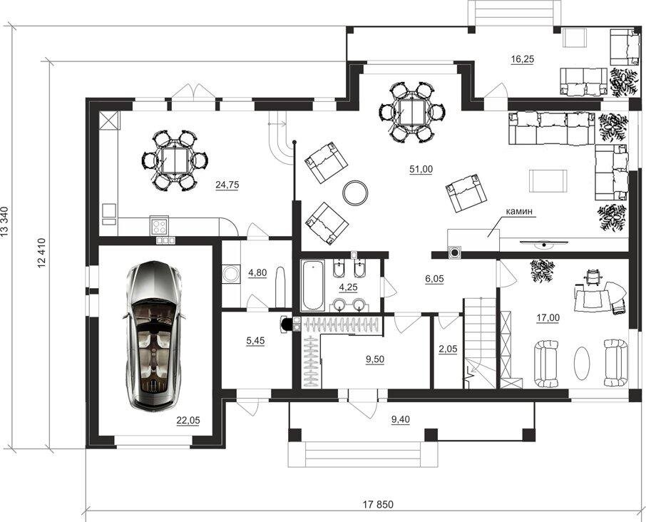
Планировка

Площадь дома - 270 кв.м.
Габариты - 12.4 x 17.8 м.

Этот дом просто пронизан непередаваемой атмосферой спокойствия, тепла и гармонии. Здесь Вы найдете все для счастливой жизни: в кабинете работа будет спориться и приносить плоды; в тренажерной вы сможете не только держать себя в безупречной форме, но избавляться от стрессов; в четырех спальнях Вы будете наслаждаться сладкой негой, а гостиная и терраса идеальны для встреч с друзьями или проведения традиционных семейных вечеров.

Чтобы узнать стоимость проекта и строительства дома, а также более подробные его характеристики проходите по ссылке => проект «Лидс 3». Оставляйте заявку или связывайтесь с нашими менеджерами.

🏠Мы поможет вам обрести дом мечты: уютный, теплый, комфортный. Доработаем проект и реализуем его из выбранных материалов: кирпича, блоков, дерева или применим каркасную технологию.

Выбирайте проект дома вашей мечты на нашем сайте
stone-wood-house.ru

Пишите, звоните, мы ответим на все интересующие вопросы, а также возьмем все строительные заботы на себя!

☎ Телефон для консультации: 8-965-199-61-04

#двухэтажный дом #проектдвухэтажногодома #проектдома #проектирование #загородныйдом #коттедж #строительство #ремонтвдоме #ремонт #недвижимость #строимдом #строительствоиремонт #загороднаянедвижимость #проекты загородного дома #проект частный дом #загородные дома проекты #архитектор #дизайн # дома с террасами